Продається 2-кімн. квартира в новобудові, Софіївська вул., м.Одеса
Одеса, Центральном, ул. Софіївська в
ID 210197
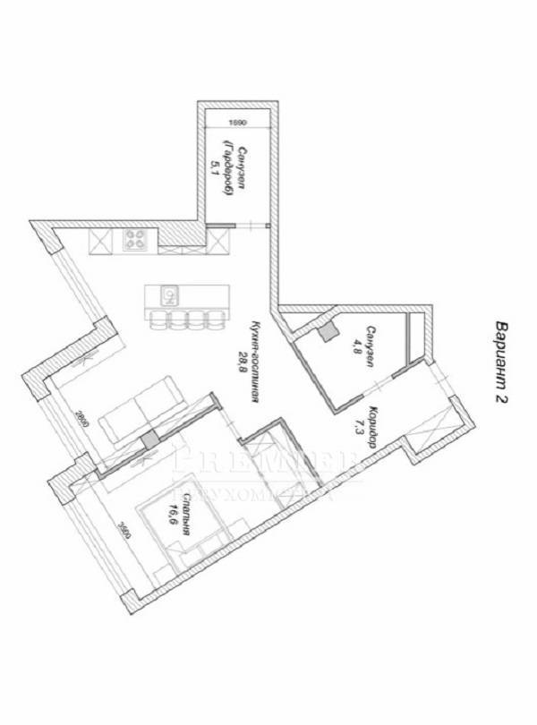
Кімнат
2
Загальна
66 м2
Житлова
43 м2
Кухня
19 м2
Поверх
4
Поверховість
9
Шукаєте комфортне житло в престижному районі Одеси, де поєднані сучасні технології, безпека та близькість моря та центру. Пропонуємо до продажу унікальну 2-кімнатну квартиру з новим ремонтом та меблями. Зручне та продумане планування. Квартира включає кухню-студію, окрему спальню, дитячу кімнату або кабінет, гардеробну, просторий санвузол та терасу. Всі вікна — енергозберігаючі, панорамні, виходять у бік парку, забезпечуючи чудовий вид та багато природного світла. Ремонт "під ключ": Важливо! Ремонт та меблі вже входять у вартість. Термін виконання ремонту за договором після покупки складає 3-4 місяці. Малоповерховий будинок клубного типу, зданий. Ідеальне місцерозташування поруч з історичним центром міста та зеленими зонами: Бульвар Михайла Жванецького,Приморський бульвар,Грецький та Стамбульський парки з дитячими майданчиками та місцями для відпочинку. Зручний підземний паркінг на 500 місць. На території комплексу є прогулянкові алеї, реліктовий парк, дитячі майданчики та велодоріжки для активного відпочинку. Безпека на найвищому рівні: цілодобове патрулювання, відеоспостереження, контроль пересування дітей, консьєрж. Комплекс оснащений передовими технологіями для вашого комфорту: автономне опалення, енергобезпека, Wi-Fi, розумне управління освітленням та інженерними мережами.
Не упустіть свій шанс стати власником цієї унікальної квартири в одному з найкращих житлових комплексів Одеси. Телефонуйте.
Не упустіть свій шанс стати власником цієї унікальної квартири в одному з найкращих житлових комплексів Одеси. Телефонуйте.
115 000 USD
98 651 EUR
5 100 250 UAH
Філія:Артура Савельєва вул.
(Черняховского) 11
(Черняховского) 11
Показати
Додаткові послуги
Схожі об`єкти
2-кімн. квартира в новобудові
г.Одесса/Центр/Большая Арнаутская ул. (ЖК 18 Жемчужина)
Цена89 999 USD
Общая72.39 м2
Цена89 999 USD
72.39 м2
2-кімн. квартира в новобудові
м.Одеса/Центр/Карантинна вул.
Цена128 730 USD
Общая61.3 м2
Цена128 730 USD
61.3 м2
Двокімнатна квартира
м.Одеса/Центр/Бориса Литвака (Заславського) вул.
Цена120 000 USD
Общая75 м2
Цена120 000 USD
75 м2
Двокімнатна квартира
м.Одеса/Центр/Івана Луценка пров. (Жукова Віце-адмірала пров.)
Цена110 000 USD
Общая58 м2
Цена110 000 USD
58 м2