Продается Дом дача, Радужная ул., Фонтанка
Одесская обл. / Фонтанка / ул. Радужная
ID 210507
Комнат
6
Общая
350 м2
Кухня
40 м2
Этажность
2
Участок
10 соток
Вода
Водопровод
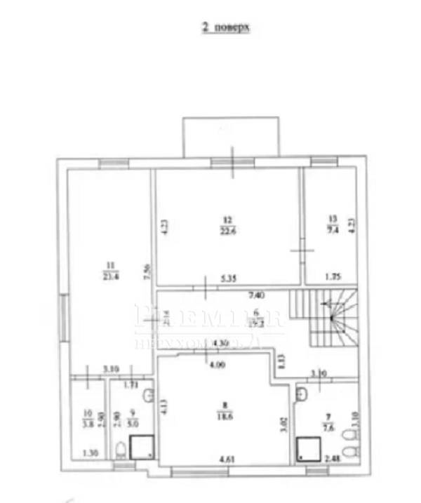
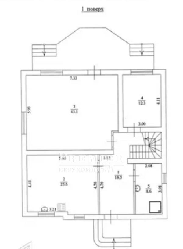
Предлагается к продаже двухэтажный дом в Фонтанке на улице Радужная. Общая площадь 250 кв.м, удобная планировка: четыре большие спальни, три санузла, гостиная, кухня, терраса.
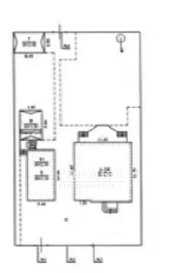
Гостевой дом с гаражом общей площадью 100 кв.м. Площадь участка: 10 соток. На территории отдельно построен погреб и барбекю, теплица. Есть подъезд с двух улиц. Участок находится в с. Фонтанка, Одесская обл. 500 метров от моря и ТРЦ «Ривера»
Гостевой дом с гаражом общей площадью 100 кв.м. Площадь участка: 10 соток. На территории отдельно построен погреб и барбекю, теплица. Есть подъезд с двух улиц. Участок находится в с. Фонтанка, Одесская обл. 500 метров от моря и ТРЦ «Ривера»
310 000 USD
268 161 EUR
13 153 300 UAH
Филиалул. Сахарова 24
Ответственный специалист
высшей категории Наталья Кухтинова
высшей категории Наталья Кухтинова
Показать
Дополнительные услуги
Похожие объекты
Дом дача
Одесcк. обл./Одесский район/Молодёжное/Набережная ул.
Цена320 000 USD
Общая268 м2
Цена320 000 USD
268 м2
Дом дача
Одесcк. обл./Одесский район/Лиманка (Мизикевича)/Согласия ул.
Цена250 000 USD
Общая500 м2
Участок10соток
Цена250 000 USD
10 соток
Дом дача
Одесcк. обл./Одесский район/Лиманка (Мизикевича)/
Цена240 000 USD
Общая300 м2
Цена240 000 USD
300 м2