Продается 2-комн. квартира в новострое, Пишоновская ул., г.Одесса
Одесса, Центральном, ул. Пишоновская
ID 210919
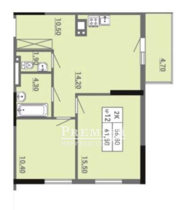
Комнат
2
Общая
61.5 м2
Жилая
40 м2
Кухня
14.2 м2
Этаж
16
Этажность
19
Предлагается к продаже 2-комнатная квартира с современной функциональной планировкой в новостройке центрального района города. Высокий этаж, окна с панорамным остеклением – много света и красивый вид на город и море. Выполнена стяжка пола, установлены счетчики, заведены все коммуникации, а дальше - фантазируйте без границ! Преимущество локации – настоящий образовательный хаб! В радиусе района — 8 высших учебных заведений, в том числе ведущие университеты Одессы. Идеально для студентов, преподавателей и инвесторов, ищущих недвижимость с гарантированным спросом на аренду. Комфортная жизнь – разумное инвестирование. Рядом: транспорт, школы, детсады, магазины, медицинские и культурные заведения, парк. Жилье, сочетающее удобство, качество и выгодную цену. ???? Приглашаем на просмотр – квартира уже ждет Вас!
65 000 USD
58 000 USD 78 000 EUR
48 333 EUR 2 795 000 UAH
2 494 000 UAH Филиалул. Преображенская, 49/51
Ответственный специалист
высшей категории Оксана Курганская
высшей категории Оксана Курганская
Показать
Дополнительные услуги
Похожие объекты
Двухкомнатная квартира
г.Одесса/Центр/Спиридоновская ул.
Цена60 000 USD
Общая64 м2
Цена60 000 USD
64 м2
Комнаты в коммуне
г.Одесса/Центр/Вадима Корженко ул. (Осипова ул.)
Цена45 000 USD
Общая53 м2
Цена45 000 USD
53 м2