Продається 2-комн. квартира в новобудові, Пішонівська вул., м.Одеса
Одеса, Центральном, ул. Пішонівська в
ID 210919
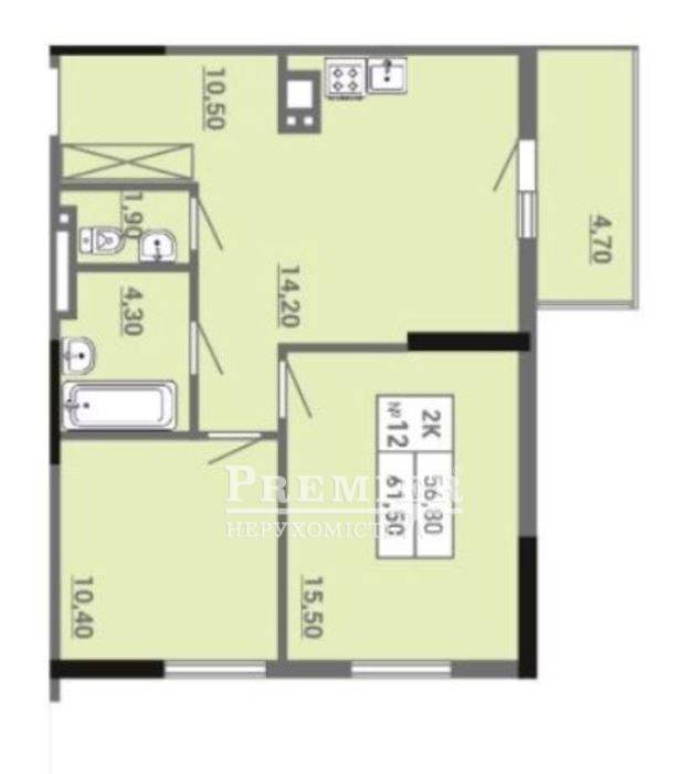
Кімнат
2
Загальна
61.5 м2
Житлова
40 м2
Кухня
14.2 м2
Поверх
16
Поверховість
19
Пропонується до продажу 2-кімнатна квартира з сучасним функціональним плануванням в новобудові центрального району міста. Високий етаж, вікна з панорамним склінням - багато світла та гарний краєвид на місто та море. Виконано стяжку підлоги, встановлено лічильники, заведено всі комунікації, а далі - фантазуйте без меж! Перевага локації — справжній освітній хаб! У радіусі району — 8 вищих навчальних закладів, зокрема провідні університети Одеси. Ідеально для студентів, викладачів та інвесторів, які шукають нерухомість із гарантованим попитом на оренду. Комфортне життя — розумне інвестування. Поруч: транспорт, школи, дитсадки, магазини, медичні та культурні заклади, парк. Житло, яке поєднує зручність, якість і вигідну ціну. ???? Запрошуємо на перегляд — квартира вже чекає на Вас!
65 000 USD
58 000 USD 78 000 EUR
48 333 EUR 2 795 000 UAH
2 494 000 UAH Філіявул. Преображенська, 49/51
Відповідальний спеціаліст
вищої категорії Оксана Курганська
вищої категорії Оксана Курганська
Показати
Додаткові послуги
Схожі об`єкти
Двокімнатна квартира
м.Одеса/Центр/Спиридонівська вул.
Цена60 000 USD
Общая64 м2
Цена60 000 USD
64 м2
Комнаты в коммуне
м.Одеса/Центр/Вадима Корженка вул. (Осипова вул.)
Цена45 000 USD
Общая53 м2
Цена45 000 USD
53 м2