Продается 1-комнатная квартира, Филатова Академика ул., г.Одесса
Одесса, Хаджибейском, ул. Филатова Академика
ID 211496
Комнат
1
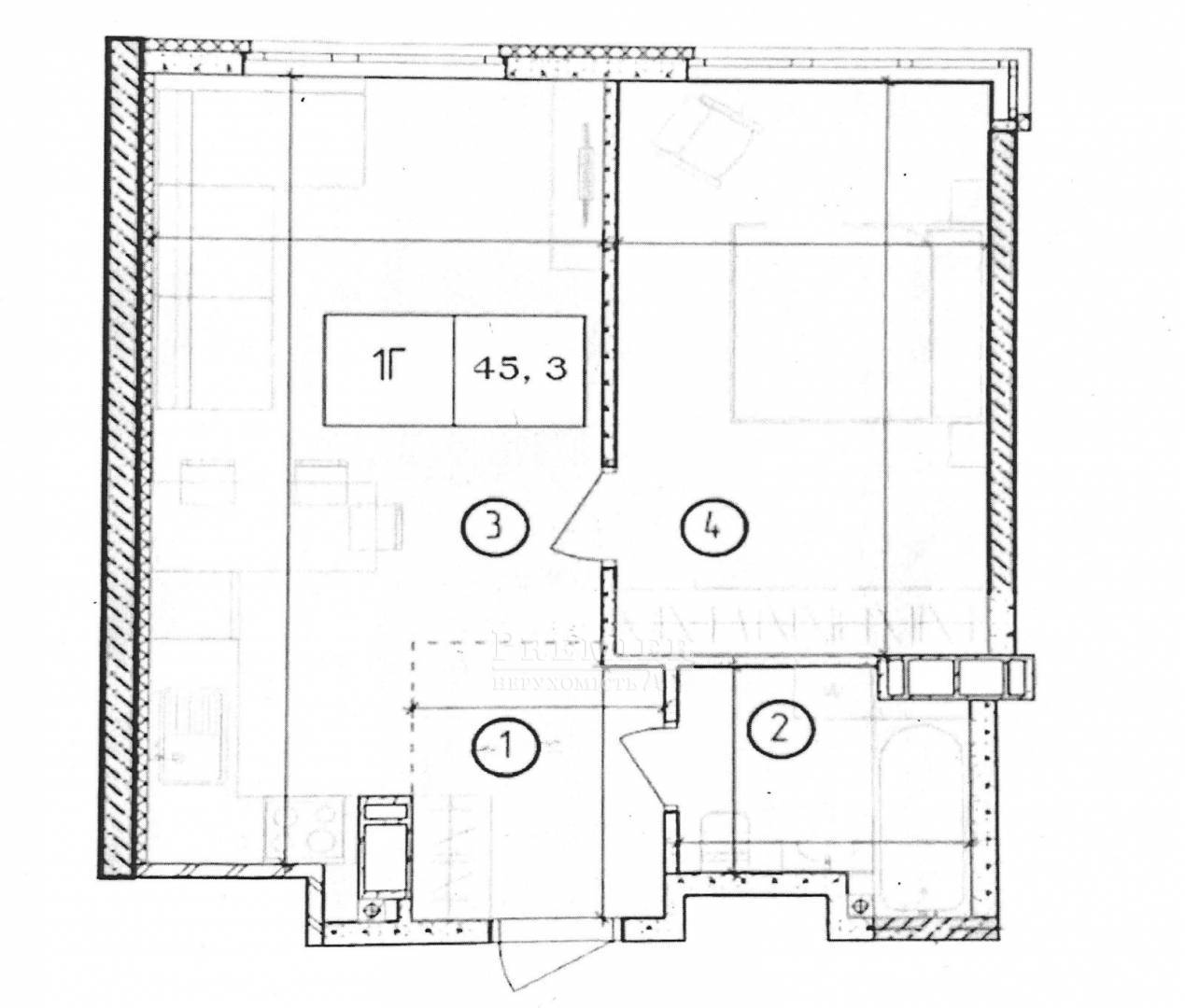
Общая
45 м2
Жилая
20 м2
Этаж
16
Этажность
24
Продается просторная 1-комнатная квартира 45 кв.м. в современном жилом комплексе в районе площади Толбухина. Удачная планировка: большая кухня-гостиная, отдельная спальня, санузел совместимый. Панорамные окна. Видовой 16 этаж 24-этажного надежного монолитно-каркасного дома. Дом сдан и заселен.
Квартира с частично выполненными работами, подготовлена к чистовому ремонту: прокладка электричества, черновая штукатурка стен, идеальная стяжка, установлены отопление, металлопластиковые окна, надежная входная бронированная дверь, заведены все коммуникации, высота потолков 2,7м.
В комплексе закрыта охраняемая территория, подземный паркинг, изысканный интерьер, современные лифты, услуги и магазины на первых 3-х этажах. Автономная система при отключении света работают лифты, отопление, вода, канализация.
Престижный район, отличная инфраструктура все рядом: супермаркеты, рынки, магазины, несколько школ и детсадов, больницы, поликлиники, спортзалы, парк им.Марка Твена (им.Горького). Общественным транспортом несколько остановок до ТРЦ Сити-Центр, железнодорожного вокзала и Привоза, 15-20 минут на авто до моря или в центр города.
Квартира с частично выполненными работами, подготовлена к чистовому ремонту: прокладка электричества, черновая штукатурка стен, идеальная стяжка, установлены отопление, металлопластиковые окна, надежная входная бронированная дверь, заведены все коммуникации, высота потолков 2,7м.
В комплексе закрыта охраняемая территория, подземный паркинг, изысканный интерьер, современные лифты, услуги и магазины на первых 3-х этажах. Автономная система при отключении света работают лифты, отопление, вода, канализация.
Престижный район, отличная инфраструктура все рядом: супермаркеты, рынки, магазины, несколько школ и детсадов, больницы, поликлиники, спортзалы, парк им.Марка Твена (им.Горького). Общественным транспортом несколько остановок до ТРЦ Сити-Центр, железнодорожного вокзала и Привоза, 15-20 минут на авто до моря или в центр города.
42 500 USD
36 797 EUR
1 872 975 UAH
Филиалул. Космонавтов, 32
Ответственный специалист Евгений Найденов
Показать
Дополнительные услуги
Доходность объекта от аренды*
от8946грн/месяц
*Средняя цена при сдаче объекта в аренду в Хаджибейском районе
Изменение цен на однокомнатные квартиры в Хаджибейском районе
Похожие объекты
Однокомнатная квартира
г.Одесса/Хаджибейский/Кропивницкого ул.
Цена45 000 USD
Общая40 м2
Цена45 000 USD
40 м2
1-комн. квартира в новострое
г.Одесса/Хаджибейский/Алексея Вадатурского ул. (Малиновского Маршала ул.)
Цена35 000 USD
Общая45 м2
Цена35 000 USD
45 м2
Однокомнатная квартира
г.Одесса/Хаджибейский/Алексея Вадатурского ул. (Малиновского Маршала ул.)
Цена39 000 USD
Общая51 м2
Цена39 000 USD
51 м2
Однокомнатная квартира
г.Одесса/Хаджибейский/Бреуса Якова ул.
Цена55 000 USD
Общая52 м2
Цена55 000 USD
52 м2