Продається 1кімнатна квартира, Філатова Академіка вул., м.Одеса
Одеса, Хаджибейськом, ул. Філатова Академіка в
ID 211496
Кімнат
1
Загальна
45 м2
Житлова
20 м2
Поверх
16
Поверховість
24
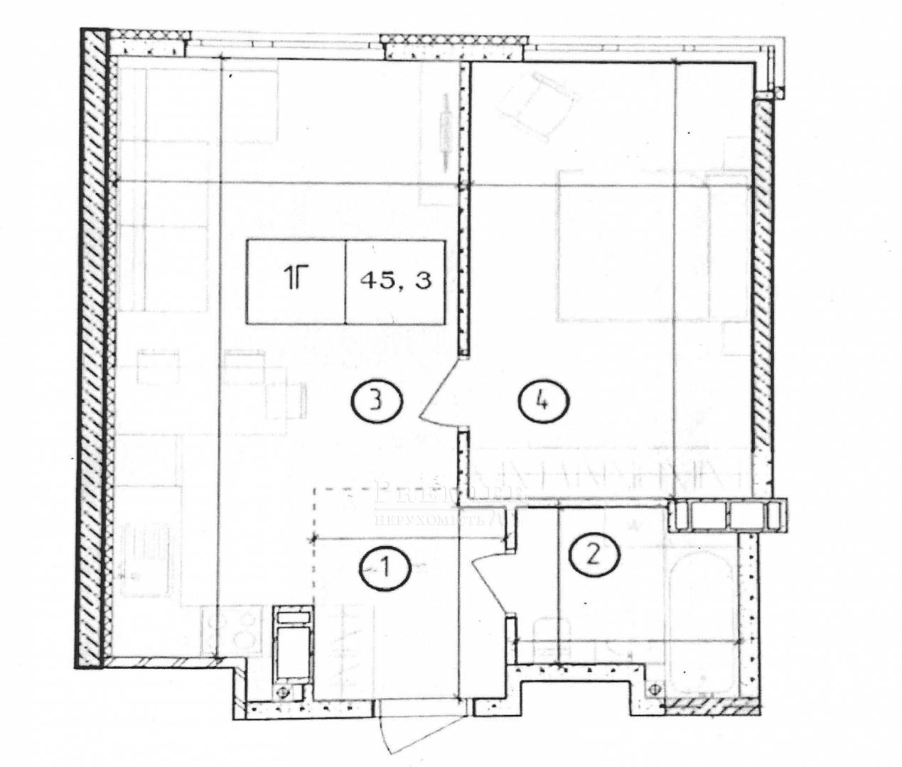
Продається простора 1-кімнатна квартира 45 кв.м. в сучасному житловому комплексі в районі площі Толбухіна. Вдале планування: велика кухня-вітальня, окрема спальня, санвузол сумісний. Панорамні вікна. Видовий 16-й поверх 24-поверхового надійного монолітно-каркасного будинку. Будинок зданий та заселений.
Квартира з частково виконаними роботами, підготовлена до чистового ремонту: прокладка електрики, чорнова штукатурка стін, ідеальна стяжка, встановлені опалення, металопластикові вікна, надійні вхідні броньовані двері, заведені всі комунікації, висота стелі 2,7м.
В комплексі закрита територія, що охороняється, підземний паркінг, вишуканий інтер'єр, сучасні ліфти, послуги і магазини на перших 3-х поверхах. Автономна система при відключенні світла працюють ліфти, опалення, вода, каналізація.
Престижний район, відмінна інфраструктура все поряд: супермаркети, ринки, магазини, декілька шкіл і дитсадків, лікарні, поліклініки, спортзали, парк ім.Марка Твена (ім.Горького). Громадським транспортом декілька зупинок до ТРЦ Сіті-Центр, залізничного вокзалу та Привозу, 15-20 хвилин на авто до моря або у центр міста.
Квартира з частково виконаними роботами, підготовлена до чистового ремонту: прокладка електрики, чорнова штукатурка стін, ідеальна стяжка, встановлені опалення, металопластикові вікна, надійні вхідні броньовані двері, заведені всі комунікації, висота стелі 2,7м.
В комплексі закрита територія, що охороняється, підземний паркінг, вишуканий інтер'єр, сучасні ліфти, послуги і магазини на перших 3-х поверхах. Автономна система при відключенні світла працюють ліфти, опалення, вода, каналізація.
Престижний район, відмінна інфраструктура все поряд: супермаркети, ринки, магазини, декілька шкіл і дитсадків, лікарні, поліклініки, спортзали, парк ім.Марка Твена (ім.Горького). Громадським транспортом декілька зупинок до ТРЦ Сіті-Центр, залізничного вокзалу та Привозу, 15-20 хвилин на авто до моря або у центр міста.
42 500 USD
36 116 EUR
1 798 600 UAH
Філіявул. Космонавтів, 32
Відповідальний спеціаліст Євгеній Найдьонов
Показати
Додаткові послуги
Прибутковість об'єкту від оренди*
від8250грн/місяць
*Середня ціна при здачі об'єкта в оренду в Хаджибейськом районі
Зміна цін на однокімнатні квартири в Хаджибейськом районі
Схожі об`єкти
1-комн. квартира в новобудові
м.Одеса/Хаджибейський/Олексія Вадатурського вул. (Малиновського Маршала вул.)
Цена35 000 USD
Общая45 м2
Цена35 000 USD
45 м2
Однокімнатна квартира
м.Одеса/Хаджибейський/Бреуса Якова вул.
Цена55 000 USD
Общая52 м2
Цена55 000 USD
52 м2
Однокімнатна квартира
м.Одеса/Хаджибейський/Кропивницького вул.
Цена42 000 USD
Общая34 м2
Цена42 000 USD
34 м2
Однокімнатна квартира
м.Одеса/Хаджибейський/Олексія Вадатурського вул. (Малиновського Маршала вул.)
Цена46 500 USD
Общая40.5 м2
Цена46 500 USD
40.5 м2