Продается Дом дача, 13 линия, Великодолинское, Западный СОГ
Одесская обл. / Великодолинское / 13 линия
 ID 212405
Комнат
 2
 Общая
 6 м2 
 Участок
 6 соток
 Вода
 Водопровод
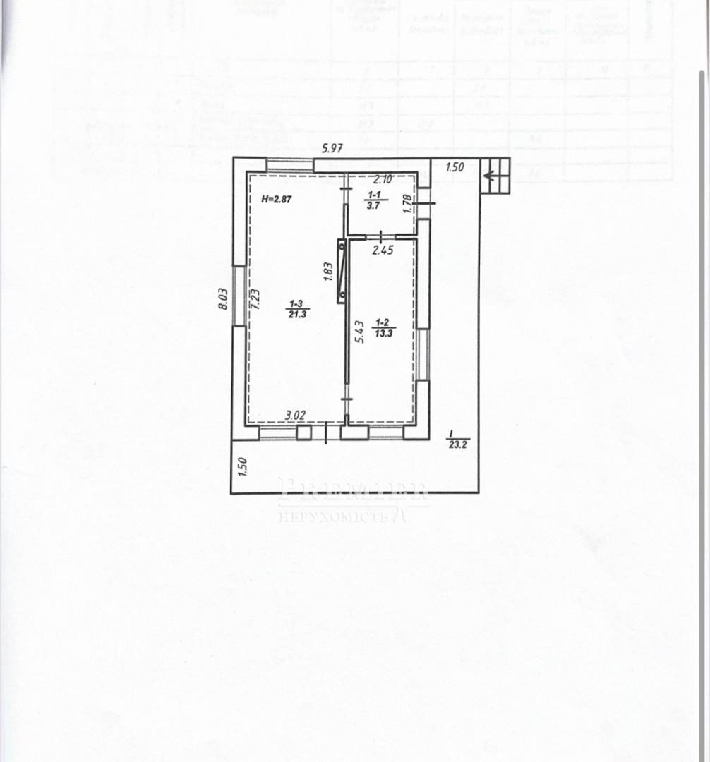
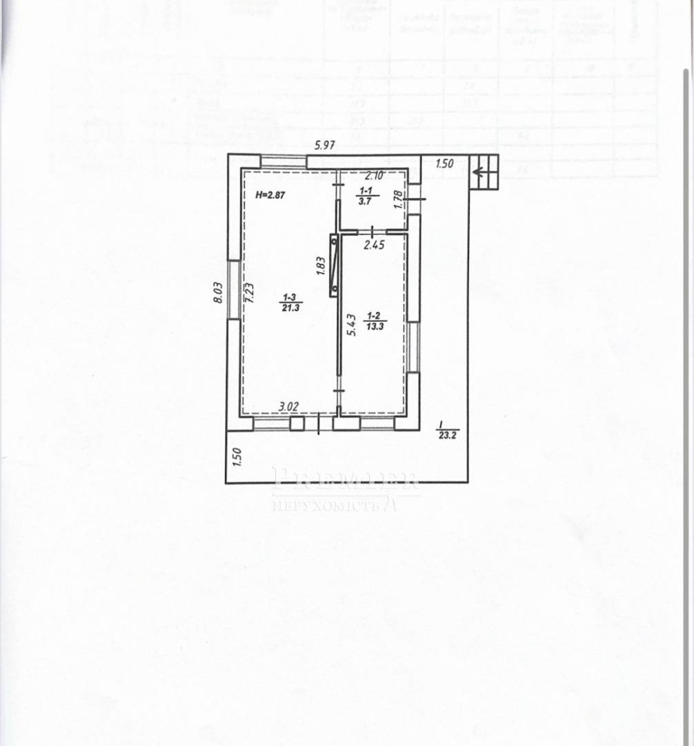
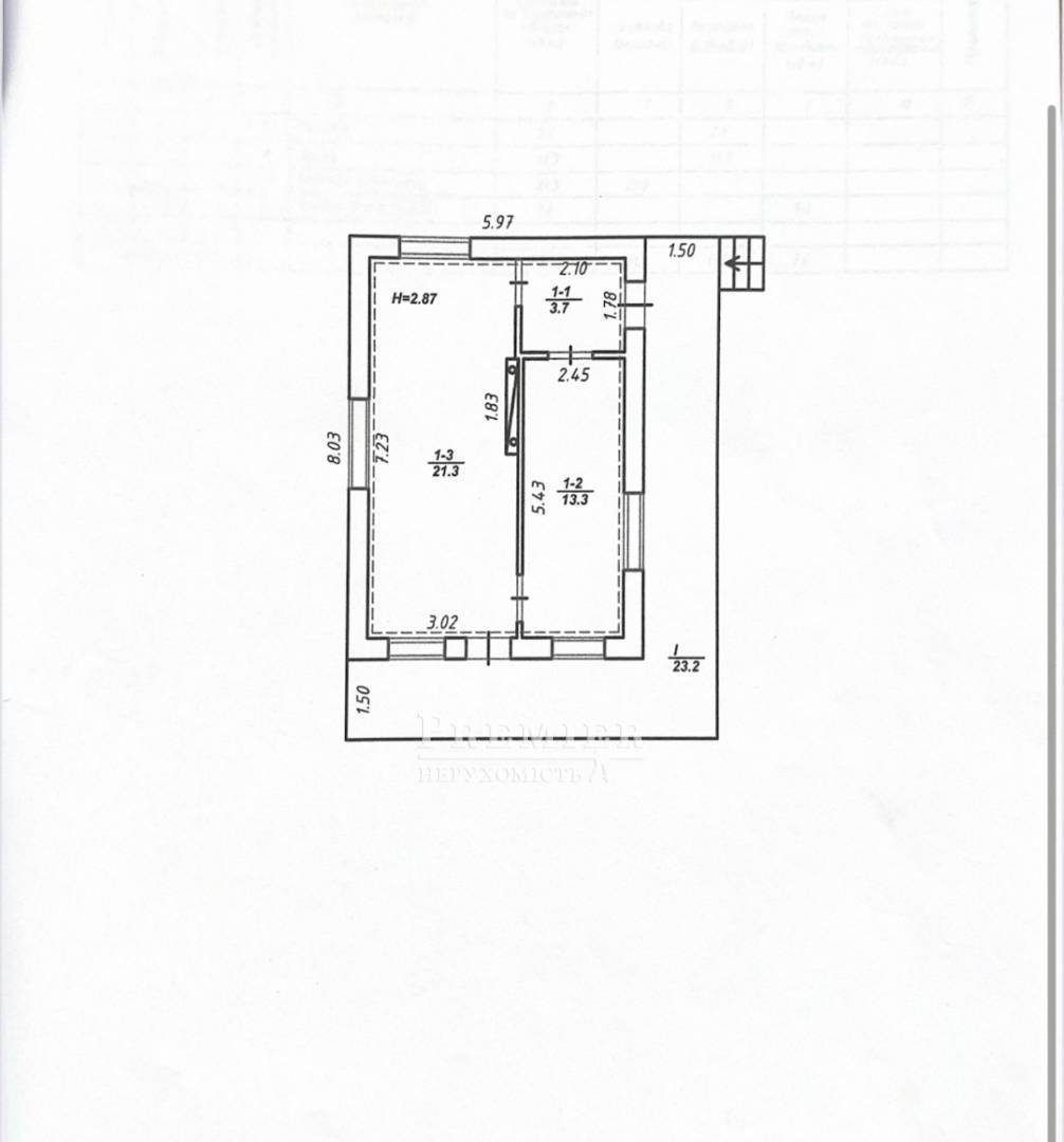
  Продается участок с недостроенным домом и подвалом. Удобное расположение — участок находится рядом с дорогой, асфальтированный подъезд (бетонная дорога), въезд на улицу через шлагбаум. Район с хорошими соседями, все проживают постоянно. На участке уже есть недостроенный дом с подвалом. Собственная скважина и колодец. В дом заведен свет. Городская вода заведена на участок. Рядом проходит линия газа. Это безупречное место для неизменного проживания. Все коммуникации подведены или рядом. Это отличная возможность реализовать свой дом мечты в комфортном месте!  
  13 500 USD 
  11 601 EUR 
  569 025  UAH 
  Филиалг. Черноморск ул. Данченко, 8 
  Ответственный специалист Людмила Сакун 
    Показать
 
 Дополнительные услуги
 Похожие объекты
            
            Дом дача
            
        Одесcк. обл./Одесский район/Яски/Космонавтов ул.
Цена14 000 USD
                                    Участок21сотка
                    Цена14 000 USD
21  сотка
        
            
            Дом дача
            
        Одесcк. обл./Одесский район/Березань/Степная ул.
Цена12 000 USD
                            Общая120 м2
                                    Участок25соток
                    Цена12 000 USD
25  соток
        
            
            Дом дача
            
        Одесcк. обл./Одесский район/Березань/Виноградная ул.
Цена12 000 USD
                            Общая120 м2
                                    Участок25соток
                    Цена12 000 USD
25  соток
        
            
            Дом дача
            
        Одесcк. обл./Одесский район/Роксоланы/Без улицы
Цена13 900 USD
                            Общая80 м2
                                    Участок10.5соток
                    Цена13 900 USD
10.5  соток
         
  
  
  
  
  
  
  
 