Продається Будинок дача, 13 лінія, Великодолинське, західний СОГ
Одеська обл. / Великодолинське / 13 лінія
ID 212405
Кімнат
2
Загальна
6 м2
Ділянка
6 соток
Вода
Водопровод
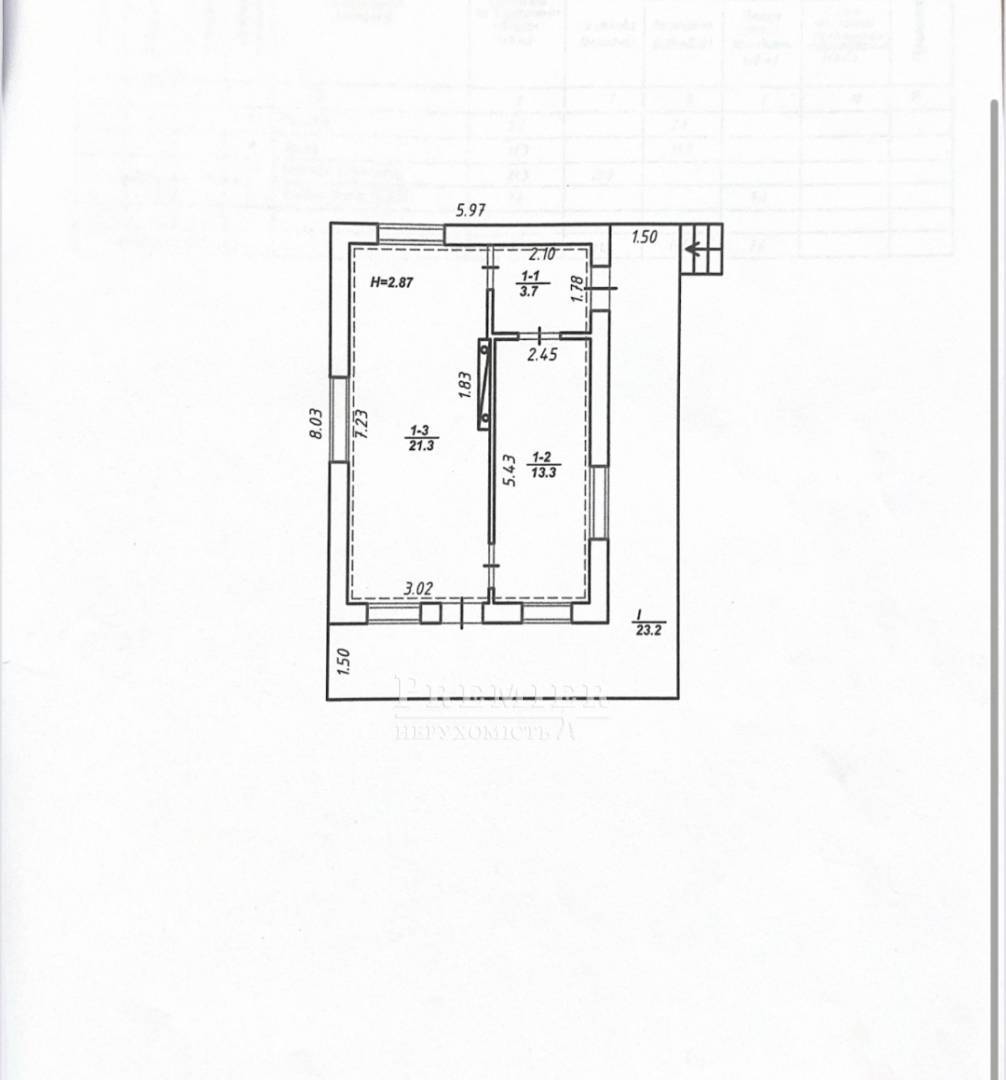
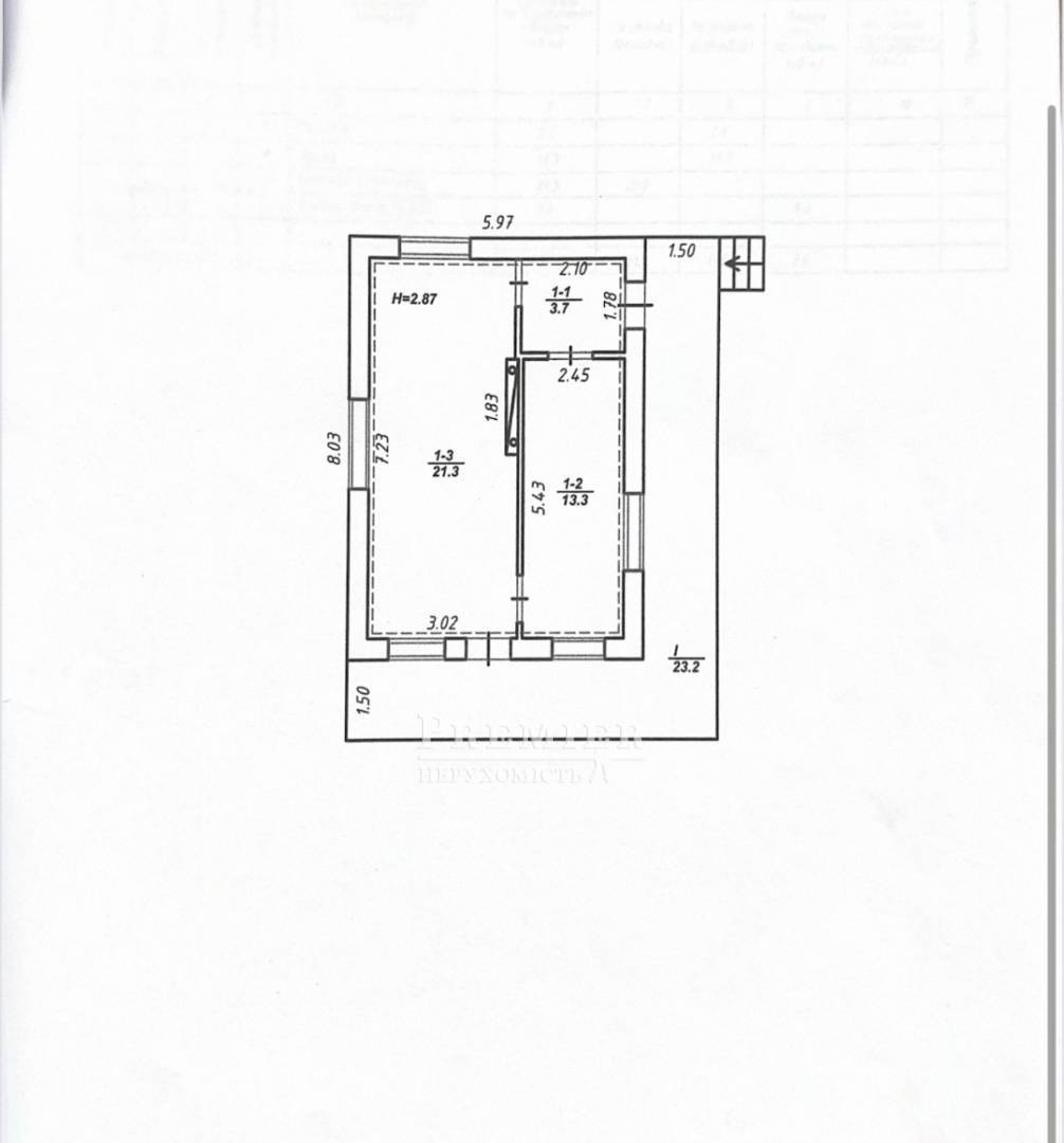
Продається ділянка з недобудованим будинком та підвалом. Зручне розташування — ділянка знаходиться поруч із дорогою, під’їзд асфальтований (бетонна дорога), в’їзд на вулицю через шлагбаум. Район із гарними сусідами, усі проживають постійно.На ділянці вже є недобудований будинок із підвалом. Власна свердловина та криниця.У будинок заведено світло. Міська вода заведена на ділянку. Поруч проходить лінія газу. Це ідеальне місце для постійного проживання. Усі комунікації підведені або поруч. Це чудова можливість реалізувати свій будинок мрії в комфортному місці!
13 500 USD
12 000 USD 15 890 EUR
10 195 EUR 594 675 UAH
528 600 UAH Філіям. Чорноморськ вул. Данченка, 8
Відповідальний спеціаліст Людмила Сакун
Показати
Додаткові послуги
Схожі об`єкти
Будинок дача
Одеська. обл./Одескій район/Березань/Степова вул.
Цена12 000 USD
Общая120 м2
Участок25соток
Цена12 000 USD
25 соток
Будинок дача
Одеська. обл./Одескій район/Березань/Виноградна вул.
Цена12 000 USD
Общая120 м2
Участок25соток
Цена12 000 USD
25 соток
Будинок дача
Одеська. обл./Одескій район/Новодолинська с/рада/Середня вул.
Цена13 500 USD
Общая65 м2
Участок6.9соток
Цена13 500 USD
6.9 соток
Будинок дача
Одеська. обл./Одескій район/Красносельська с/рада/Лесна вул.
Цена15 500 USD
Общая58 м2
Участок8соток
Цена15 500 USD
8 соток