Продается Дом дача, Садовая ул., Лески
Одесская обл. / Лески / ул. Садовая
ID 214538
Комнат
3
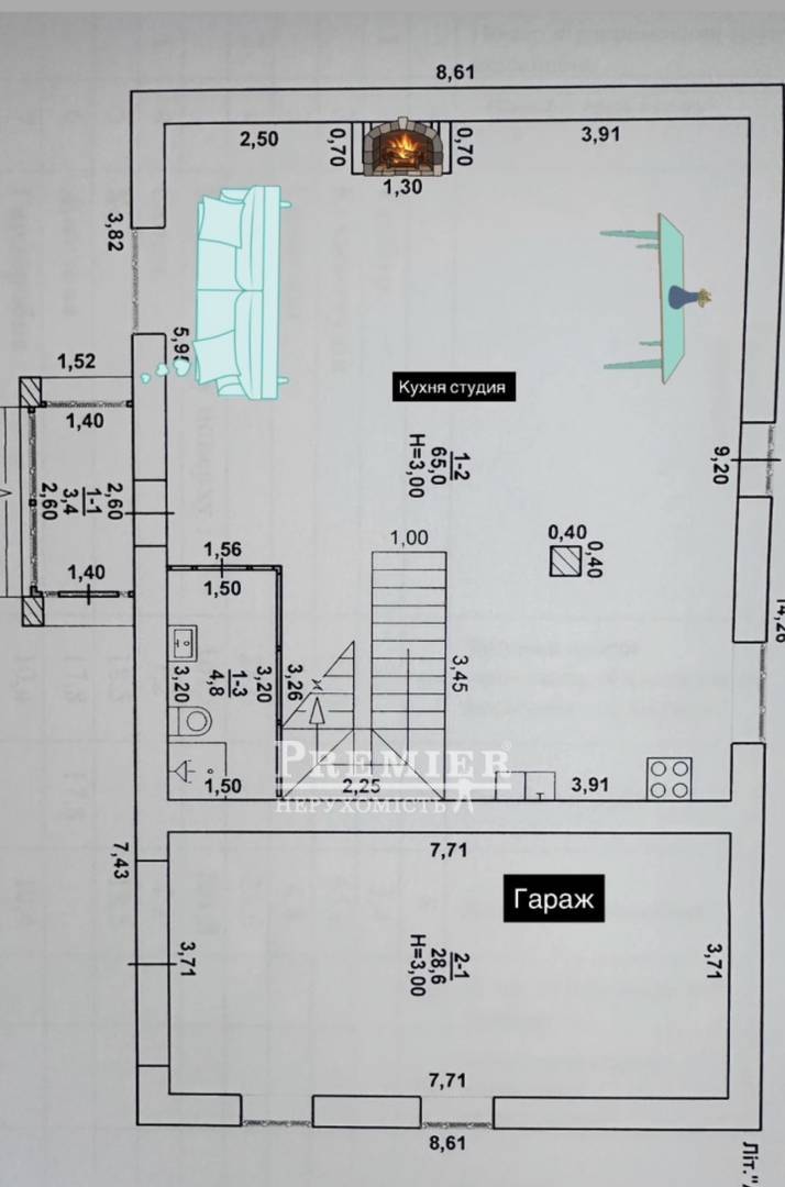
Общая
190 м2
Кухня
65 м2
Этажность
3
Участок
10 соток
Вода
Водопровод
Предлагается к продаже дом в Лесках. Общая площадь 190 кв.м, два этажа. Дом введен в эксплуатацию, всё подключено: свет, вода, сделаны сантехника, электрика, проведен интернет. Толстые стены, отштукатурен полностью внутри , сделаны стеклянные перегородки в санузле и столешницы все под чистовую отделку. Теплые полы по всему 1 этажу, поставлены мраморные подоконники везде, крыша утеплена по самым передовым технологиям и эковатой, всё зашито сугубо деревом. Все окна противвандальные. Все провода по электричеству тоже самые дорогие. Все краны и инсталляции Ghore. Дом расположен на 10 сотках земли но по факту там можно забрать 15 соток так как конец дороги. Есть куплена плитка на гараж. Сделан забор и посажены 10 летние сосны. Выгребная яма сделана.
Дом находится за Дерби, 5 минут до Кадорра на Сахарова пешком.
Дом находится за Дерби, 5 минут до Кадорра на Сахарова пешком.
160 000 USD
137 112 EUR
7 102 400 UAH
Филиалул. Сахарова 24
Ответственный специалист
высшей категории Наталья Кухтинова
высшей категории Наталья Кухтинова
Показать
Дополнительные услуги
Похожие объекты
Дом дача
Одесcк. обл./Одесский район/Фонтанка/Кошевого ул.
Цена200 000 USD
Общая180 м2
Участок12соток
Цена200 000 USD
12 соток
Дом дача
Одесcк. обл./Одесский район/Доброслав (Коминтерновское)/Первомайская
Цена120 000 USD
Общая58 м2
Участок8.5соток
Цена120 000 USD
8.5 соток
Дом дача
Одесcк. обл./Одесский район/Фонтанка/Сковороди (Пушкина) ул...
Цена225 000 USD
Общая120 м2
Участок2.7сотки
Цена225 000 USD
2.7 сотки
Дом дача
Одесcк. обл./Одесский район/пгт. Таирово/массив №21
Цена136 000 USD
Общая136 м2
Участок3сотки
Цена136 000 USD
3 сотки