Продается Prime in Dayberg ( Прайм в Дайберге), Центральная, Лиманка (Мизикевича)

Одесская обл. / Лиманка (Мизикевича) / Центральная
Рассрочка на 3 года без удорожания



Характеристики Prime in Dayberg ( Прайм в Дайберге)
Начало строительства:
Окончание строительства:
4 квартал 2026 г.
Конструктив дома
Межквартирные:
Газобетон
Состояние жилья
Окна:
Метало-пластиковый профиль
Высота помещения:
3,4
Отопление:
Индивидуальное
Инженерные системы
Безопасность:
есть
Дома, участки
Площадь земельного участка:
2,7
Время постройки:
2026 г.
Общая стоимость:
135000
Коммуникации:
городские
Таунхаусы
Стоимость дома:
135 000
Коммуникации:
городские

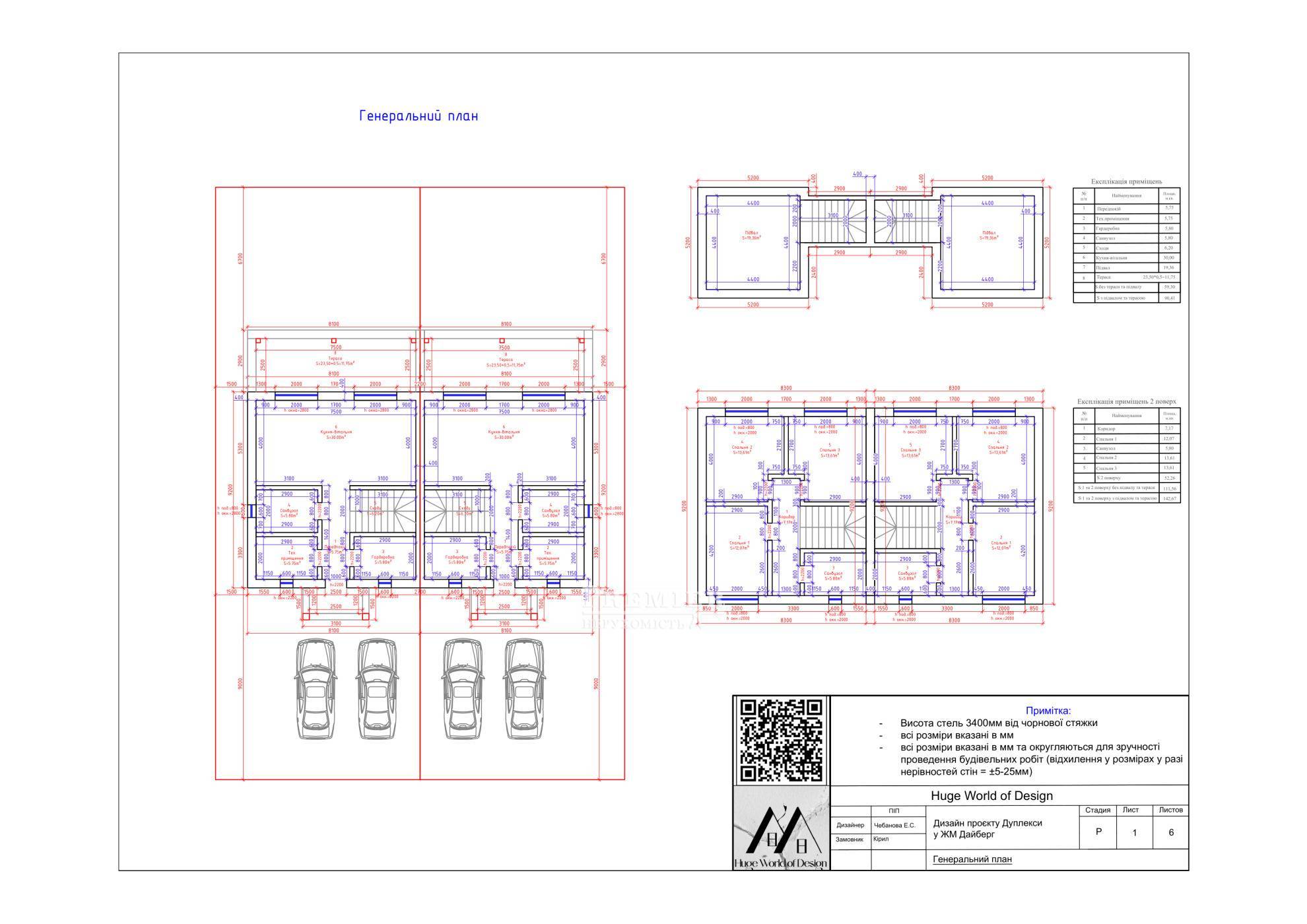
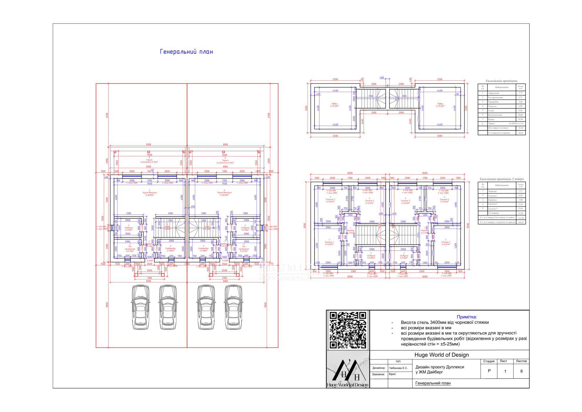
Новый комплекс дуплексов Prime In Dayberg в жилом массиве Дайберг – это недвижимость для тех, кто хочет проживать в тихой местности, при этом неподалеку от обширной инфраструктуры и с хорошей транспортной развязкой. Расположение в Киевском районе Одессы позволит без проблем добраться в любую точку города, а также найти любой городской и коммерческий объект, при этом находиться в окружении чистого воздуха в комфортном пространстве.

Комплекс представляет собой 48 двухэтажных дуплексов, расположенных на просторной закрытой территории. Блочный фундамент с монолитной заливкой гарантируют прочность и надежность строений в любое время года и при любых внешних воздействиях. Стены из газобетона смогут защитить жилье от холода и шума, а утепленный фасад создаст максимально комфортные условия и зимой, и летом. Индивидуальная система отопления позволит жильцам самостоятельно регулировать подачу температуры в помещения и не зависеть от городских служб. Крыша домов плоская, с гидро- и паробарьером, чтобы при любых погодных условиях жилье не пострадало и было устойчивым к любой погоде. Круглосуточная охрана и система видеонаблюдения гарантируют безопасность имущества и позволит обитателям комплекса пребывать на закрытой от посторонних территории. Тут предусмотрена парковка, где автомобили будут в комфорте и под защитой, также есть места для отдыха и досуга для всей семьи, тематические зоны отдыха, зеленые насаждения, аллеи для прогулок и даже аквапарк. Стильное современное оформление, применение экологичных и прочных материалов в строительстве, уникальный дизайн территории делают комплекс высоко востребованным и оптимально подходящим для всех ценителей повышенного комфорта. Жилье тут отвечает современным европейским стандартам и обеспечит своих жильцов всеми необходимыми условиями, а также станет выгодным для инвесторов, благодаря удачному расположению и комфорту.

от 5 980 500
ГРН. / кв.м
USD
UAH
Компания "Премьер" является официальным партнером строительной компании. Объекты продаются без какой либо комиссии.
Контакты менеджеров по продаже
ул. Космонавтов, 32
Задать вопрос
Назначить осмотр
Посмотреть на карте
Дополнительные услуги