Продается ЖК Розенталь (Rosental), ул. Строителей 48/50, c. Лиманка






ЖК Розенталь
В экологически чистой местности под Одессой возводится новый жилой комплекс эконом класса. Он получил название «Розенталь». Территория под застройку выбрана неспроста. В настоящее время все активнее присматривается жилье в более отдаленных от шумного центра краях. Одну из главных ролей играет чистый свежий воздух и многочисленные зеленые насаждения. Именно это предлагается тем, кого заинтересовал ЖК «Розенталь». Несмотря на некую отдаленность, здесь есть все, что может понадобиться – развитая инфраструктура и удобная транспортная развязка.
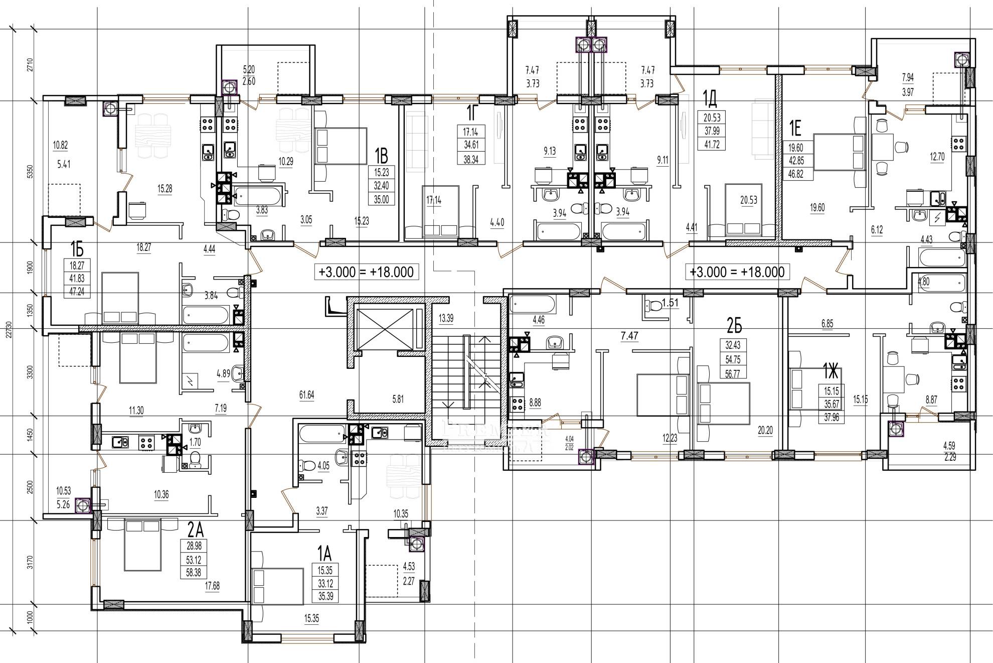
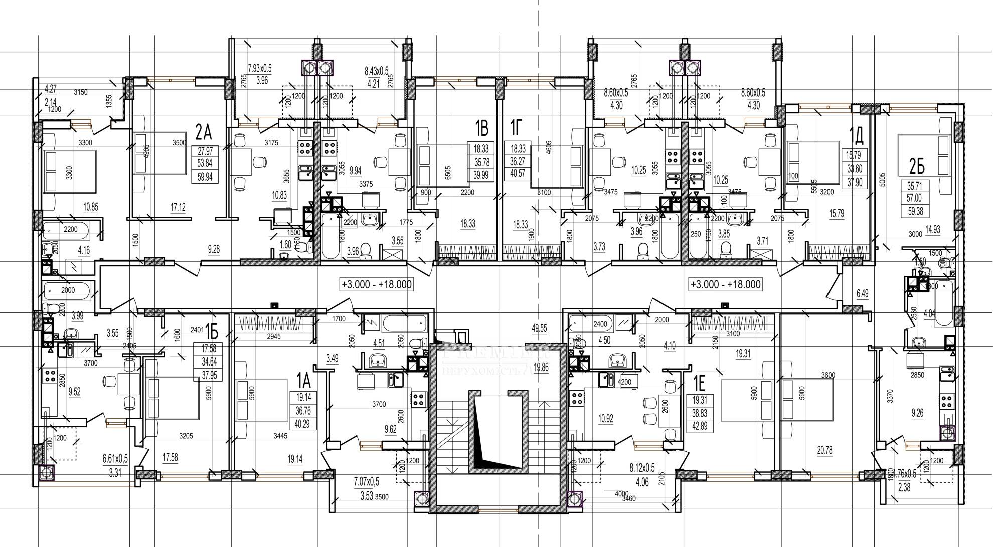
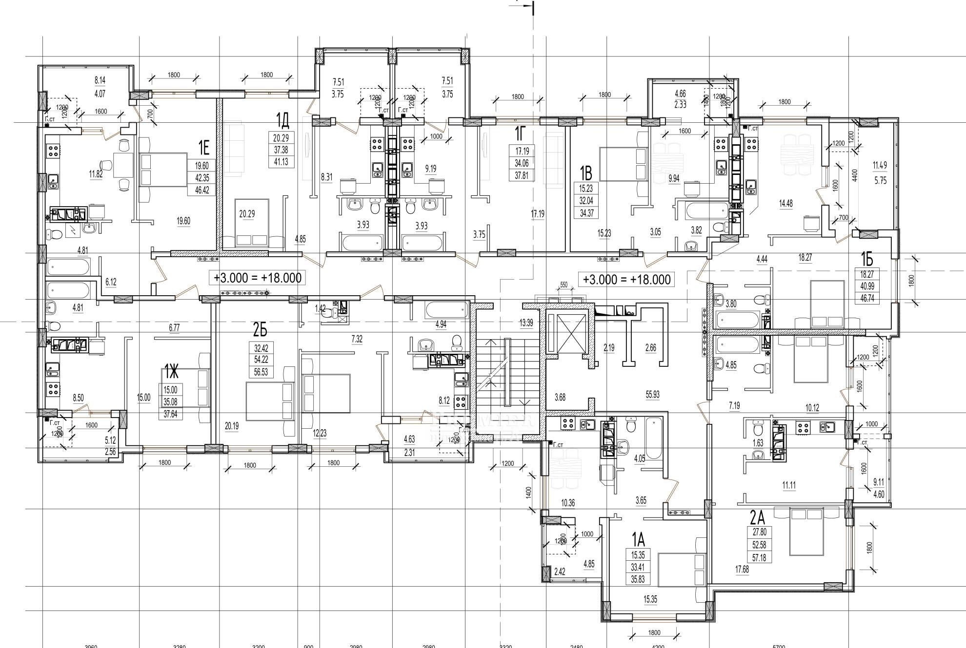
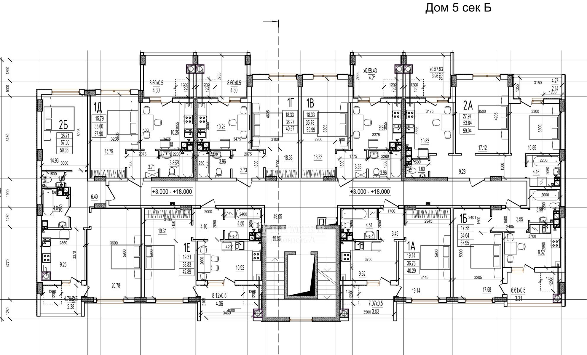
Комплекс состоит из 15 секций по 7 этажей. Монолитно-каркасная конструкция базируется на свайном фундаменте. Стены возводятся из газобетона со сборными железобетонными перекрытиями. Фасад штукатурится и покрывается фасадными красками, способными выдержать все прихоти природы. При этом есть балконы и лоджии, которые остекляются. Жилой комплекс отличается оригинальным дизайном, сочетающим лучшие классические и современные решения с индивидуальными элементами.
Предлагаются квартиры удобной планировки без «лишних» квадратов, что положительно скажется на коммунальном обеспечении. Они светлые и просторные с потолками 2,75 метров. По дому проводятся все инженерные сети. На крыше устанавливается газовая котельная, а также солнечные батареи энергосбережения. В каждой квартире монтируются отопительные приборы – металлические радиаторы. За сохранность микроклимата отвечают прочные металлопластиковые окна с энергосберегающими стеклопакетами.
В комплексе функционируют листы – пассажирский и грузопассажирский. Осуществляется установка системы безопасности и противопожарной системы. На цокольных этажах есть коммерческие помещения. Придомовая территория облагораживается. Проектом предусмотрено создание детских и спортивных площадок, а также высадка зеленых насаждений и цветочных клумб. По периметру действует круглосуточная охрана. Во двор выполняется удобный безопасный заезд. Для автовладельцев есть вместительная парковка.
Сдача дома: 1-ая очередь - дом 1-2 - сданы
2-ая очередь - сдана
3-ая очередь - 3 квартал 2021 года ( дом 7)
4-ая очередь - 3 квартал 2022 года (дом 5-6)
Количество комнат | Площадь | Цена за м2 |
---|---|---|
Однокомнатные квартиры | 33-47 м² | 620 у.е. |
Двухкомнатные квартиры | 52-65 м² | 580 у.е. |
Трехкомнатные квартиры | 77 м² | 620 у.е. |
Квартиры от хозяина в этом ЖК
Одесcк. обл./Одесский район/пгт. Таирово/Строителей ул.
Одесcк. обл./Одесский район/пгт. Таирово/Строителей ул.
Одесcк. обл./Одесский район/пгт. Таирово/Строителей ул.
Одесcк. обл./Одесский район/пгт. Таирово/Строителей ул.
Популярные новострои в этом районе
Одесcк. обл./Овидиопольский/пос. Мизикевича/Центральная ул.
Одесcк. обл./Овидиопольский/Авангард/7 км Овидиопольской до...
Одесcк. обл./Овидиопольский/Авангард/ул. Тихая / ул. Нижняя
Одесcк. обл./Овидиопольский/c. Лиманка/ул. Строителей 48/50