Продается Офис, 40-летия Победы ул., пгт. Таирово
Одесская обл. / пгт. Таирово / ул. 40-летия Победы
ID 2304
Общая
177 м2
Этажность
5
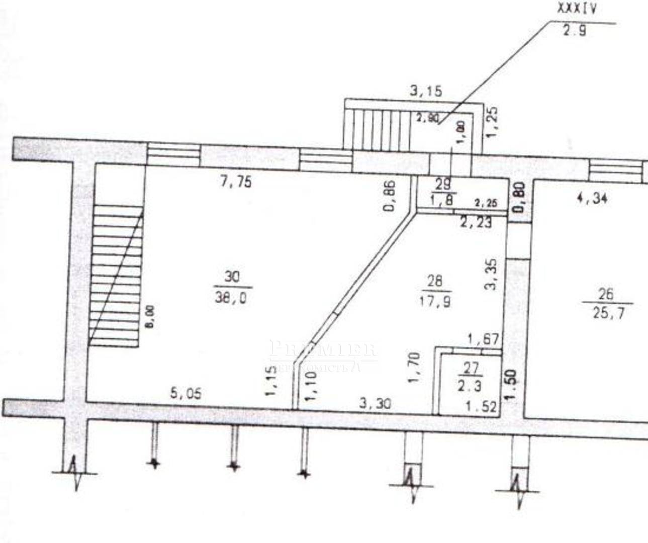
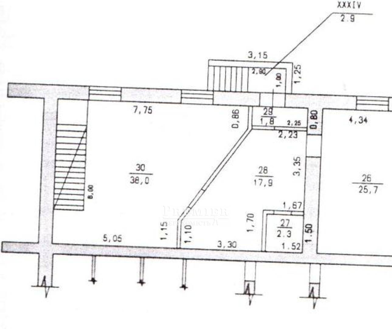
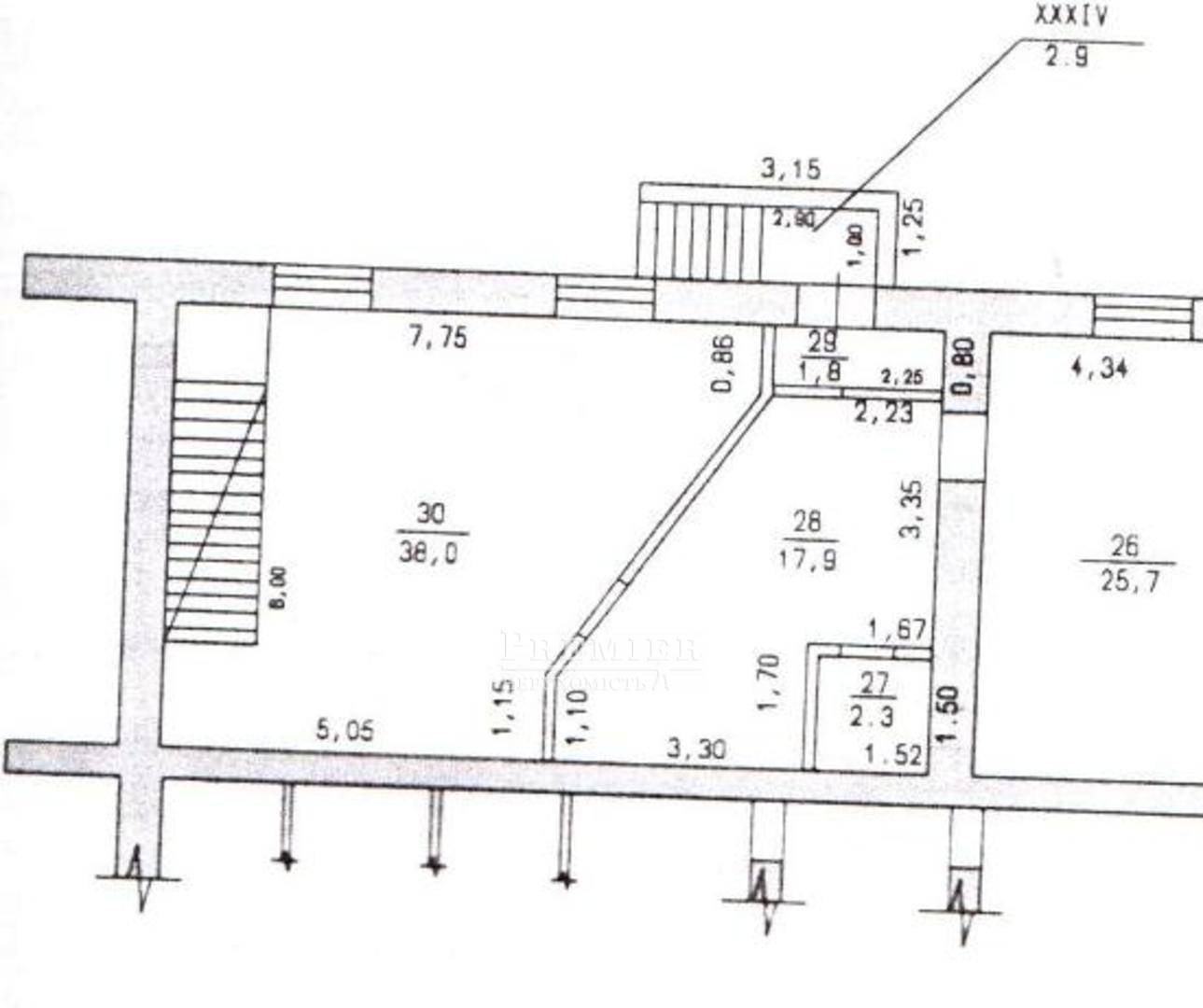
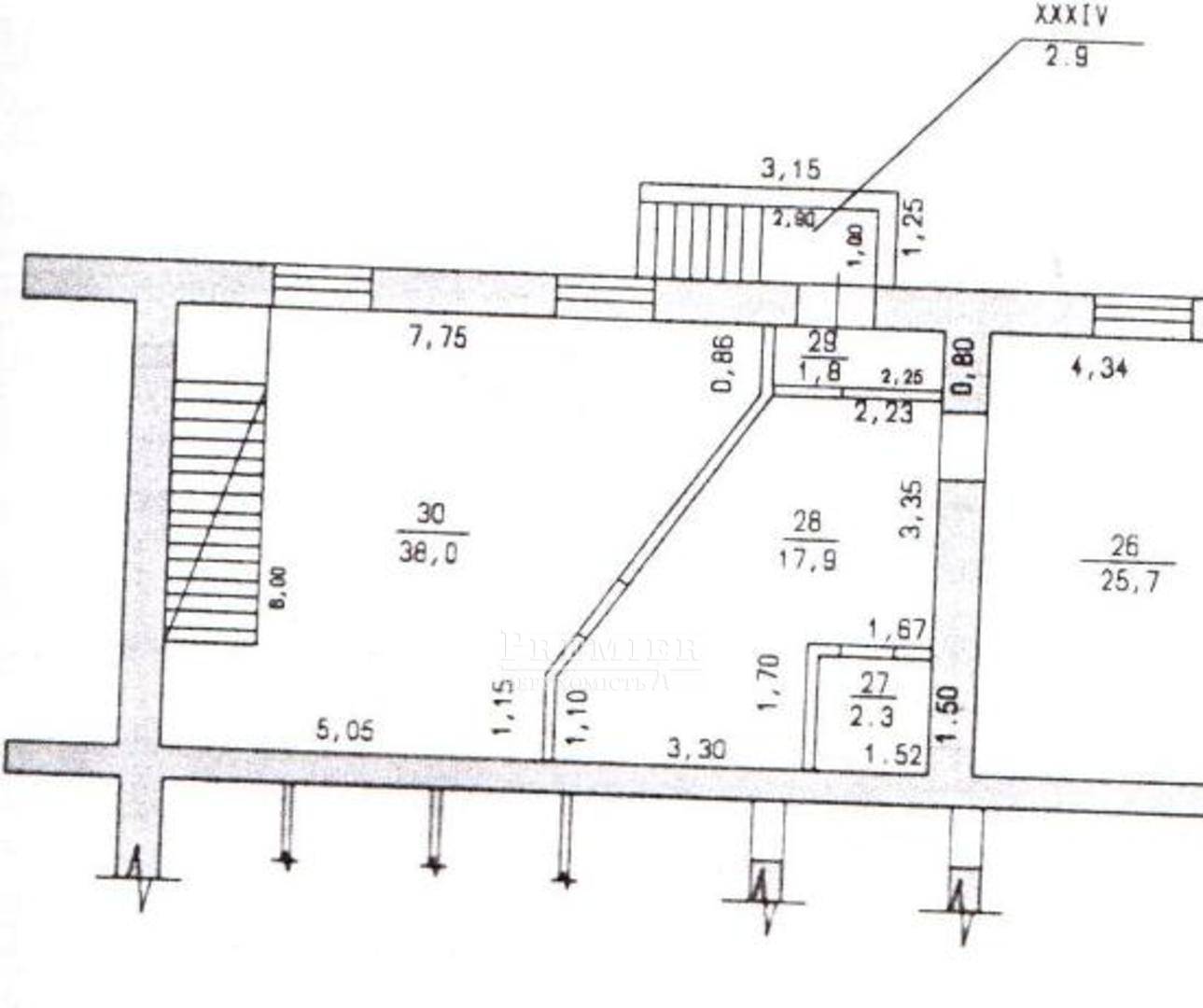
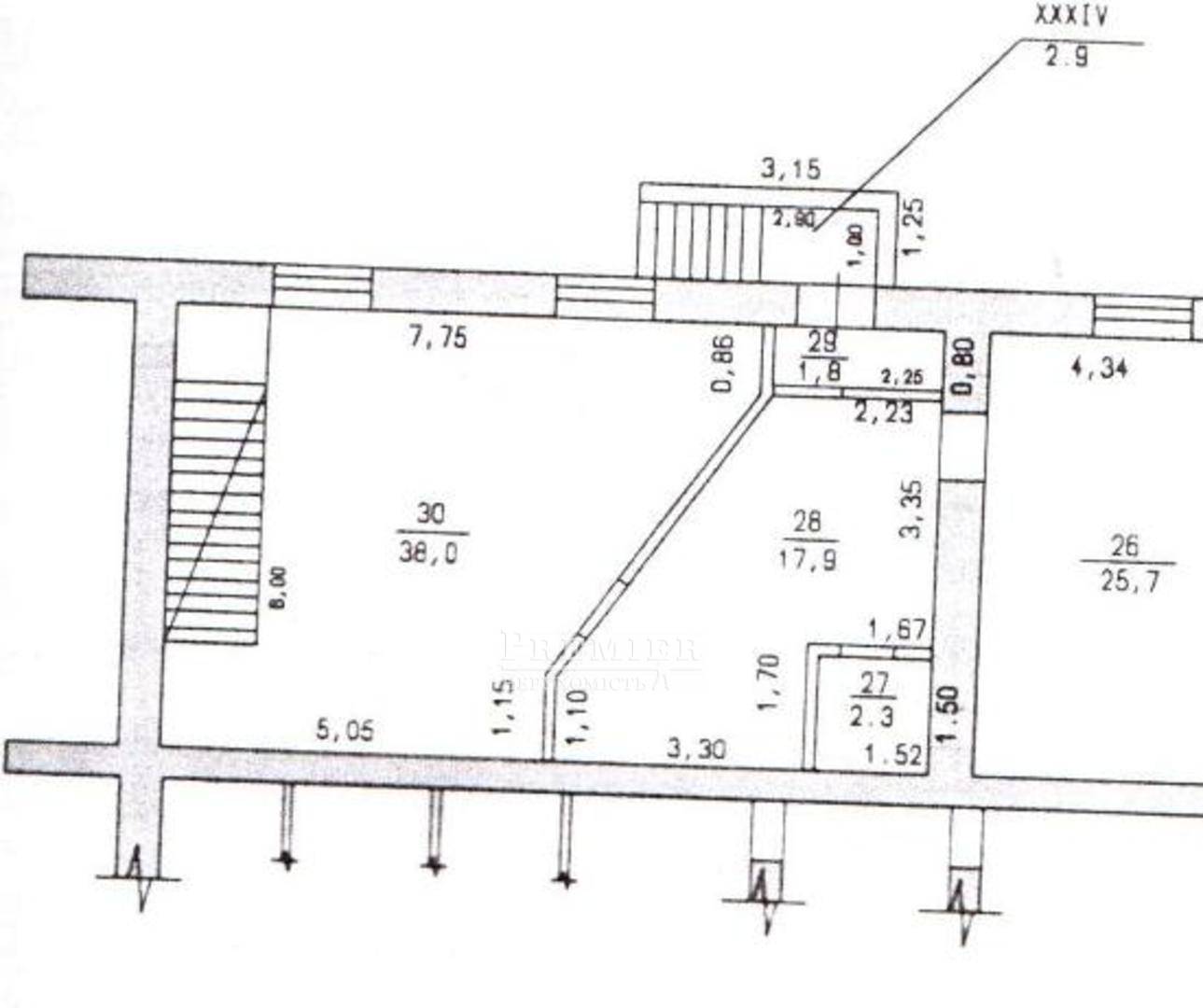
Продается в Одессе коммерческое предложение в пяти этажном кирпичном доме, цокольный этаж, общая площадь 177 м.кв., водопровод, высота потолков 3 м., можно под офис, спортивный зал, производство, сауну, склад, магазин. Металлическая дверь.
39 500 USD
30 000 USD 46 046 EUR
25 735 EUR 1 751 825 UAH
1 330 500 UAH Филиалул. Ак. Королева, 33
Ответственный специалист
высшей категории Владимир Нечипоренко
высшей категории Владимир Нечипоренко
Показать
Дополнительные услуги
Похожие объекты
Под любой вид деятельности
Черноморск/Мира просп. (Ленина ул.)
Цена23 000 USD
Общая26 м2
Цена23 000 USD
26 м2
Под любой вид деятельности
Одесcк. обл./Одесский район/пгт. Таирово/Строителей ул.
Цена35 750 USD
Общая51.13 м2
Цена35 750 USD
51.13 м2
Складские помещения
Одесcк. обл./Одесский район/Беляевка/Головатого Атамана ул....
Цена28 000 USD
Общая215 м2
Цена28 000 USD
215 м2