Продається Офис, 40-рччя Перемоги вул., пгт. Таїрове
Одеська обл. / пгт. Таїрове / ул. 40-рччя Перемоги в
ID 2304
Загальна
177 м2
Поверховість
5
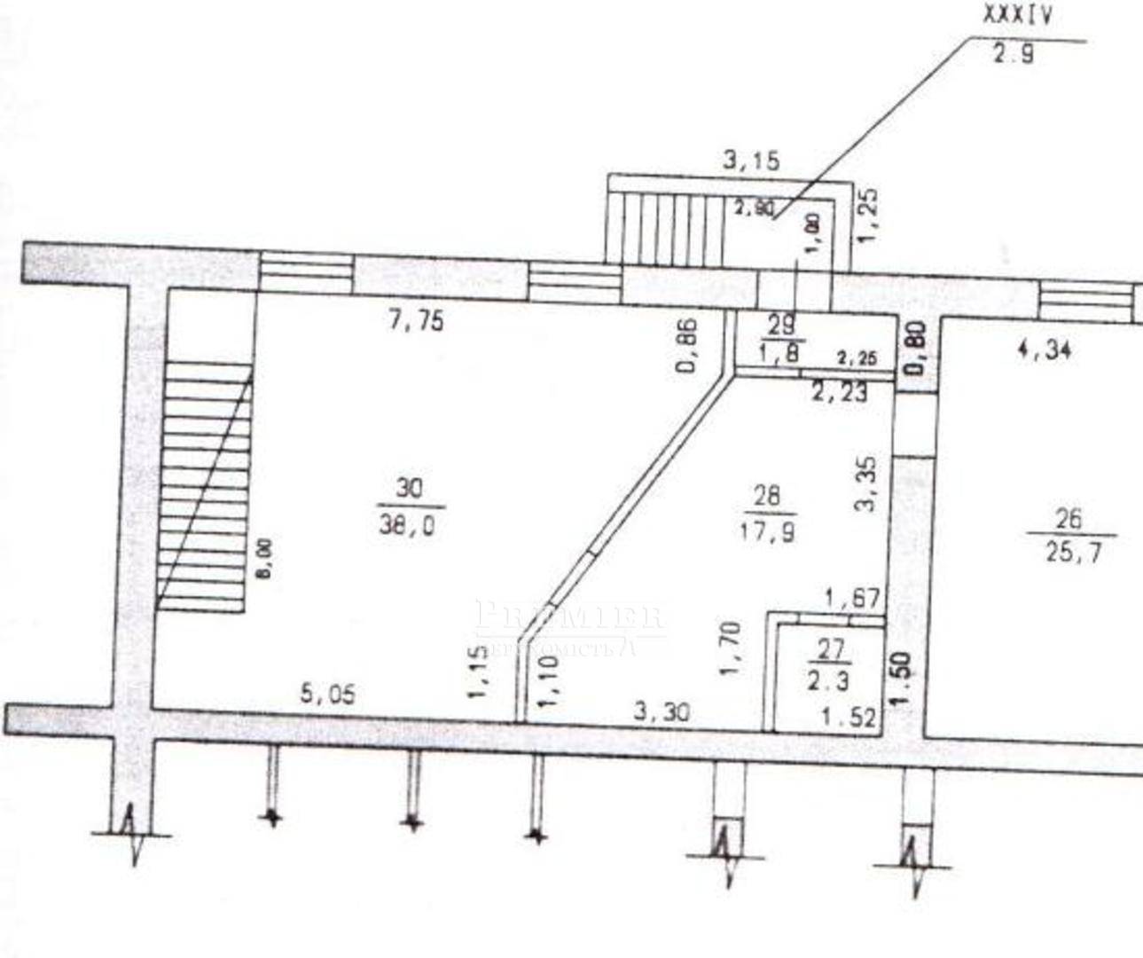
Продається в Одесі комерційна пропозиція в п'яти поверховому цегляному будинку, цокольний поверх, загальна площа 177 м.кв., водопровід, висота стель 3 м., Можна під офіс, спортивний зал, виробництво, сауну, склад, магазин. Металеві двері.
39 500 USD
30 000 USD 45 994 EUR
25 764 EUR 1 753 800 UAH
1 332 000 UAH Філіявул. Ак. Корольова, 33
Відповідальний спеціаліст
вищої категорії Володимир Нечипоренко
вищої категорії Володимир Нечипоренко
Показати
Додаткові послуги
Схожі об`єкти
Под любой вид деятельности
Чорноморськ/Миру просп. (Леніна вул.)
Цена23 000 USD
Общая26 м2
Цена23 000 USD
26 м2
Под любой вид деятельности
Одеська. обл./Одескій район/пгт. Таїрове/Будівельників вул.
Цена35 750 USD
Общая51.13 м2
Цена35 750 USD
51.13 м2
Складские помещения
Одеська. обл./Одескій район/Біляївка/Головатого Отамана вул...
Цена28 000 USD
Общая215 м2
Цена28 000 USD
215 м2