Продается Офис, 40-летия Победы ул., пгт. Таирово
Одесская обл. / пгт. Таирово / ул. 40-летия Победы
ID 2305
Общая
425.1 м2
Этажность
5
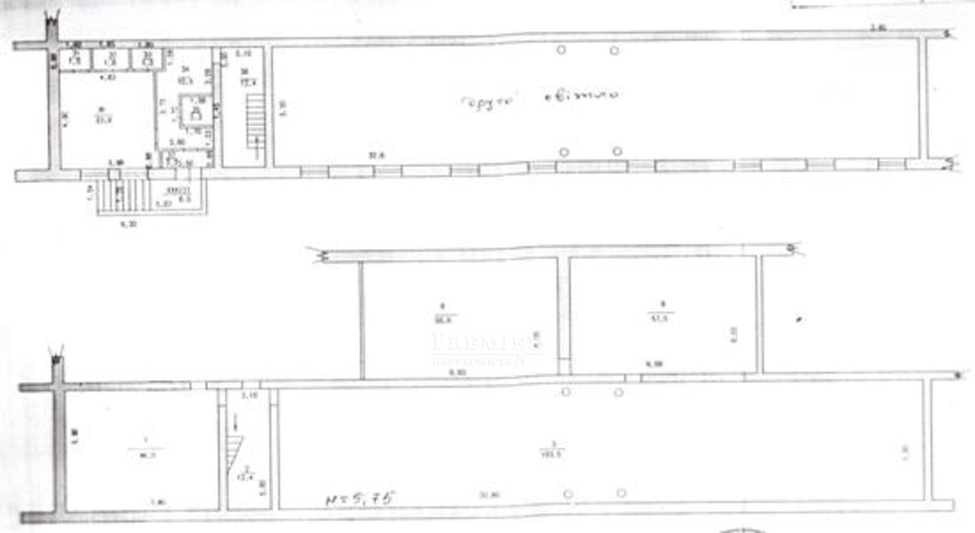
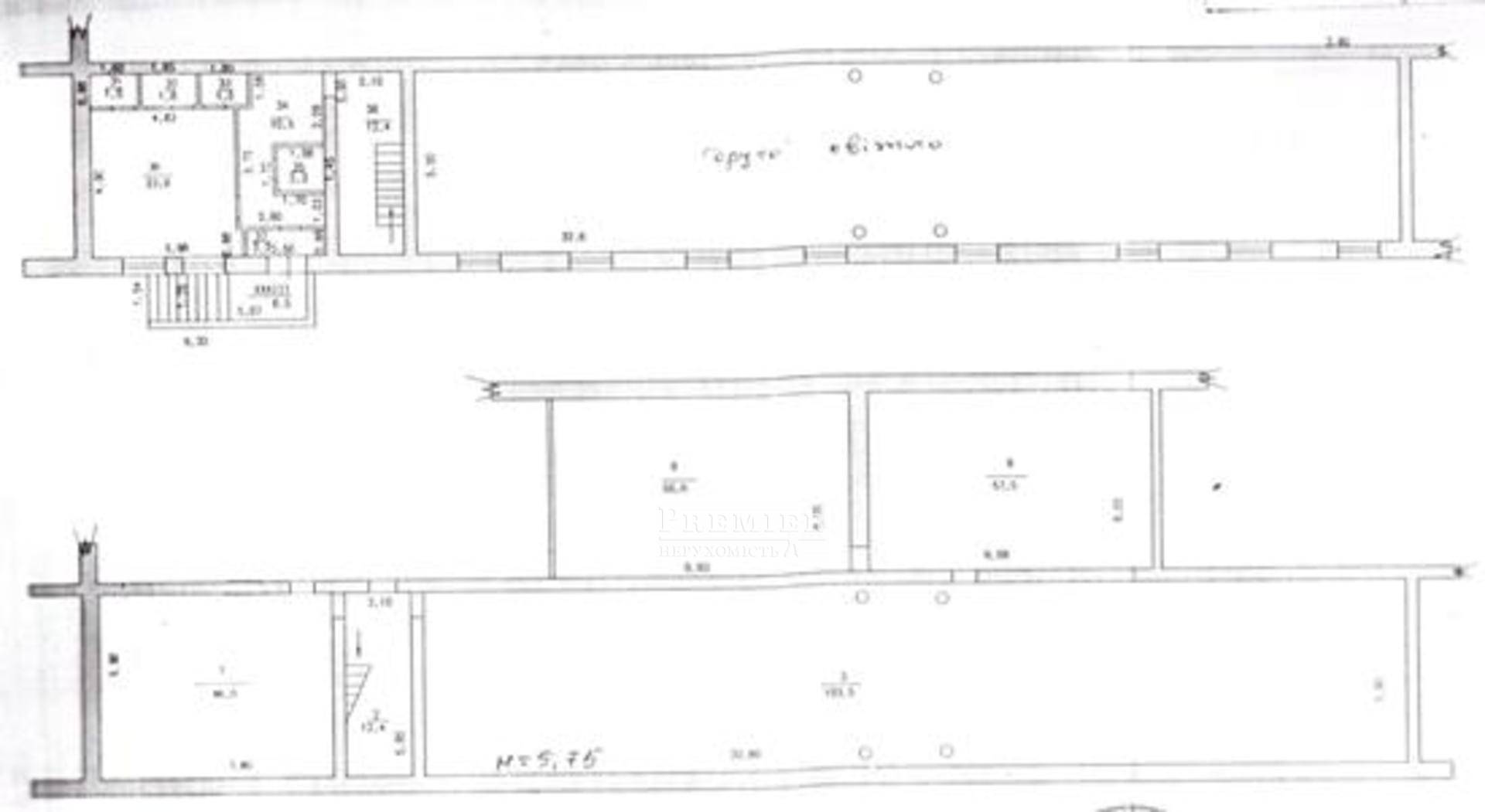
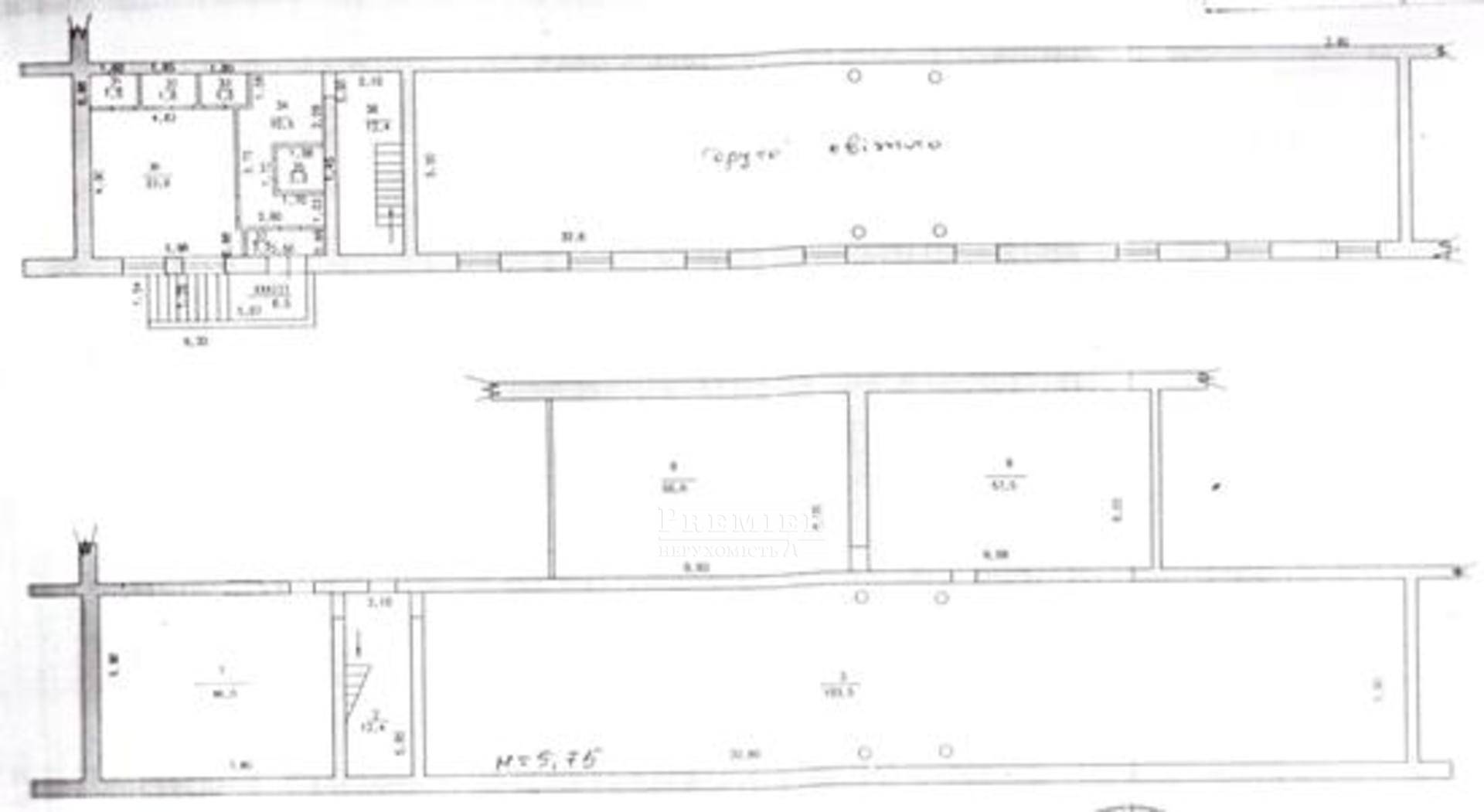
Продается в Одессе коммерческое предложение в пяти этажном кирпичном доме, цокольный этаж, общая площадь 425,10 м.кв., водопровод, высота потолков 3 м., можно под офис, спортивный зал, производство, сауну, склад, магазин. Металлическая дверь.
96 000 USD
50 000 USD 112 507 EUR
42 664 EUR 4 243 200 UAH
2 210 000 UAH Филиалул. Ак. Королева, 33
Ответственный специалист
высшей категории Владимир Нечипоренко
высшей категории Владимир Нечипоренко
Показать
Дополнительные услуги
Похожие объекты
Под любой вид деятельности
Одесcк. обл./Одесский район/пгт. Таирово/Строителей ул.
Цена39 100 USD
Общая55.91 м2
Цена39 100 USD
55.91 м2
Под любой вид деятельности
Одесcк. обл./Одесский район/пгт. Таирово/Строителей ул.
Цена35 750 USD
Общая51.13 м2
Цена35 750 USD
51.13 м2
Бар, кафе, ресторан
Одесcк. обл./Одесский район/Фонтанка/Чехова ул.
Цена65 000 USD
Общая30 м2
Цена65 000 USD
30 м2