Продається Офис, 40-рччя Перемоги вул., пгт. Таїрове
Одеська обл. / пгт. Таїрове / ул. 40-рччя Перемоги в
ID 2305
Загальна
425.1 м2
Поверховість
5
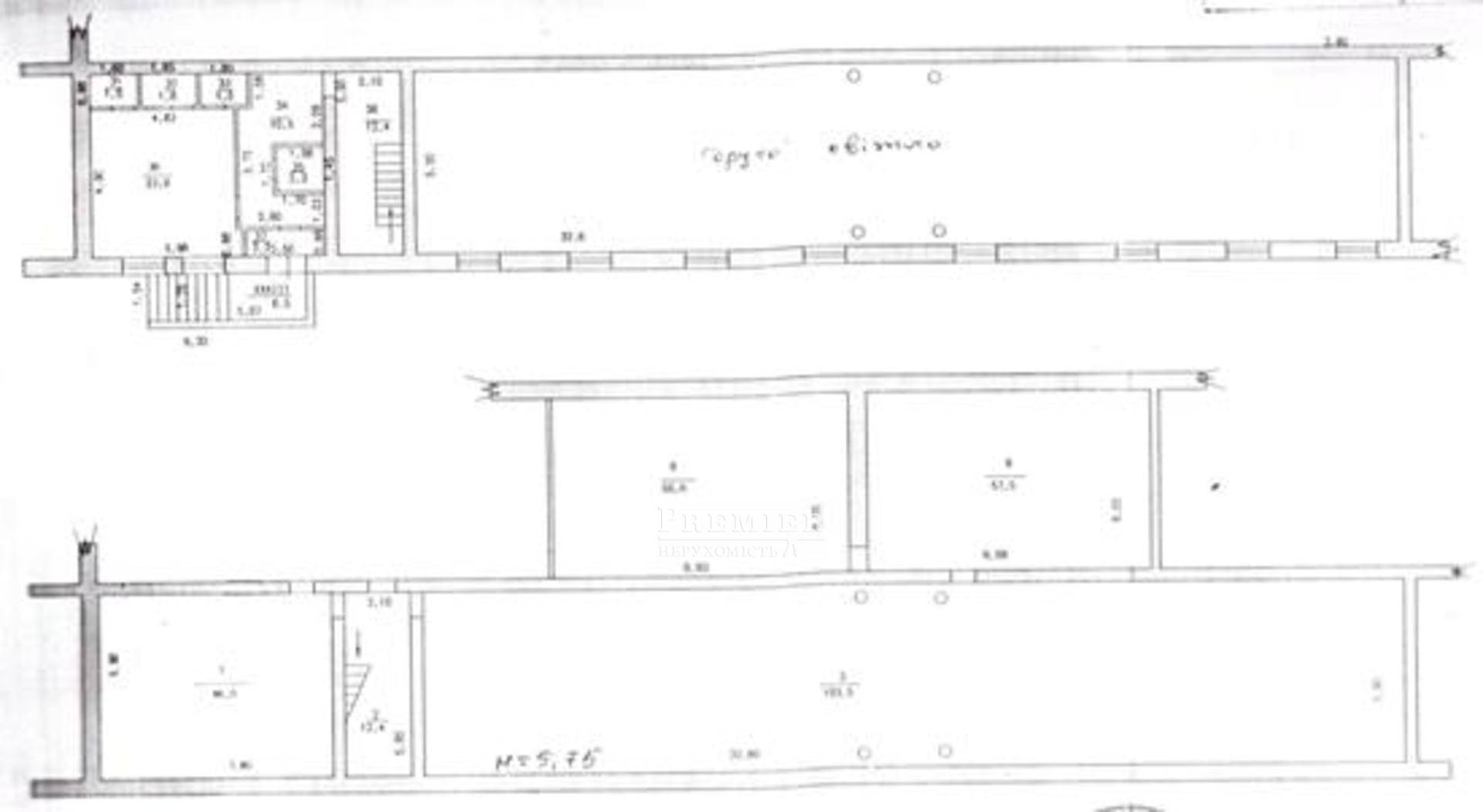
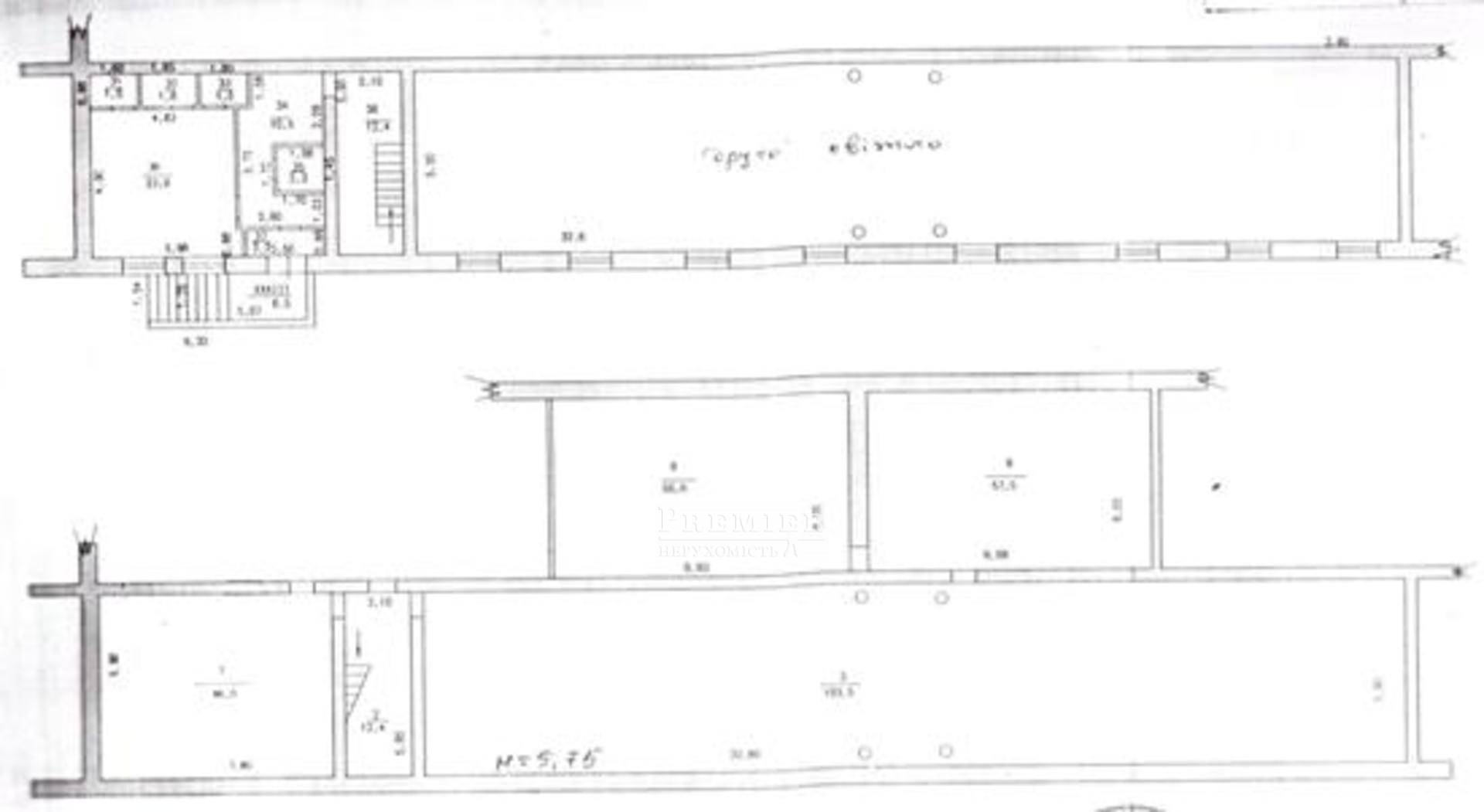
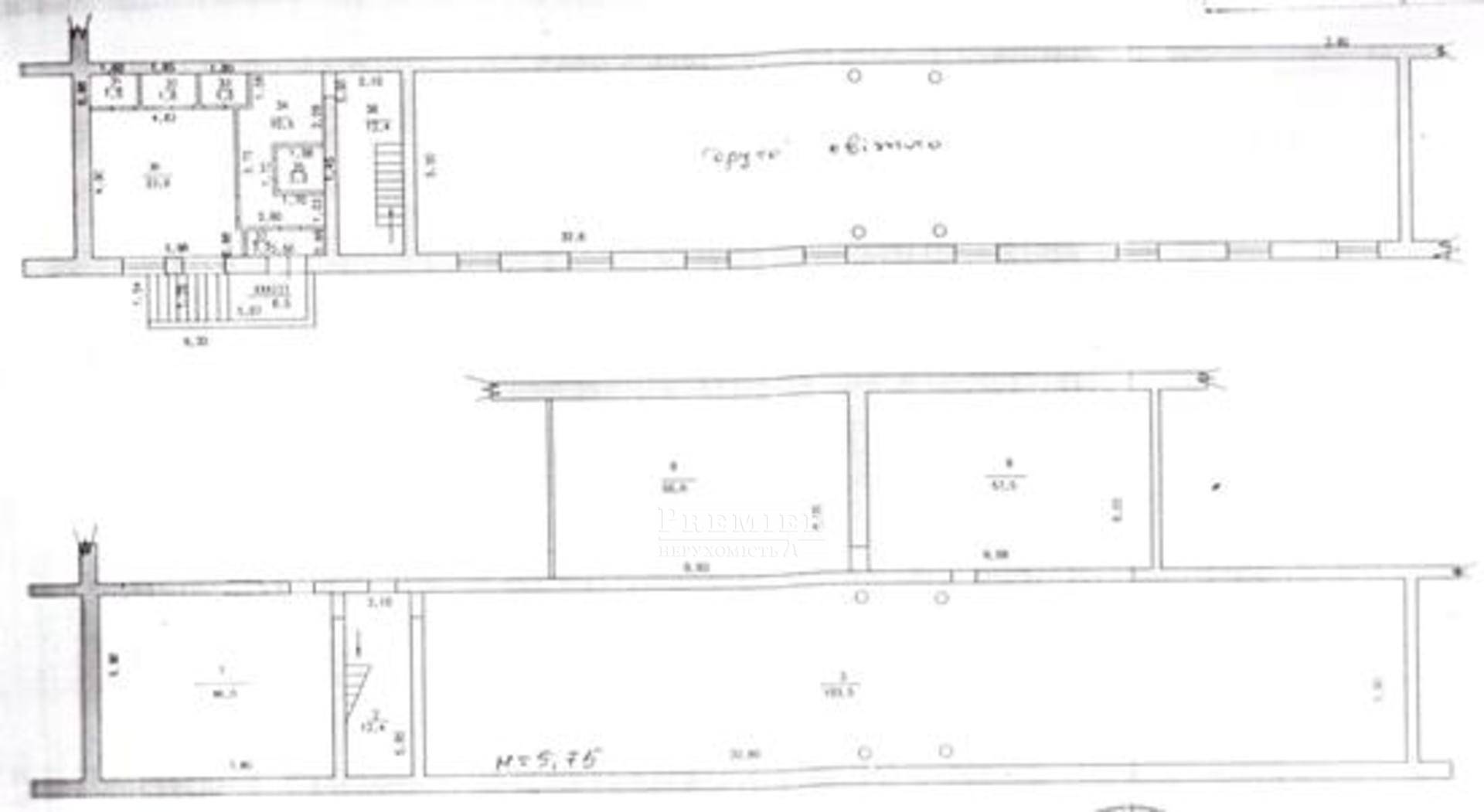
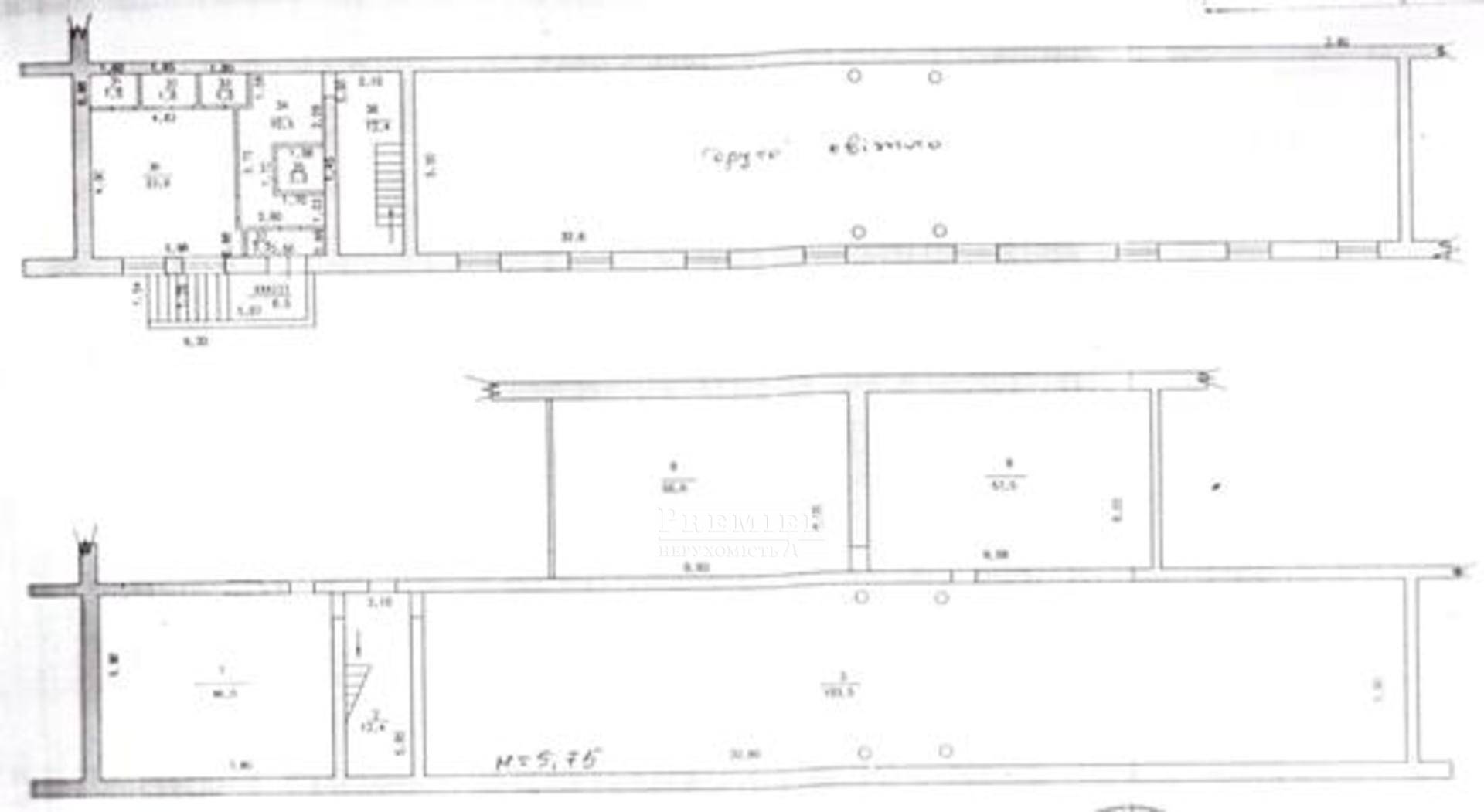
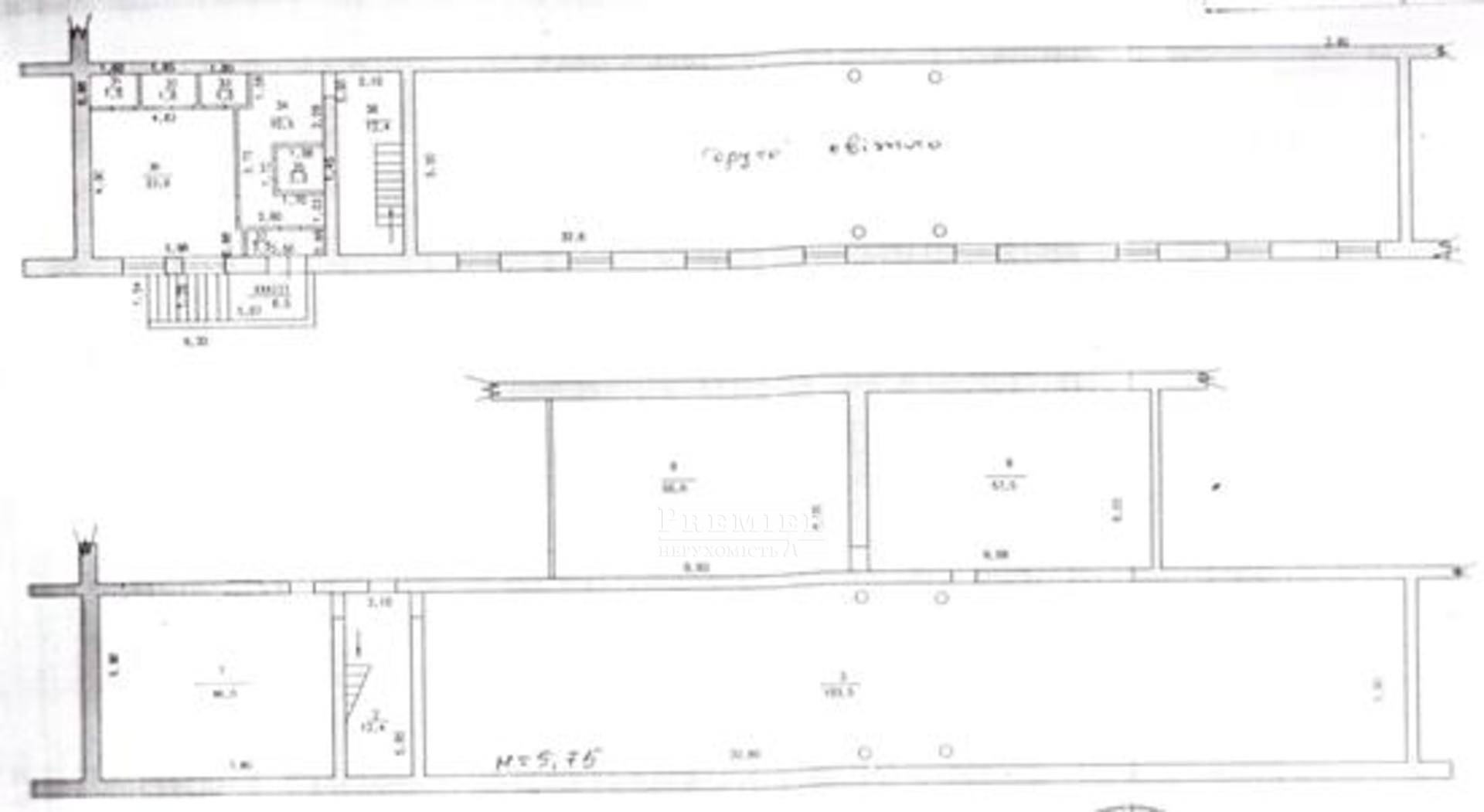
Продається в Одесі комерційну пропозицію в п'яти поверховому цегляному будинку, цокольний поверх, загальна площа 425,10 м.кв., водопровід, висота стель 3 м., Можна під офіс, спортивний зал, виробництво, сауну, склад, магазин. Металеві двері.
96 000 USD
50 000 USD 111 784 EUR
42 940 EUR 4 262 400 UAH
2 220 000 UAH Філіявул. Ак. Корольова, 33
Відповідальний спеціаліст
вищої категорії Володимир Нечипоренко
вищої категорії Володимир Нечипоренко
Показати
Додаткові послуги
Схожі об`єкти
Под любой вид деятельности
Одеська. обл./Одескій район/пгт. Таїрове/Будівельників вул.
Цена39 100 USD
Общая55.91 м2
Цена39 100 USD
55.91 м2
Под любой вид деятельности
Одеська. обл./Одескій район/пгт. Таїрове/Будівельників вул.
Цена35 750 USD
Общая51.13 м2
Цена35 750 USD
51.13 м2
Бар, кафе, ресторан
Одеська. обл./Одескій район/Фонтанка/Чехова вул.
Цена65 000 USD
Общая30 м2
Цена65 000 USD
30 м2