Продается 1-комн. квартира в новострое, Солнечная ул., г.Одесса
Одесса, Приморском, ул. Солнечная
ID 72804
Комнат
1
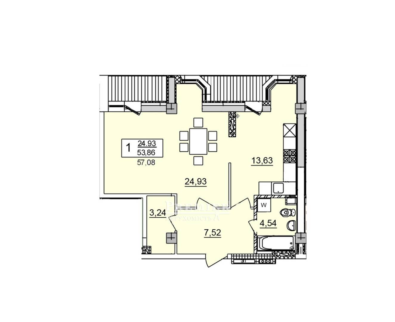
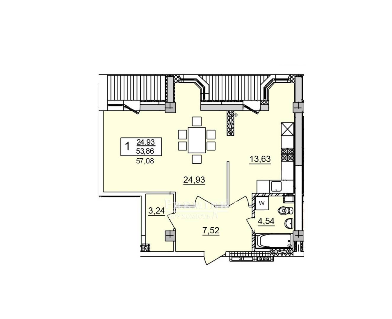
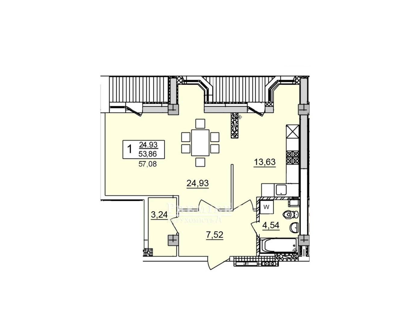
Общая
57 м2
Жилая
25 м2
Кухня
13.7 м2
Этаж
5
Этажность
16
Продам 1-но комнатную квартиру в новом доме. Приморский район, ул. Солнечная. Квартира расположена на 5 этаже 16 этажного дома, общей площадью 57 м.кв. большая комната 25 м.кв., просторная кухня 14 м.кв. и великолепный вид из окон. Звоните!
80 000 USD
68 571 EUR
3 528 000 UAH
Филиалул. Преображенская, 49/51
Ответственный специалист
высшей категории Оксана Курганская
высшей категории Оксана Курганская
Показать
Дополнительные услуги
Доходность объекта от аренды*
от17474грн/месяц
*Средняя цена при сдаче объекта в аренду в Приморском районе
Изменение цен на 1-комн. квартира в новострое в Приморском районе
Похожие объекты
1-комн. квартира в новострое
г.Одесса/Приморский/Краснова ул.(ЖК 61 Жемчужина)
Цена72 000 USD
Общая42 м2
Цена72 000 USD
42 м2
Однокомнатная квартира
г.Одесса/Приморский/Французский бульв.
Цена65 000 USD
Общая30 м2
Цена65 000 USD
30 м2
Однокомнатная квартира
г.Одесса/Приморский/Довженко ул.
Цена65 000 USD
Общая47.8 м2
Цена65 000 USD
47.8 м2