Продается Складские помещения, Аэропортовская ул., г.Одесса
Одесса, Хаджибейском, ул. Аэропортовская
ID 155038
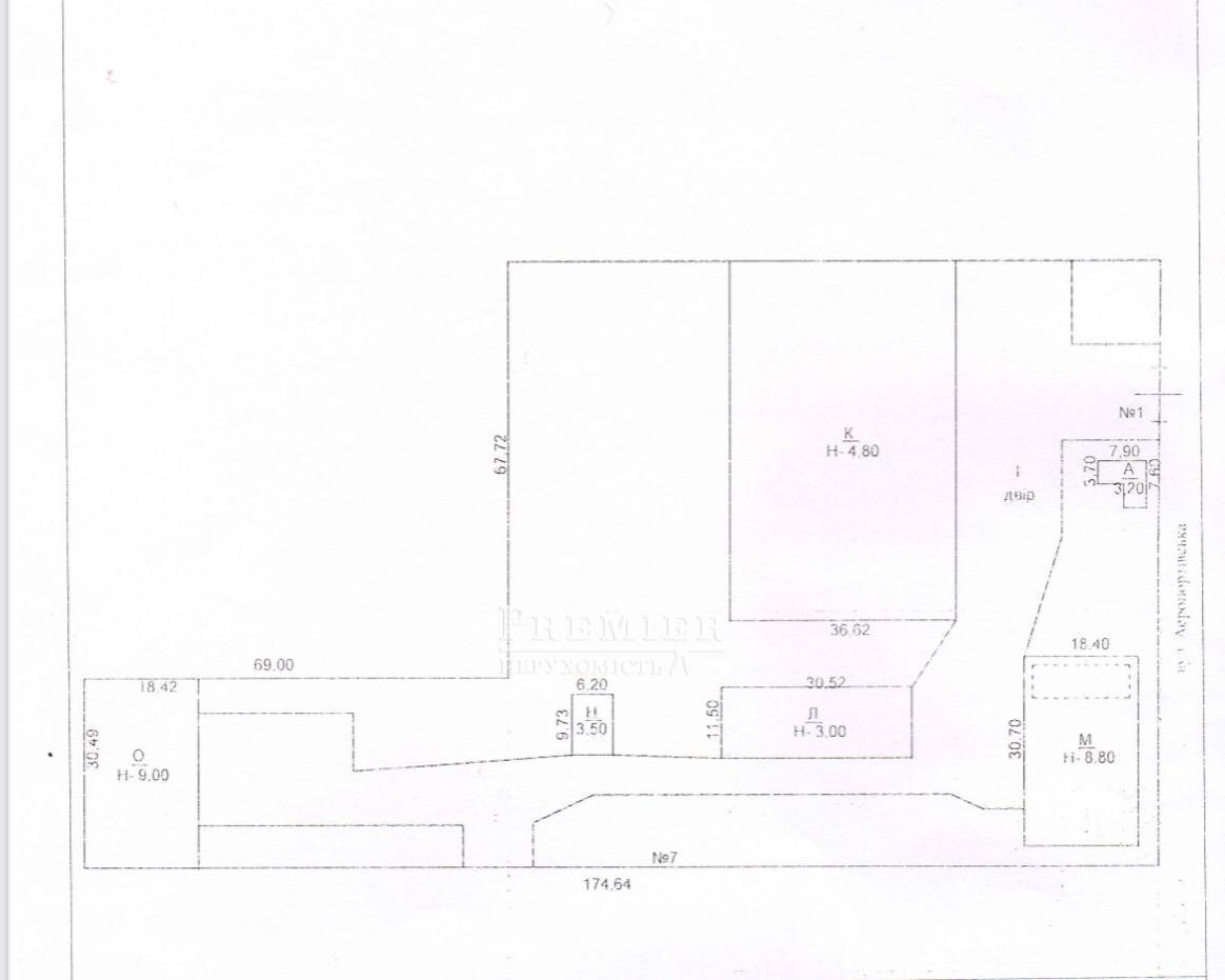
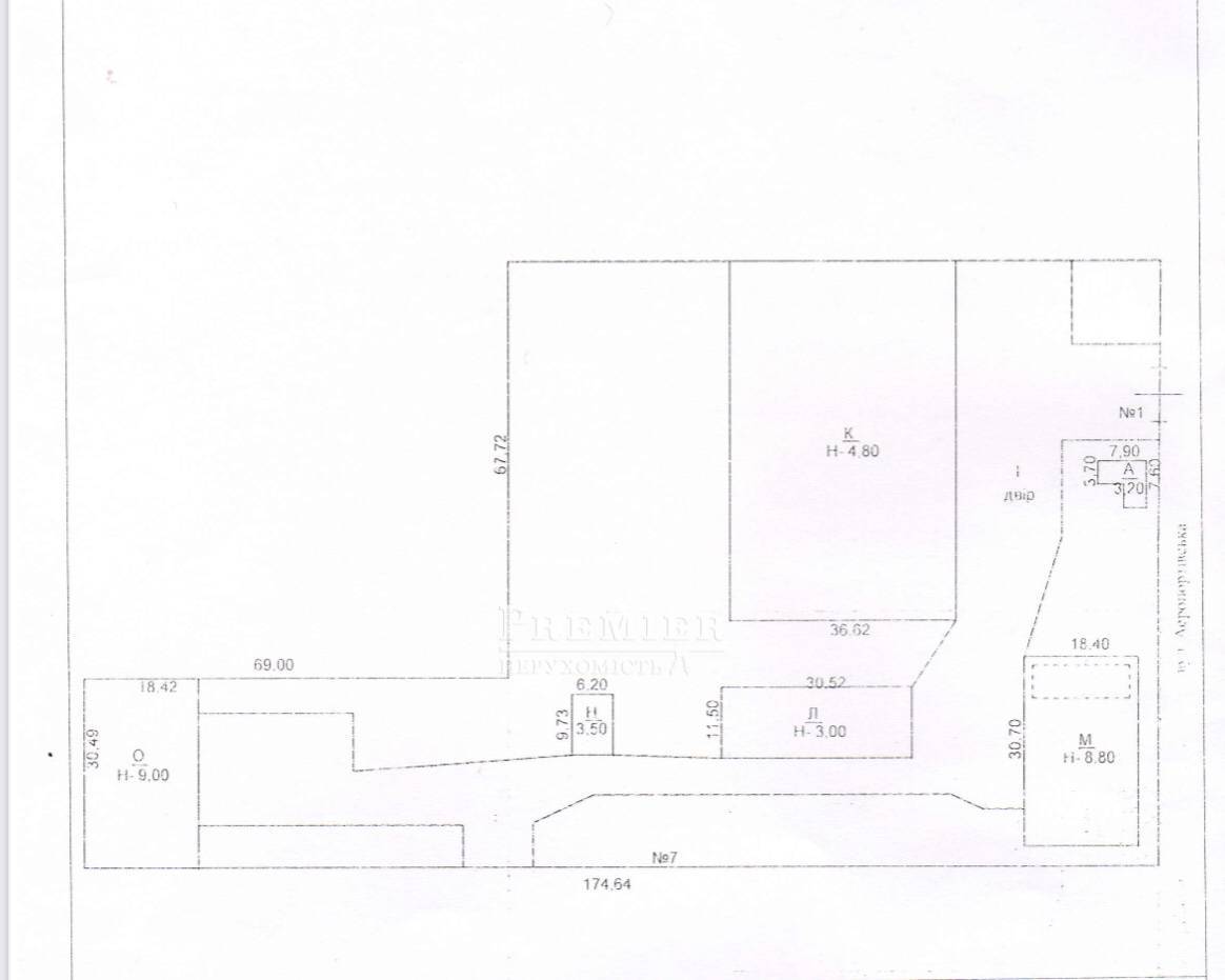
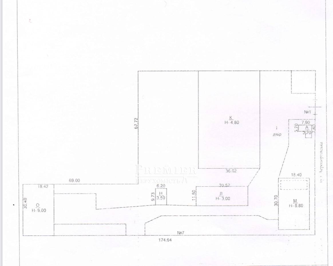
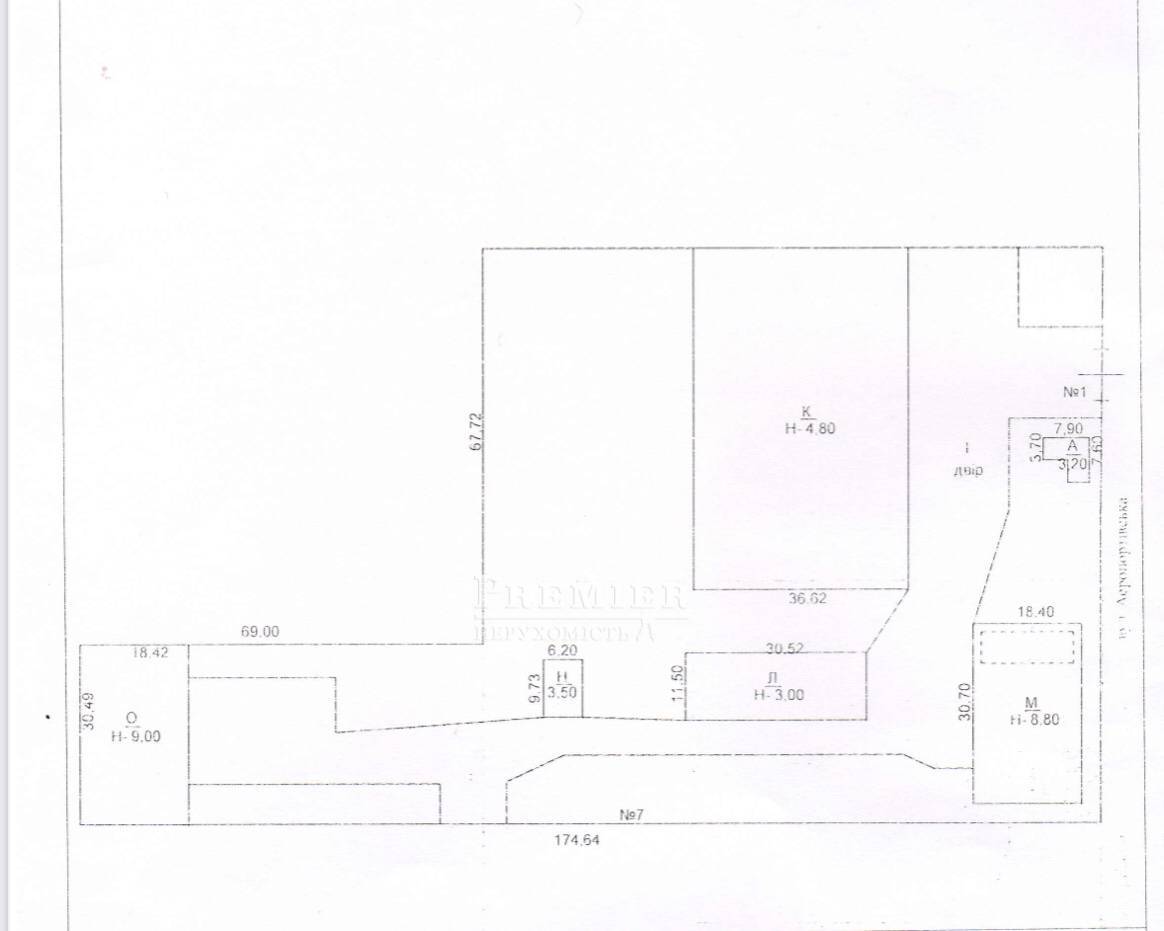
Общая
3076 м2
Жилая
3076 м2
Кухня
25 м2
Этаж
1
Этажность
1
Продам складские помещения общей площадью 3076 кв м. В помещениях есть электричество мощность 60 кВт, городское водоснабжение. Помещения сухие. Въезд на территорию с улицы Аэропортовской. Территория охраняемая.
400 000 USD
346 148 EUR
16 892 000 UAH
ФилиалАртура Савельева ул.
Ответственный специалист Лидия Корчевнюк
Показать
Дополнительные услуги
Похожие объекты
Автозаправка
г.Одесса/Хаджибейский/Люстдорфская дорога
Цена280 000 USD
Общая375 м2
Цена280 000 USD
375 м2
Производственные помещения
г.Одесса/Хаджибейский/Аэропортовская ул.
Цена280 000 USD
Общая1073 м2
Цена280 000 USD
1073 м2
Бар, кафе, ресторан
г.Одесса/Хаджибейский/Алексея Вадатурского ул. (Малиновского Маршала ул.)
Цена400 000 USD
Общая407 м2
Цена400 000 USD
407 м2
Под любой вид деятельности
г.Одесса/Хаджибейский/Липы Ивана и Юрия ул. (Гайдара)
Цена490 000 USD
Общая750 м2
Цена490 000 USD
750 м2