Продається Складские помещения, Аеропортовська вул., м.Одеса
Одеса, Хаджибейськом, ул. Аеропортовська в
ID 155038
Загальна
3076 м2
Житлова
3076 м2
Кухня
25 м2
Поверх
1
Поверховість
1
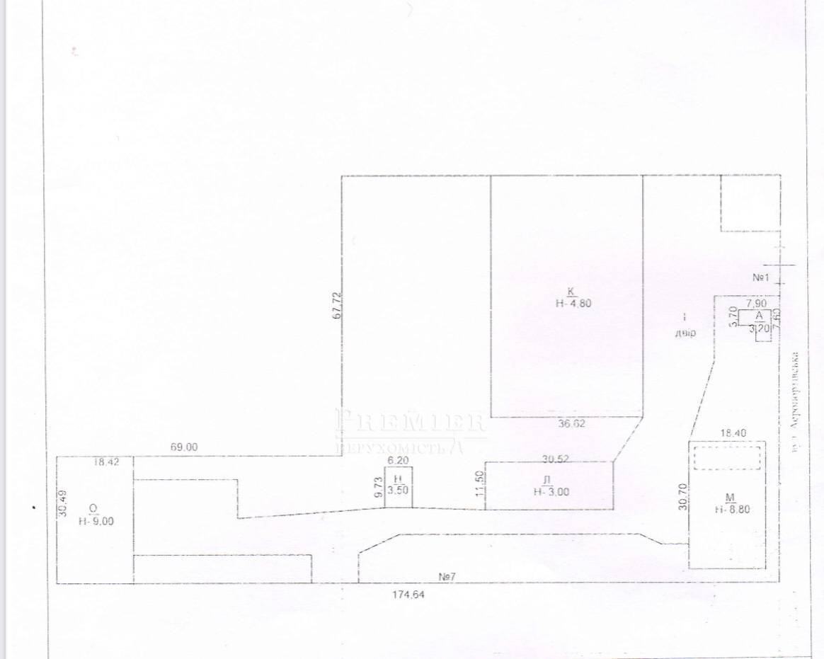
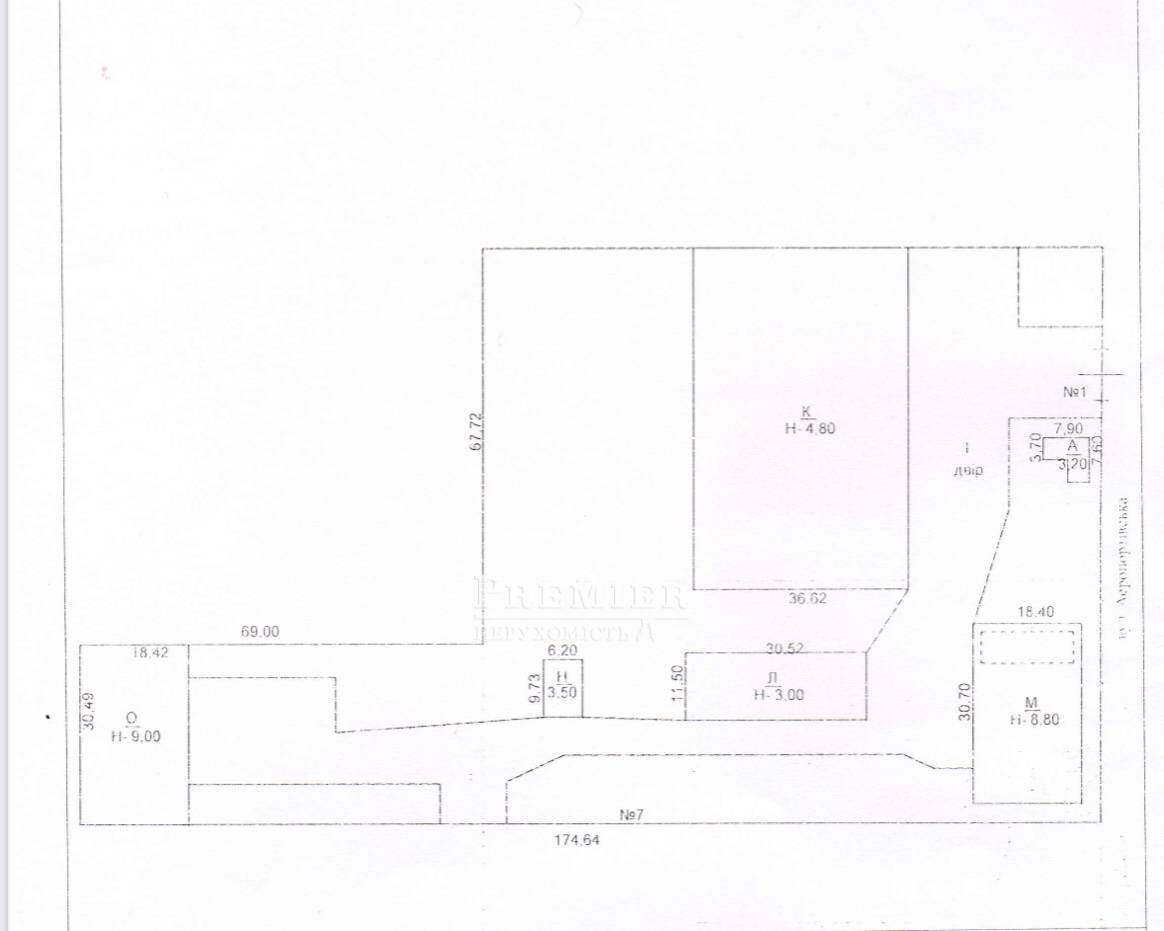
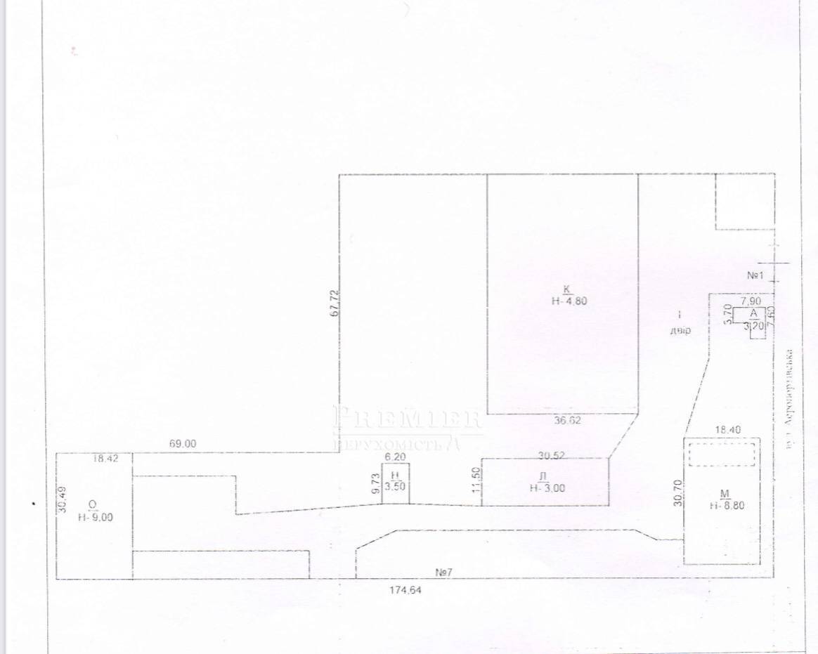
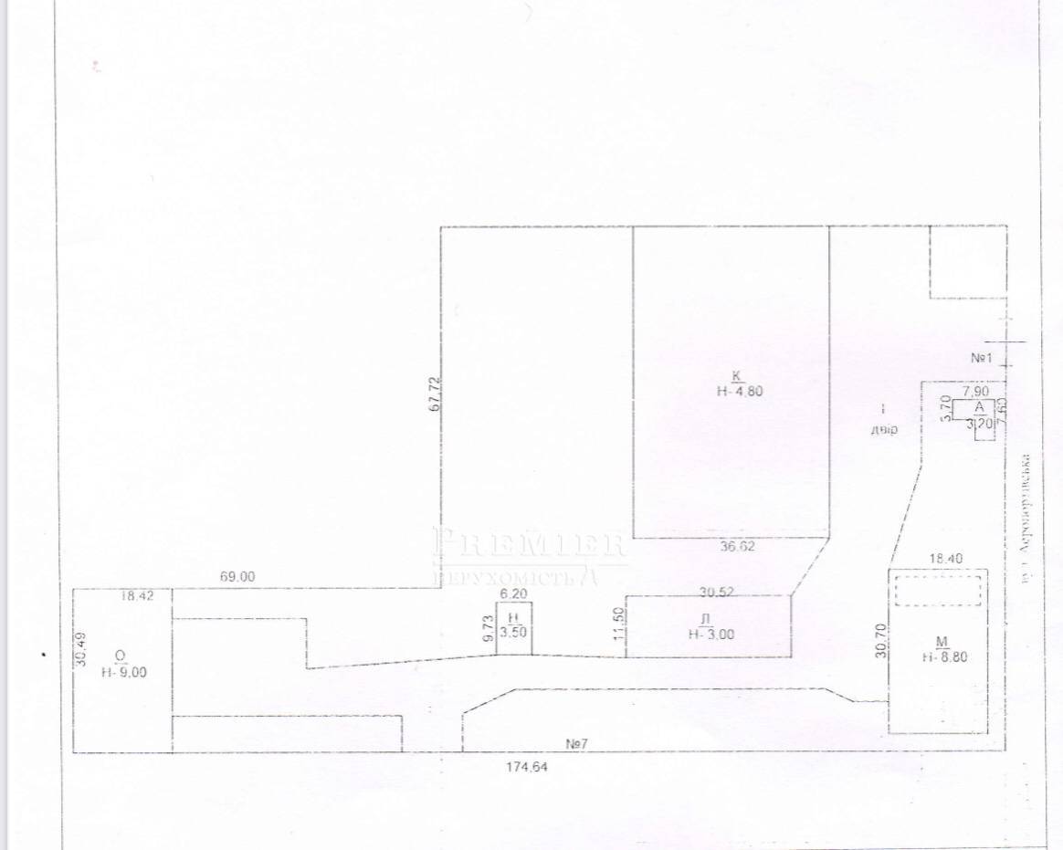
Продам складські приміщення загальною площею 3076 кв м. У приміщеннях є електрика потужність 60 кВт, міське водопостачання. Приміщення сухі. В'їзд на територію з вулиці Аеропортівський. Територія охороняється.
400 000 USD
344 444 EUR
16 740 000 UAH
ФіліяАртура Савельєва вул.
Відповідальний спеціаліст Лідія Корчевнюк
Показати
Додаткові послуги
Схожі об`єкти
Автозаправка
м.Одеса/Хаджибейський/Люстдорфська дорога
Цена280 000 USD
Общая375 м2
Цена280 000 USD
375 м2
Производственные помещения
м.Одеса/Хаджибейський/Аеропортовська вул.
Цена280 000 USD
Общая1073 м2
Цена280 000 USD
1073 м2
Бар, кафе, ресторан
м.Одеса/Хаджибейський/Олексія Вадатурського вул. (Малиновського Маршала вул.)
Цена400 000 USD
Общая407 м2
Цена400 000 USD
407 м2
Под любой вид деятельности
м.Одеса/Хаджибейський/Липи Івана і Юрія вул. (Гайдара)
Цена490 000 USD
Общая750 м2
Цена490 000 USD
750 м2