Продается Под любой вид деятельности, Обсерваторный пер. , г.Одесса
Одесса, , пер. Обсерваторный
ID 156755
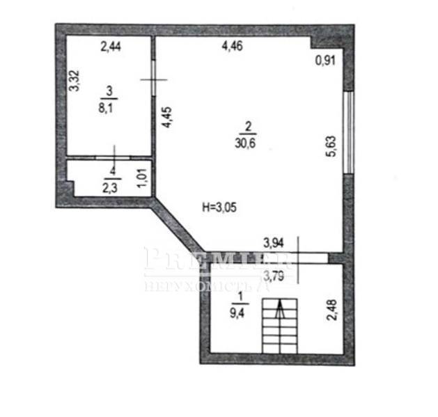
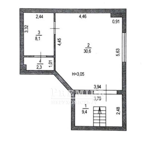
Комнат
1
Общая
50.4 м2
Жилая
30.6 м2
Кухня
8.1 м2
Этаж
1
Этажность
9
В продаже помещение в центре Одессы с ремонтом. Цокольный этаж. Общая площадь 50.4 кв м, 1 комната 30.кв м, подсобное помещение-8.1. Подходит под любой вид деятельности ( раньше был продовольственный магазин).
45 000 USD
38 750 EUR
1 883 250 UAH
Филиалул. Преображенская, 49/51
Ответственный специалист
высшей категории Светлана Риво
высшей категории Светлана Риво
Показать
Дополнительные услуги