Продається Под любой вид деятельности, Обсерваторний пров., м.Одеса
Одеса, , Обсерваторний пров.
ID 156755
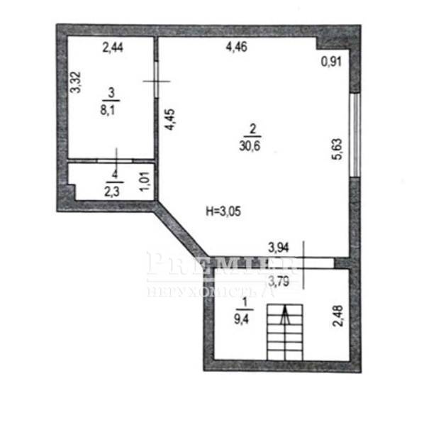
Кімнат
1
Загальна
50.4 м2
Житлова
30.6 м2
Кухня
8.1 м2
Поверх
1
Поверховість
9
У продажу приміщення в центрі Одеси з ремонтом. Цокольний поверх. Загальна площа 50.4 кв м, 1 кімната 30.кв м, підсобне приміщення-8.1. Підходить під будь-який вид діяльності (раніше був продовольчий магазин).
45 000 USD
38 750 EUR
1 883 250 UAH
Філіявул. Преображенська, 49/51
Відповідальний спеціаліст
вищої категорії Світлана Ріво
вищої категорії Світлана Ріво
Показати
Додаткові послуги