Продается Аппарт-комплекс ”Итака”, ул.Чубаевская 1 (7-я ст. Фонтанской дор.), г.Одесса






Аппарт- комплекс ”Итака”
По мере того, как популярность района Большого Фонтана в Одессе продолжает возрастать с каждым годом, естественно, этим активно пользуются строительные компании. Среди разнообразия жилых комплексов существенно выделяется новый аппарт-комплекс «Итака», предлагающий 144 комфортабельные квартиры с современными планировками. Сам район отличается развитой инфраструктурой, включая супермаркеты, школы, медицинские учреждения, салоны красоты, развлекательные заведения и т.д. Кроме того, тут проходит удобная транспортная развязка.
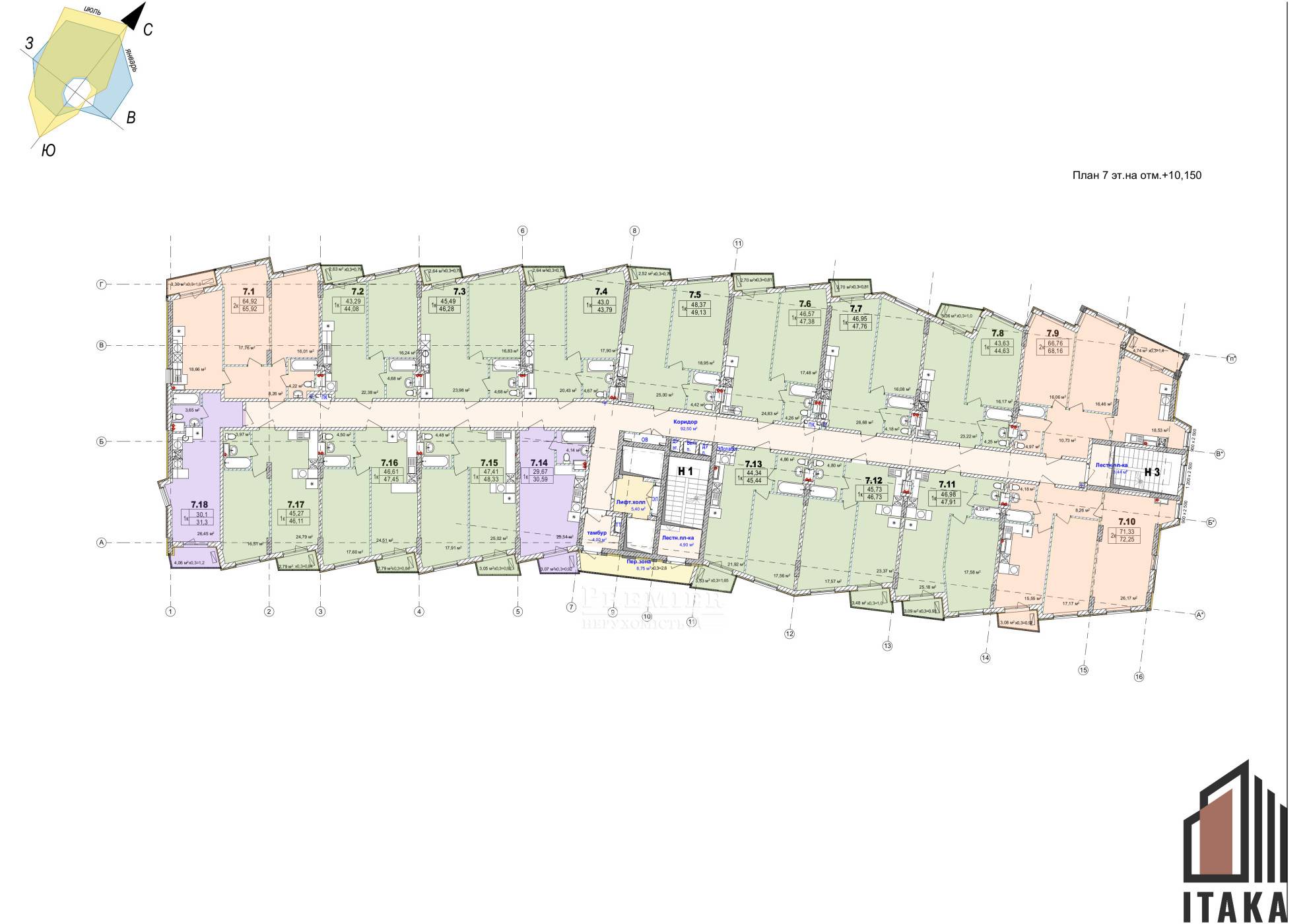
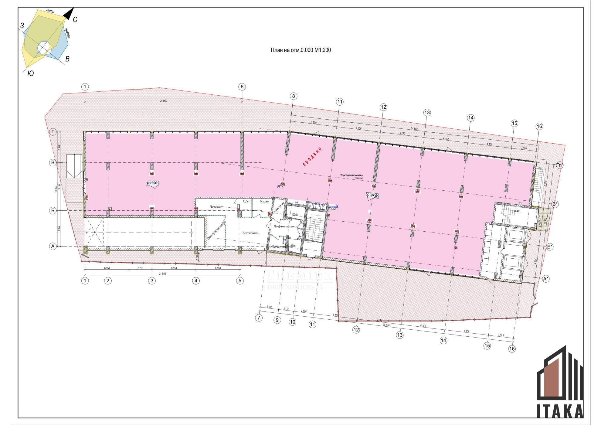
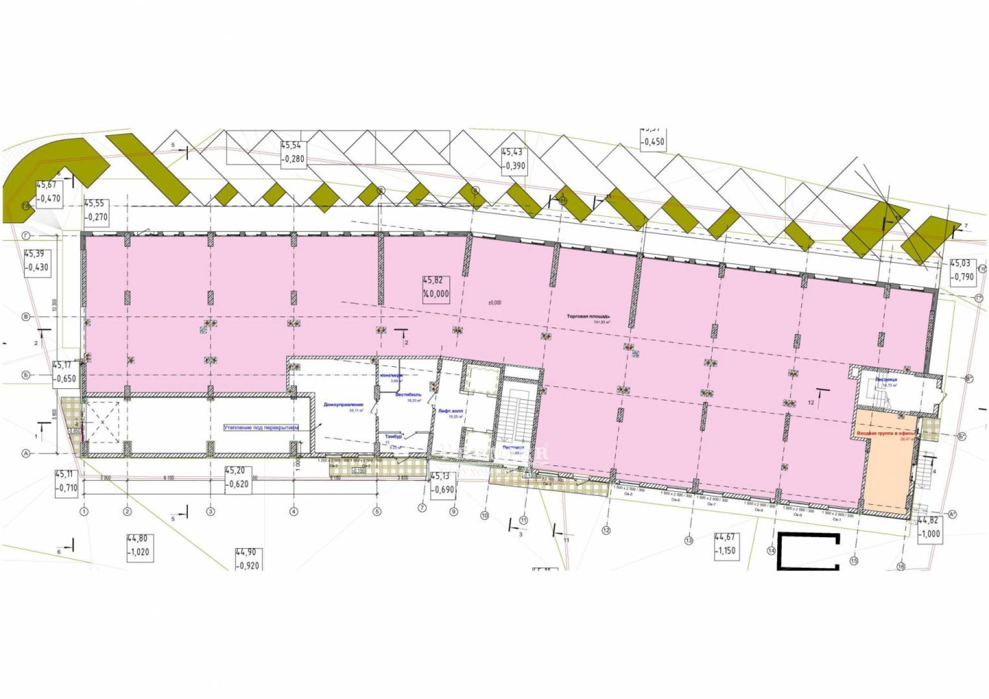
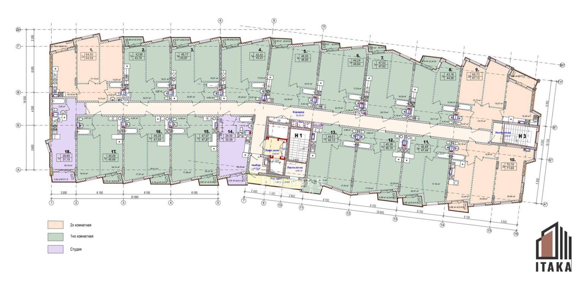
Односекционный комплекс насчитывает 7 этажей. Монолитно-каркасное здание основывается на прочном свайном фундаменте, а стены возводятся из газобетона. В качестве утеплителя используется экологически чистый материал – минеральная вата. Для создания роскошного и оригинального фасада производится декоративная облицовка внешних панелей. Для быстрого и удобного передвижения между этажами предусмотрены бесшумные лифты фирмы «Отис». Также оборудуется вместительный одноуровневый автомобильный паркинг.
Квартиры в комплексе характеризуются свободными планировками, рациональными площадями и многочисленными удобствами. Высота потолков составляет 3,1 метров. Тепло в квартиры поступает от газовой котельной, расположенной на крыше, при помощи отопительных приборов с терморегулирующим оборудованием.
Придомовая территория огораживается и благоустраивается. Для ее украшения используются зеленые насаждение и цветочные клумбы. Также выделяются места для отдыха и дорожки для прогулок. Территория покрывается специальной тротуарной плиткой. По периметру действует круглосуточная охрана с видеонаблюдением. В комплексе функционирует современная противопожарная система, включающая пожарные гидранты, дымовыведение, сигнализацию и другие атрибуты.
Дата окончания строительства: 1 квартал 2024г.
Квартиры от хозяина в этом ЖК
г.Одесса/Приморский/Чубаевская ул.
г.Одесса/Приморский/Чубаевская ул.
г.Одесса/Приморский/Чубаевская ул.
Популярные новострои в этом районе
г.Одесса/Приморский/Французский бульвар