Продається ЖК "Ітака", ул.Чубаевская 1 (7-я ст. Фонтанській дор.), м.Одеса

Одеса, , ул. Чубаевская 1 (7-я ст. Фонтанській дор.)
Розстрочка на 6 місяців.



Характеристики ЖК ”Итака”
Початок будівництва:
Завершення будівництва:
Дом сдан
Конструктив будинку
Поверховість:
12
Конструктив:
Монолитно-каркасный
Утеплення:
Утепление минеральной ватой, штукатурка с декоративными элементами и окраска атмосфероустойчивой фас
Міжквартирні:
Газобетон
Стан житла
Вікна:
Алюминиевый профиль
Висота приміщення:
3,1 м
Опалення:
Автономное
Інженерні системи
Ліфт:
ОТИС
Безпека:
Консьерж, охрана, видеонаблюдение
Паркінг:
1 уровень (27 мест)

ЖК "Ітака"

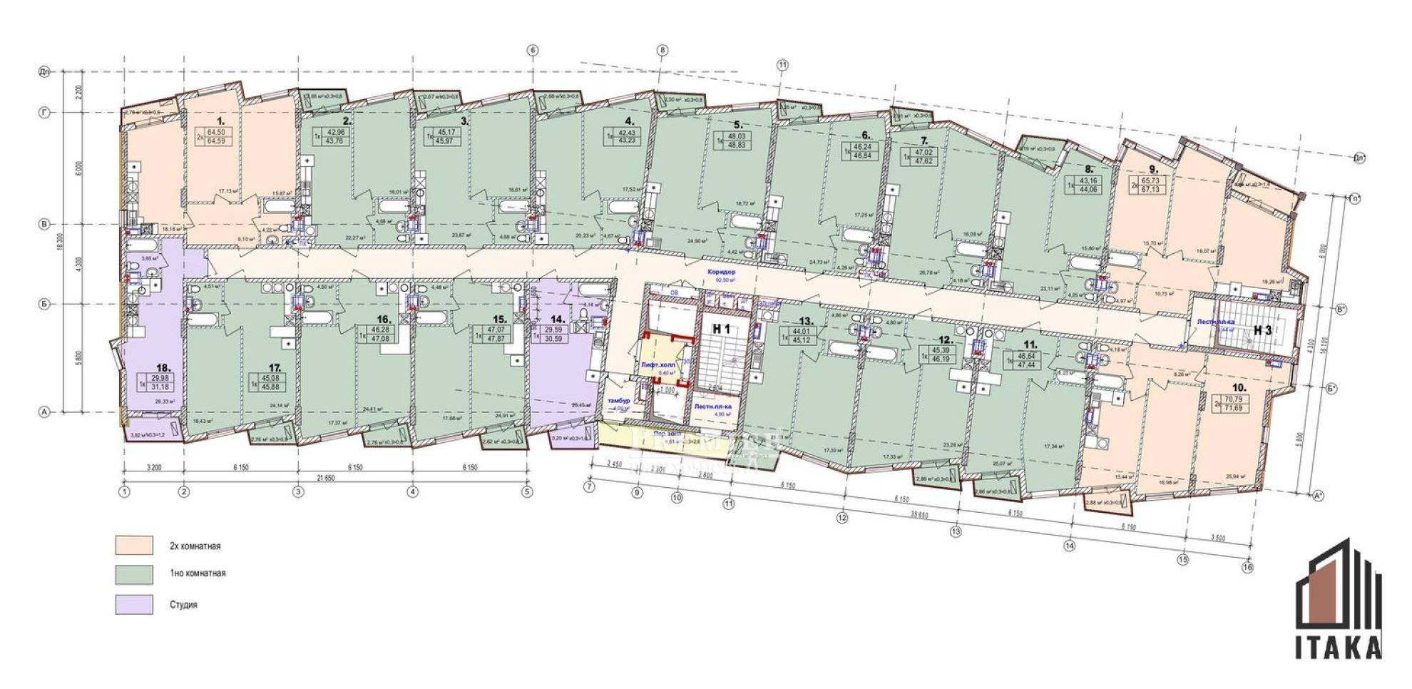
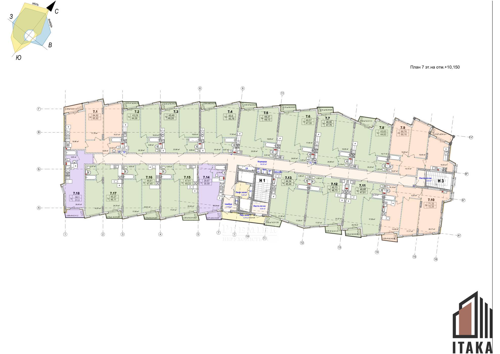
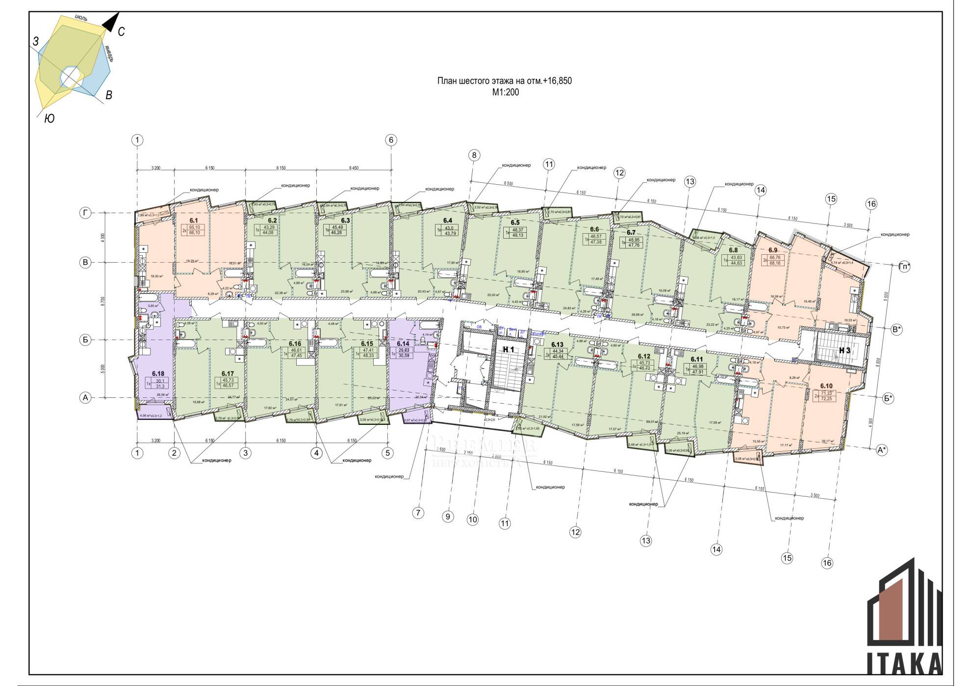
У міру того, як популярність району Великого Фонтану в Одесі продовжує зростати з кожним роком, природно, цим активно користуються будівельні компанії. Серед розмаїття житлових комплексів істотно виділяється новий житловий комплекс «Ітака», що пропонує 144 комфортабельні квартири з сучасним плануванням. Сам район відрізняється розвиненою інфраструктурою, включаючи супермаркети, школи, медичні установи, салони краси, розважальні заклади і т.д. Крім того, тут проходить зручна транспортна розв'язка.

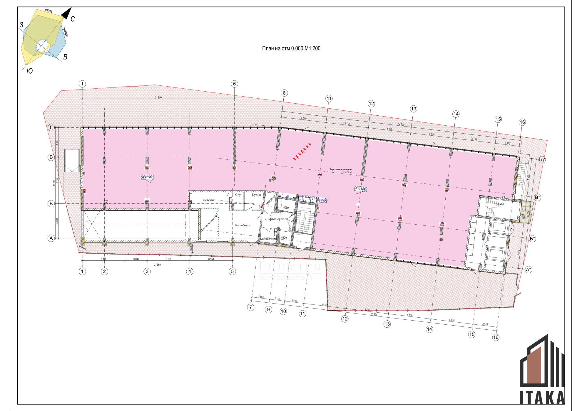
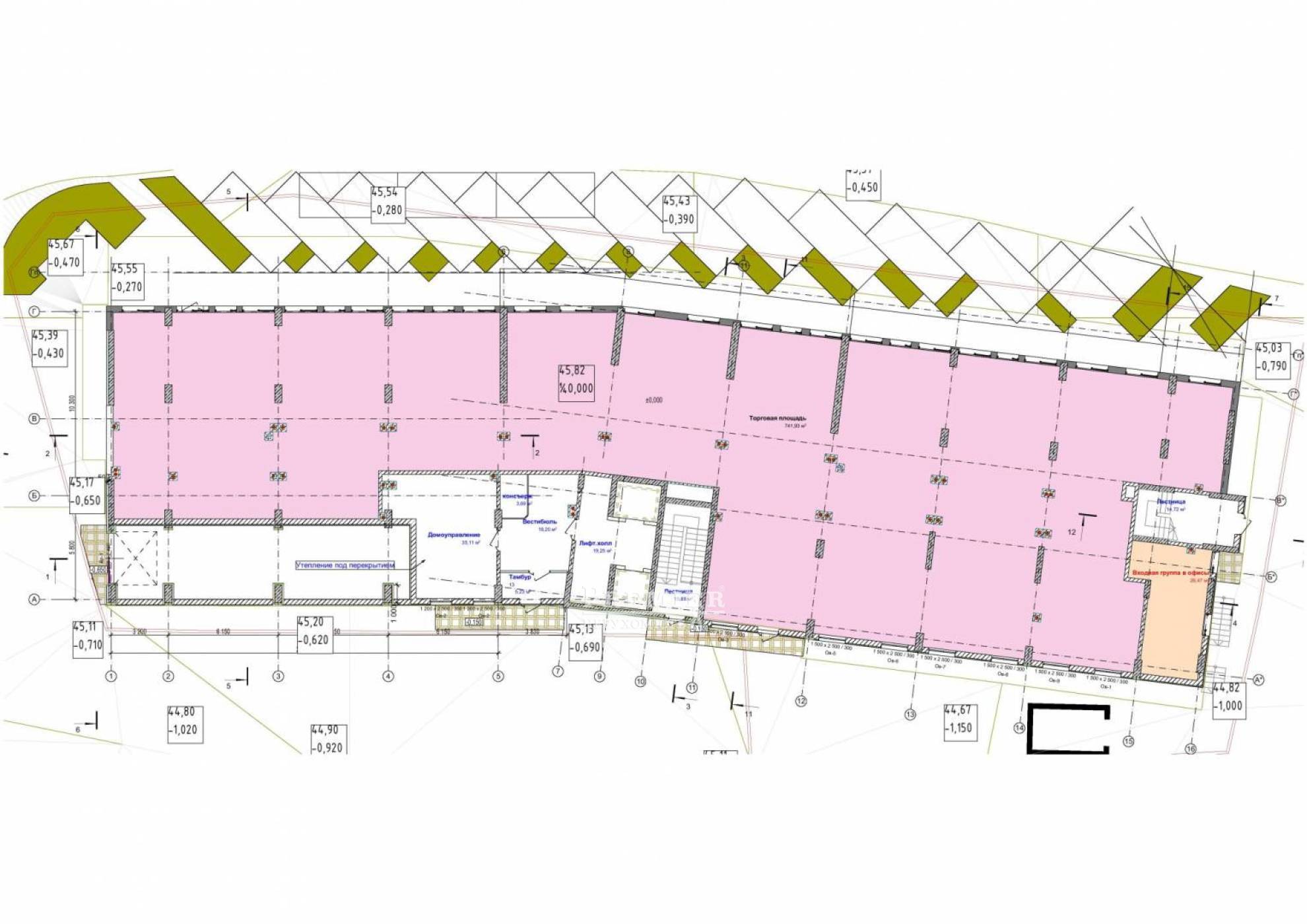
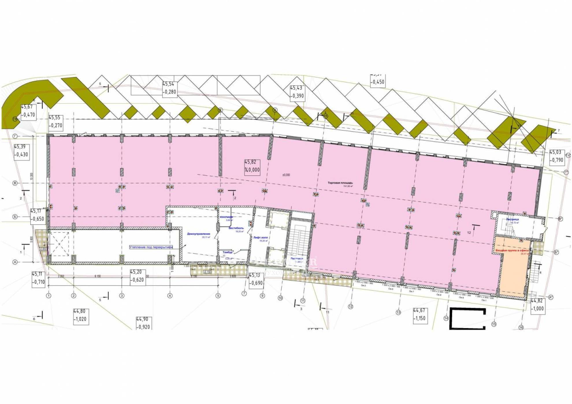
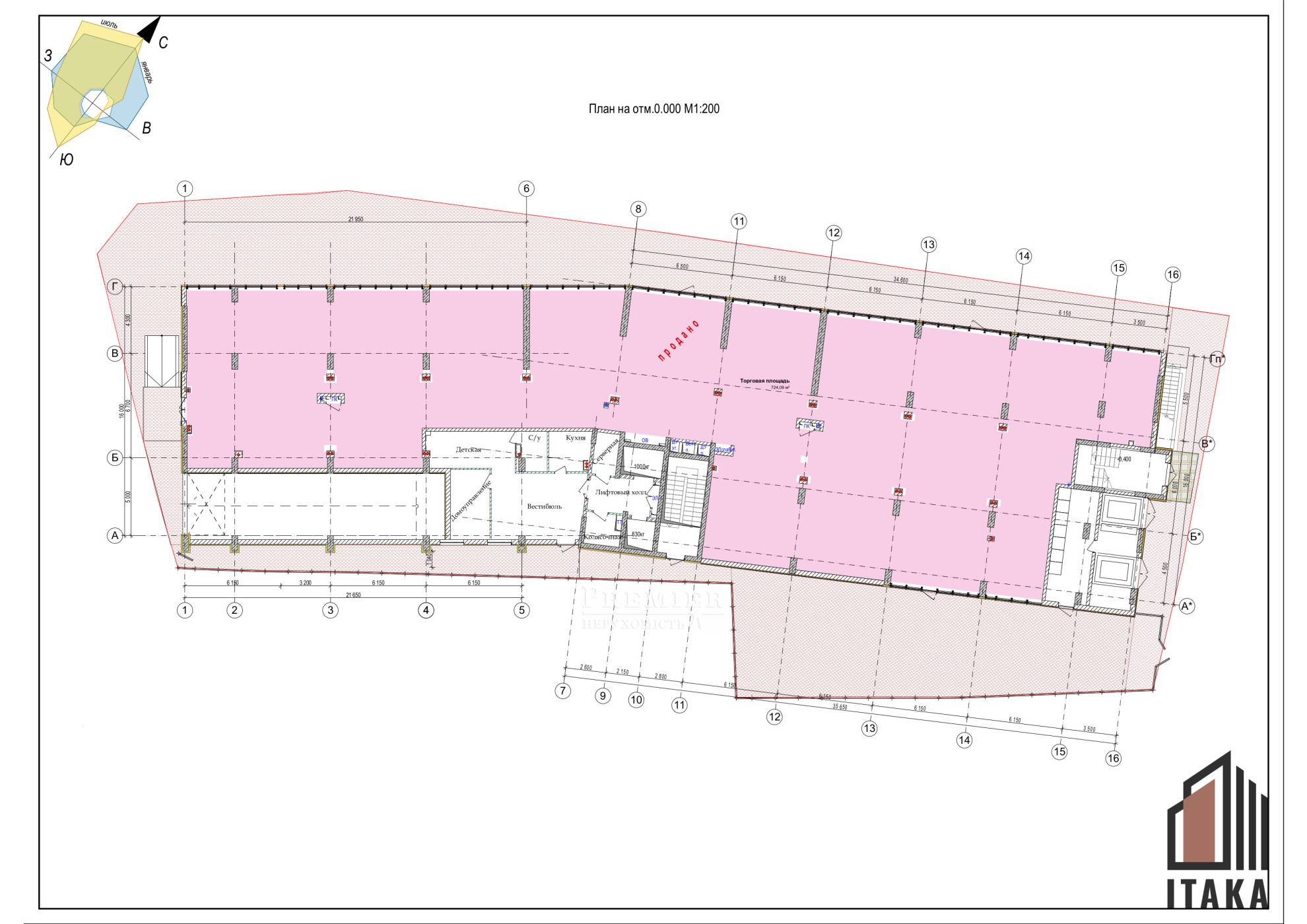
Односекційний комплекс налічує 10 поверхів. Монолітно-каркасний будинок грунтується на міцному пальовій фундаменті, а стіни зводяться з газобетону. Як утеплювач використовується екологічно чистий матеріал - мінеральна вата. Для створення розкішного і оригінального фасаду проводиться декоративне облицювання зовнішніх панелей. Для швидкого і зручного пересування між поверхами передбачені безшумні ліфти фірми «Отіс». Також обладнується місткий однорівневий автомобільний паркінг.

Квартири в комплексі характеризуються вільними плануваннями, раціональними площами і численними зручностями. Висота стель становить 3,1 метрів. Тепло в квартири надходить від газової котельні, розташованої на даху, за допомогою опалювальних приладів з терморегулирующим обладнанням.

Прибудинкова територія огороджується і упорядковується. Для її прикраси використовуються зелені насадження і квіткові клумби. Також виділяються місця для відпочинку та доріжки для прогулянок. Територія покривається спеціальною тротуарною плиткою. По периметру діє цілодобова охорона з відеоспостереженням. У комплексі функціонує сучасна протипожежна система, що включає пожежні гідранти, димовиведеніе, сигналізацію та інші атрибути.

Дата закінчення будівництва: 1  квартал 2024г.

от 59 603
ГРН. / кв.м
USD
UAH
Компанія Прем'єр є офіційним партнером будівельної компанії. Об'єкти продаються без будь-якої комісії.
Контакти менеджерів з продажу
ул. Преображенская, 49/51
Артура Савельева ул (Черняховского). 11
Задати питання
Призначити огляд
Подивитись на карті
Квартиру в цьому  ЖК  бронювали  1 день  назад
Додаткові послуги