Продается ЖК Первый Французский, Французский бульвар, 3, г.Одесса

Одесса, Приморском, Французский бульвар, 3
Характеристики ЖК Первый Французский
Начало строительства:
4 квартал 2019
Окончание строительства:
1 квартал 2026 г.
Конструктив дома
Этажность:
15
Конструктив:
Монолитно-каркасный
Утепление:
Газобетон декоративная плитка
Межквартирные:
Газобетон
Состояние жилья
Окна:
Метало-пластиковый профиль
Высота помещения:
3
Отопление:
Индивидуальное
Инженерные системы
Лифт:
КONE
Безопасность:
Есть
Паркинг:
Подземный

ЖК Первый  Французский

В центре Одессы возводится удивительный жилой комплекс, получивший оригинальное и знаковое название «Первый на Французском». Это жилье премиум-класса, предлагающее отличные комфортабельные условия для проживания. Рядом проходит удобная транспортная развязка, позволяющая быстро и легко добираться в любую точку города. Кроме того, район славится своей инфраструктурой, представленной школами, детскими садами, супермаркетами, рынками, а также заведениями, позволяющими культурно обогатиться. Дополнительным преимуществом выступает близость к морскому побережью.

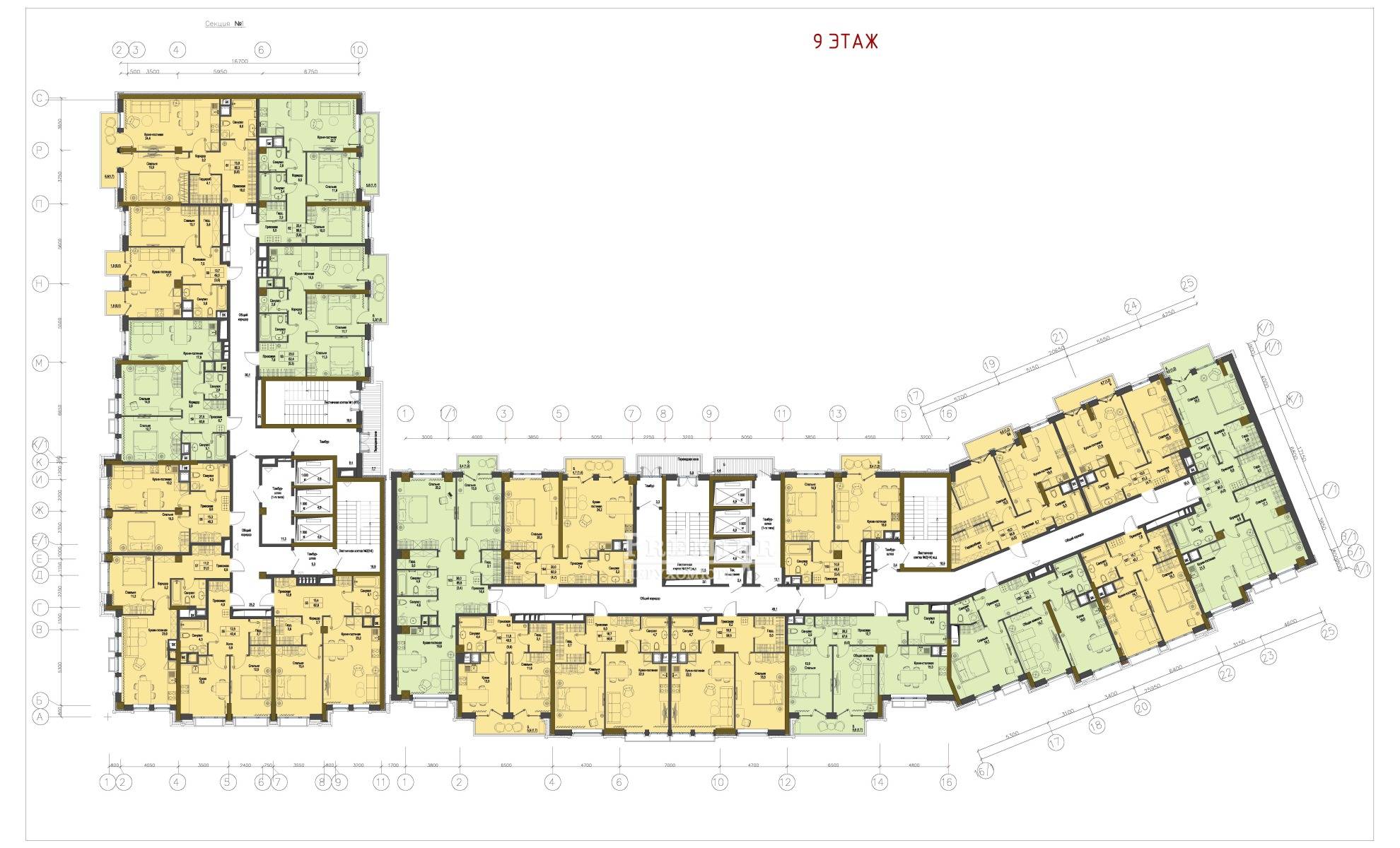
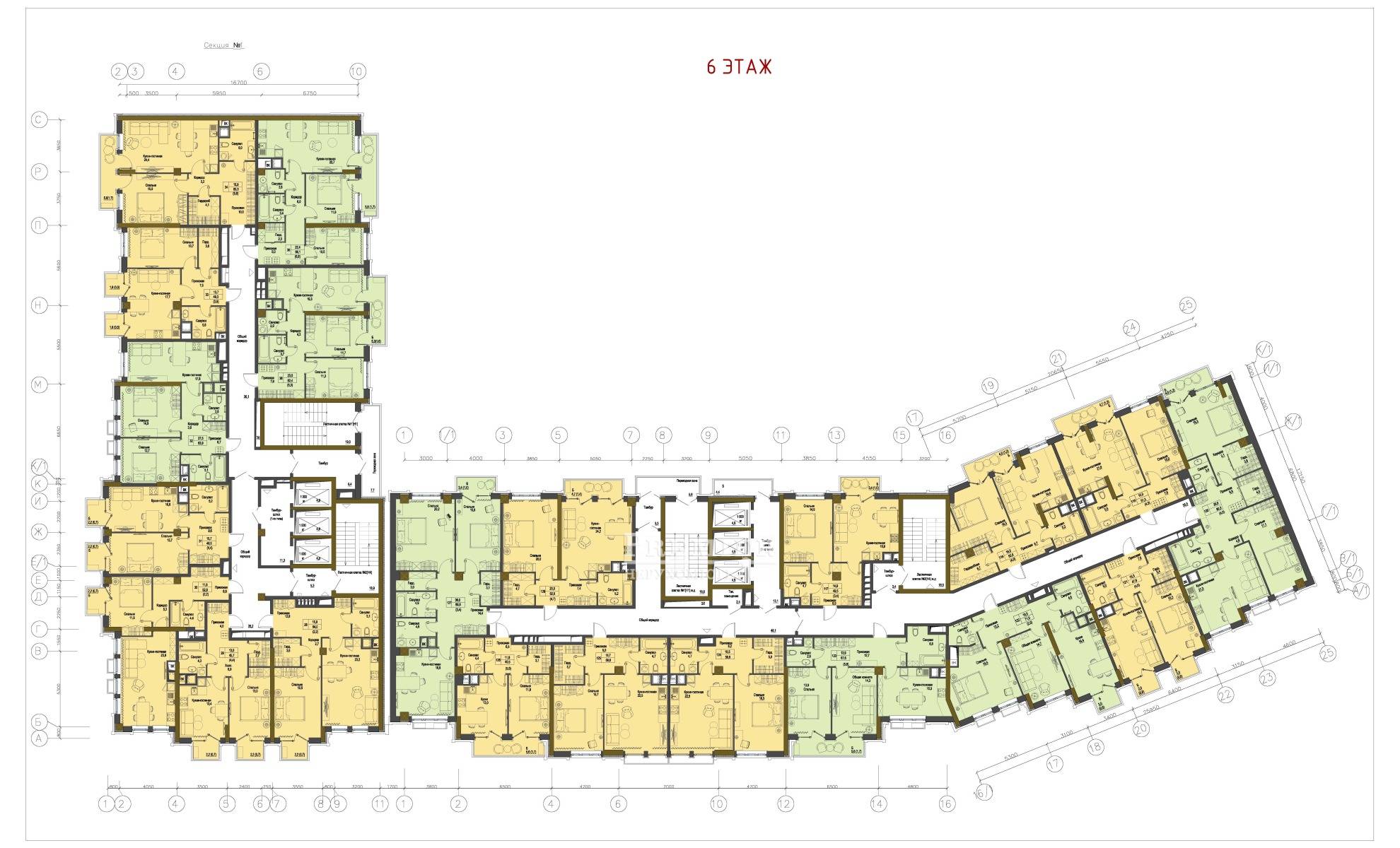
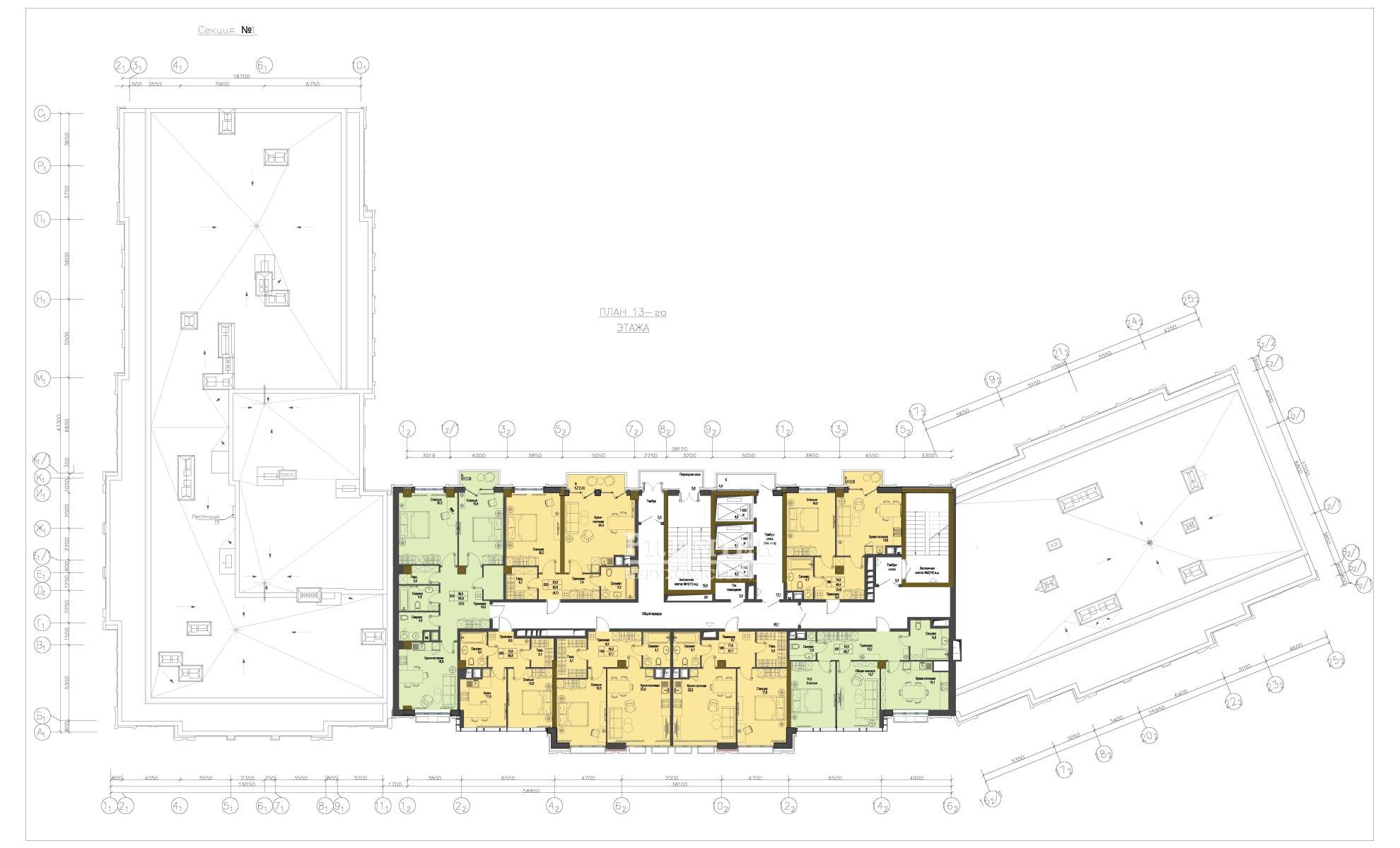
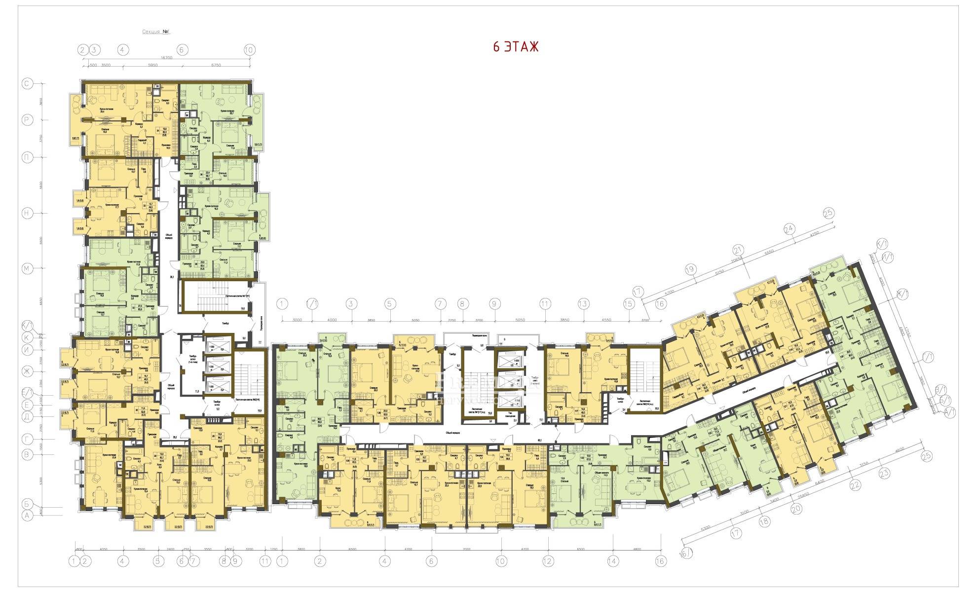
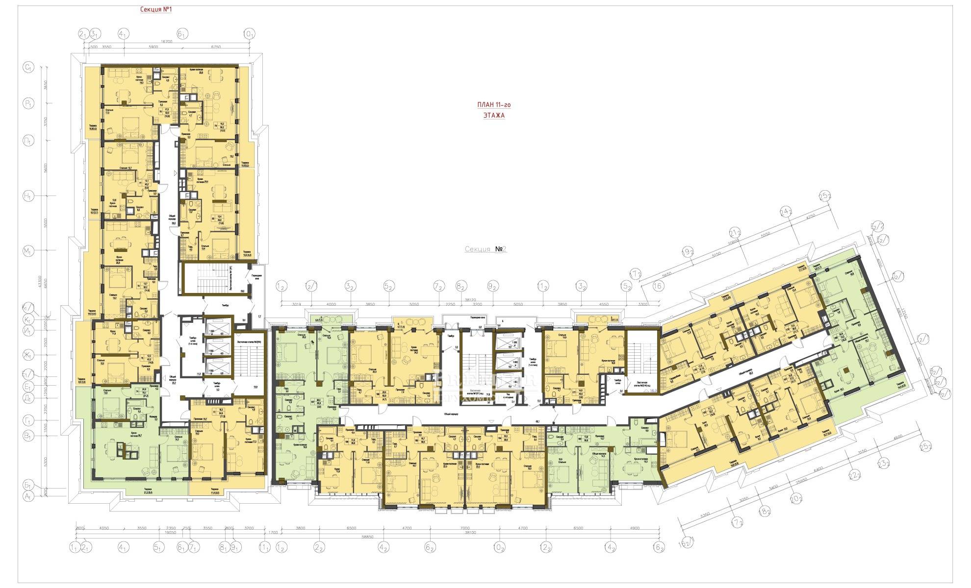
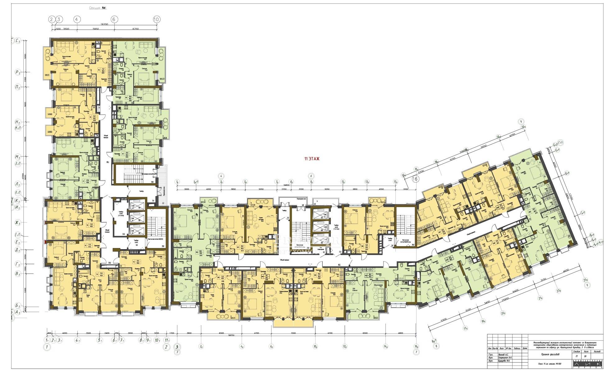
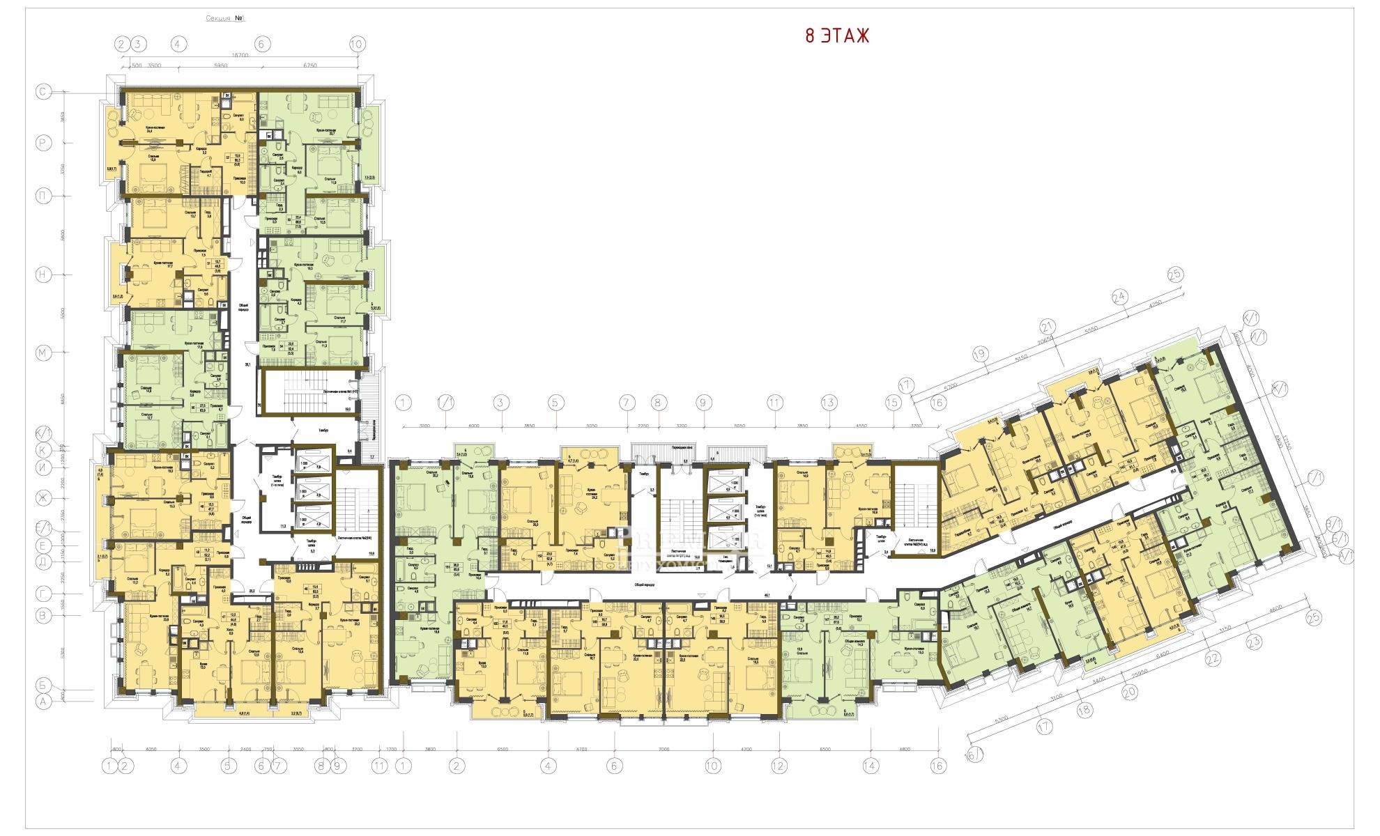
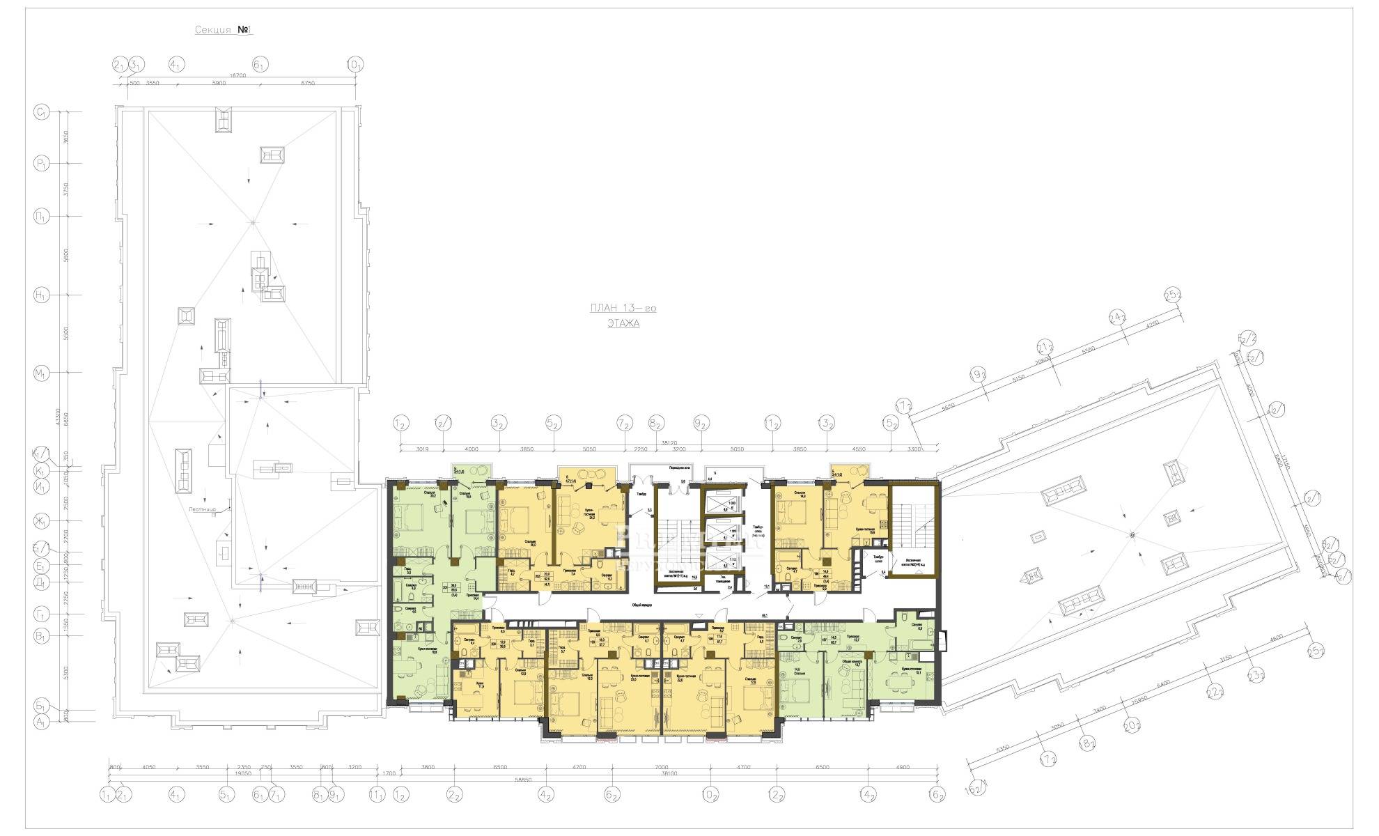
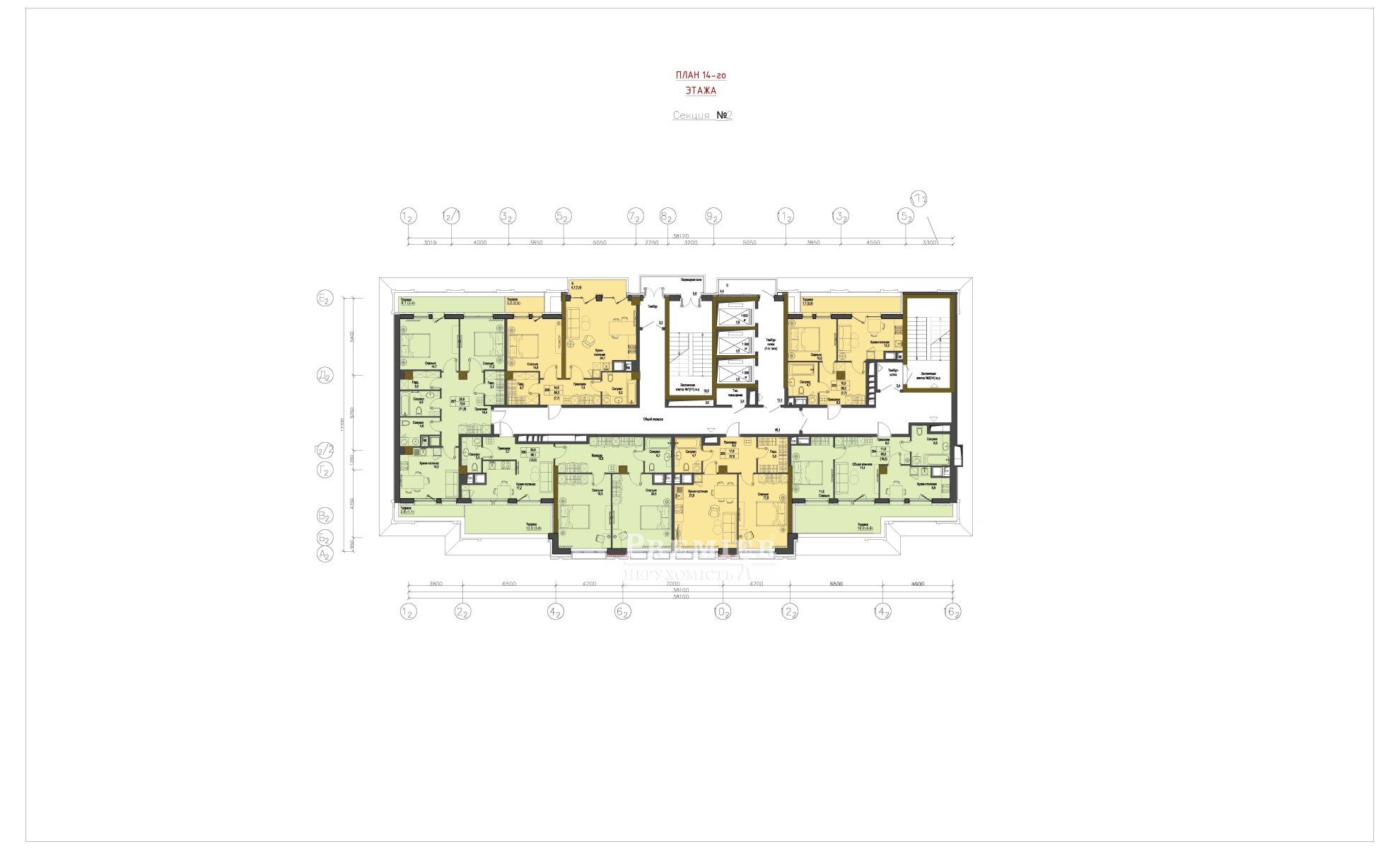
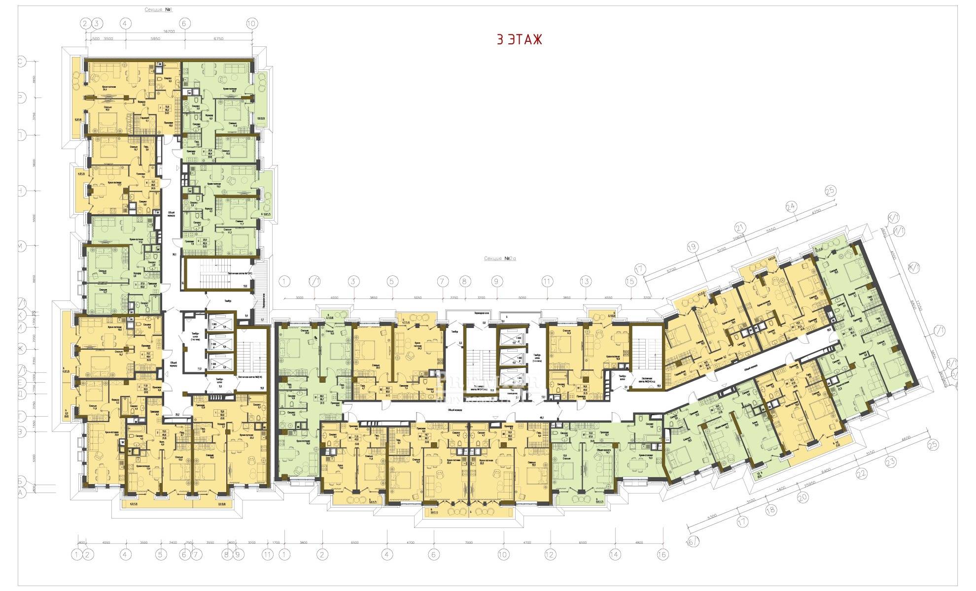
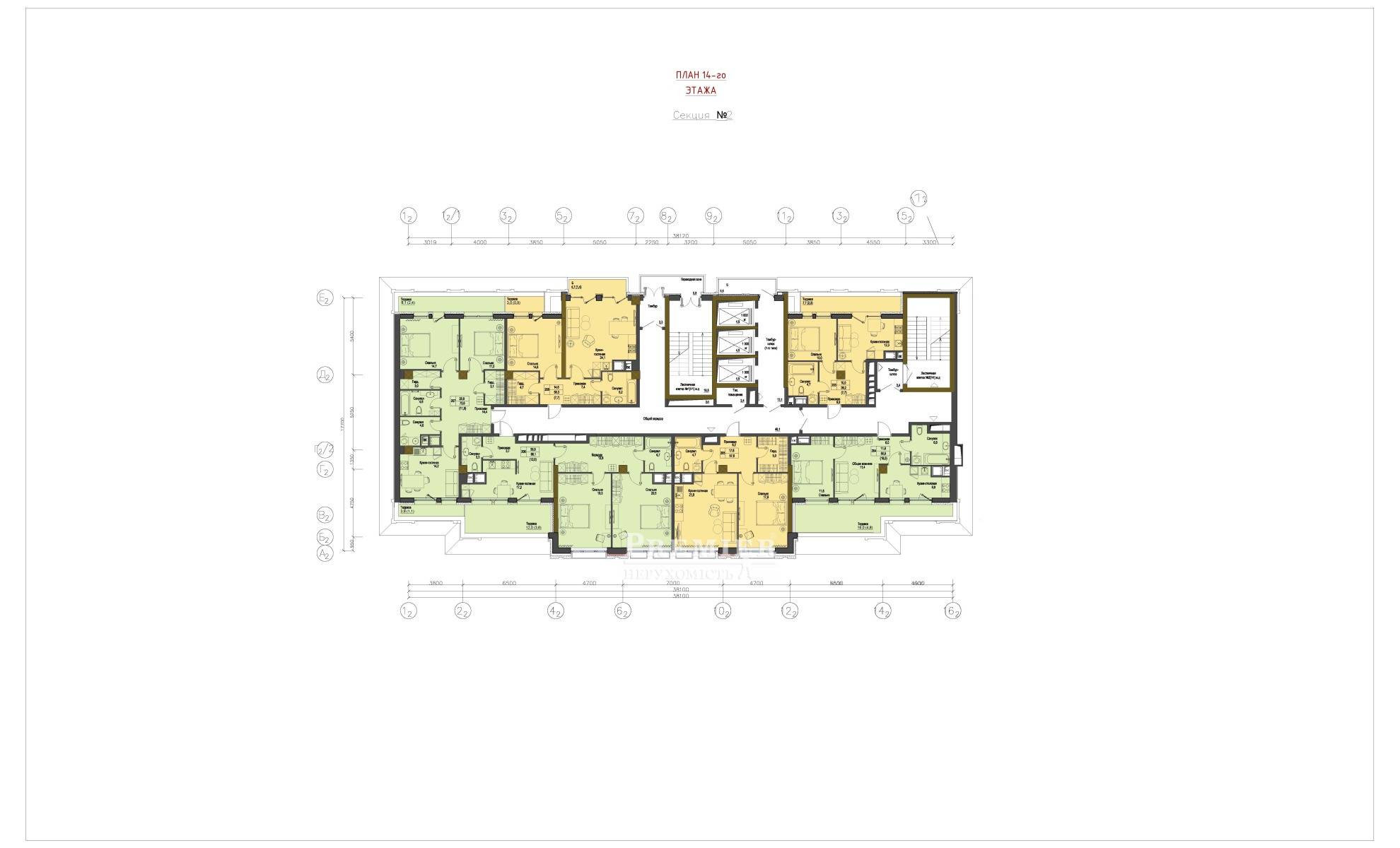
Новый жилой комплекс состоит из 2 секций и 10-15 этажей. Монолитно-каркасная конструкция базируется на свайном фундаменте. Стены выполняются из газобетона и утепляются минеральной каменной ватой. Облицовка фасада осуществляется за счет плитки из стеклофибробетона и покрытия специальными атмосферостойкими красками. В комплексе оборудывают скоростные бесшумные лифты – пассажирский и грузовой. Для владельцев автомобилей предусмотрен вместительный подземный одноуровневый паркинг.

Квартиры в комплексе отличаются свободной планировкой, рациональной площадью и многочисленными удобствами. Высота потолков составляет 3 метра. Система отопления представлена крышной газовой котельной и отопительными приборами с терморегулирующим оборудованием в каждой квартире. Сохранить тепло позволят металлопластиковые окна – 5-камерный профиль с двухкамерным энергосберегающим стеклопакетом. На входе в каждую квартиру монтируются бронированные металлические двери.

Придомовая территория благоустраивается. Проектом предусмотрена высадка зеленых насаждение, создание цветочных клумб, выделение зон для отдыха и барбекю, оборудование детской и спортивной площадки, а также обустраиваются аллеи для пеших прогулок. Вся территория находится под круглосуточной охраной и видеонаблюдением, а в комплексе действует современная противопожарная система.

 

Окончание строительства: 1,2 - 3 секции - 4 квартал 2022г.

Количество комнат
Площадь
Цена за м2
Однокомнатные квартиры
от 40 м²
1600 $
Двухкомнатные квартиры
от 63 м²
1600 $
Трехкомнатные квартиры
от 85 м²
1600 $
Офисные помещения
от 50 м²
2000 $
от 69 200
ГРН. / кв.м
USD
UAH
Компания "Премьер" является официальным партнером строительной компании. Объекты продаются без какой либо комиссии.
Контакты менеджеров по продаже
Артура Савельева ул (Черняховского). 11
ул. Преображенская, 49/51
Задать вопрос
Назначить осмотр
Посмотреть на карте
Дополнительные услуги