Продається ЖК Перший Французький, Французький бульвар, 3, м.Одеса

Одеса, , Французький бульвар, 3
Характеристики ЖК Первый Французский
Початок будівництва:
4 квартал 2019
Завершення будівництва:
1 квартал 2026 г.
Конструктив будинку
Поверховість:
15
Конструктив:
Монолитно-каркасный
Утеплення:
Газобетон декоративная плитка
Міжквартирні:
Газобетон
Стан житла
Вікна:
Метало-пластиковый профиль
Висота приміщення:
3
Опалення:
Индивидуальное
Інженерні системи
Ліфт:
КONE
Безпека:
Есть
Паркінг:
Подземный

ЖК Перший Французький

У центрі Одеси зводиться дивовижний житловий комплекс, який отримав оригінальне і знакову назву «Перший на Французькому». Це житло преміум-класу, що пропонує відмінні комфортабельні умови для проживання. Поруч проходить зручна транспортна розв'язка, що дозволяє швидко і легко добиратися в будь-яку точку міста. Крім того, район славиться своєю інфраструктурою, представленої школами, дитячими садами, супермаркетами, ринками, а також закладами, що дозволяють культурно збагатитися. Додатковою перевагою виступає близькість до морського узбережжя.

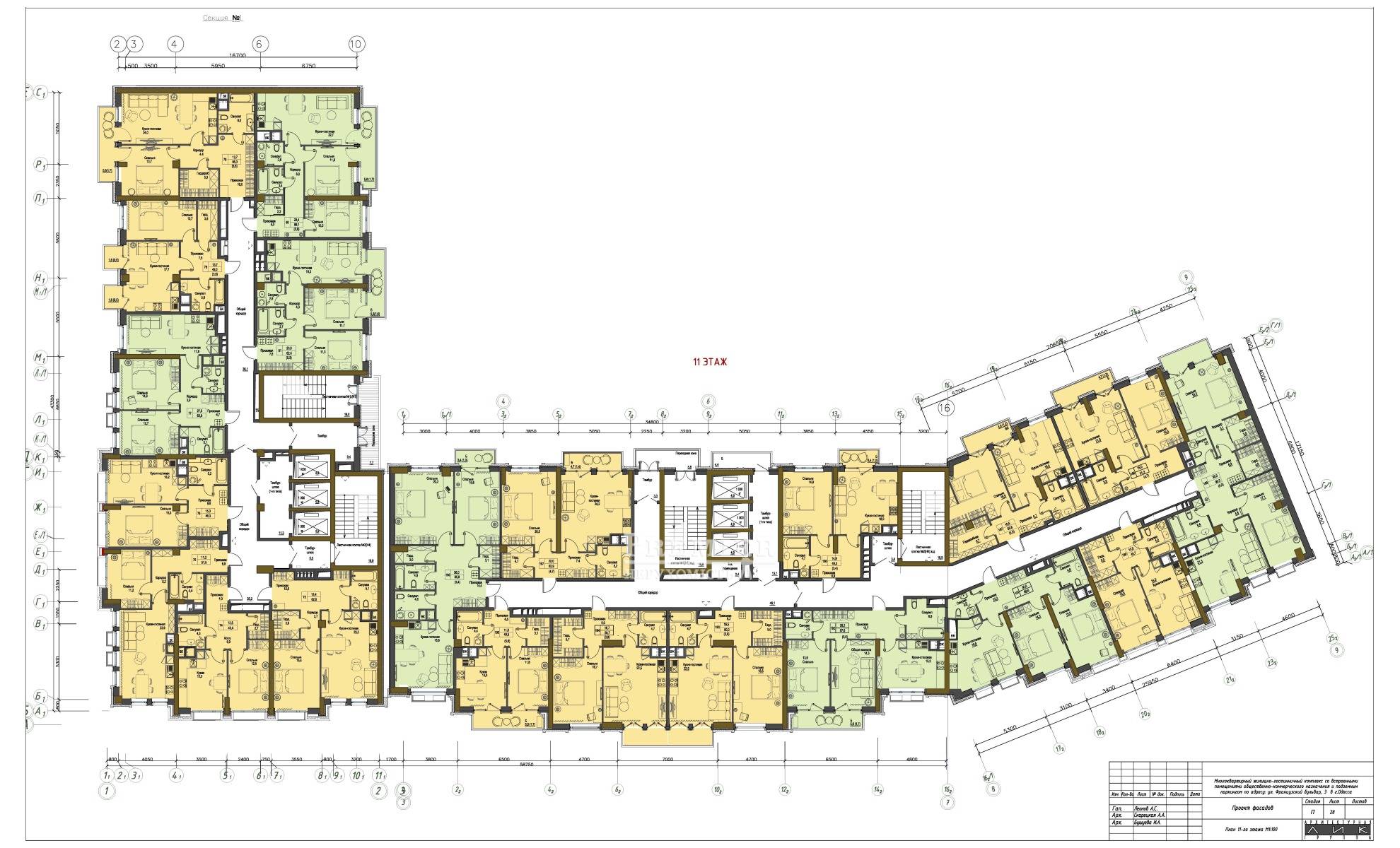
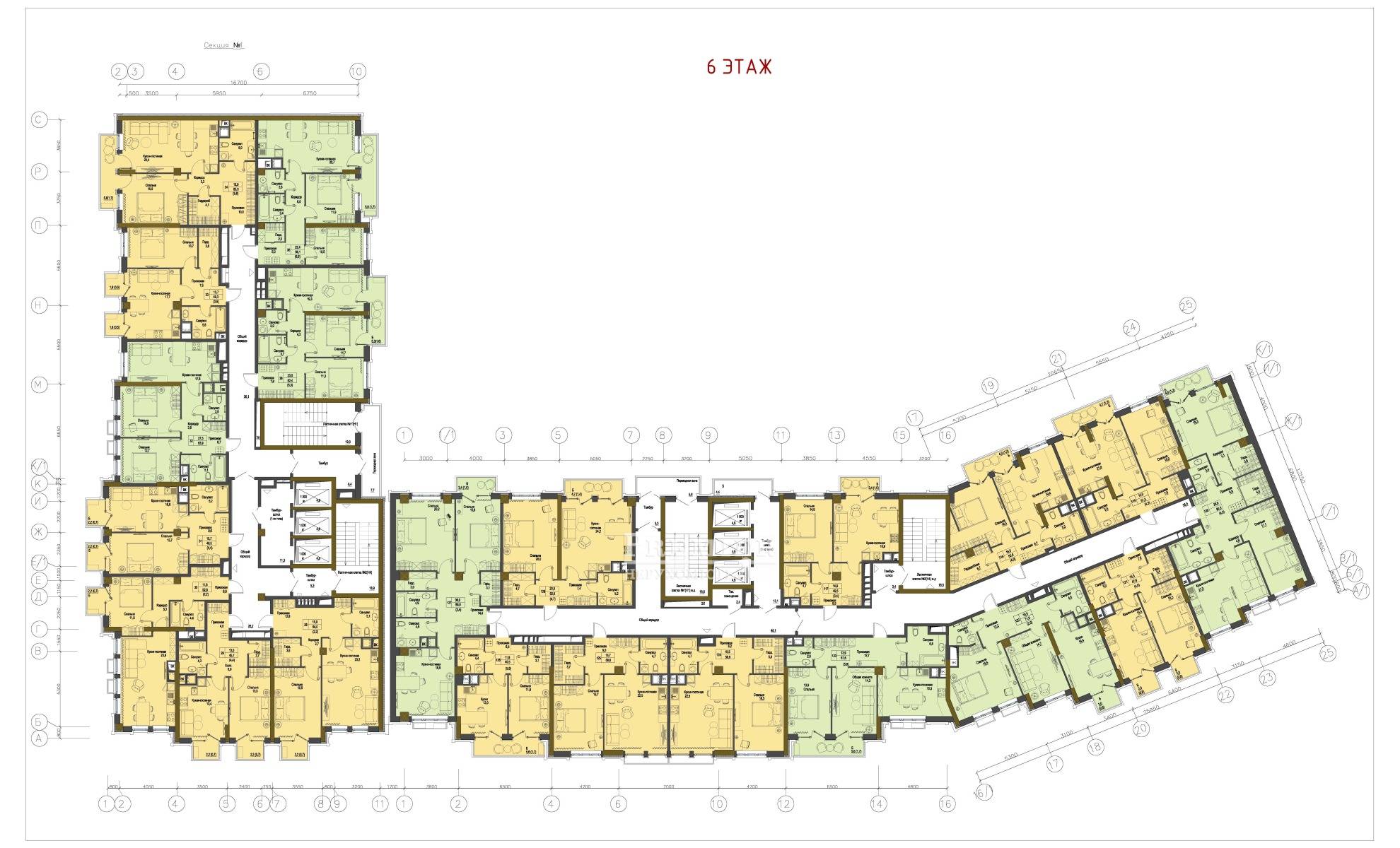
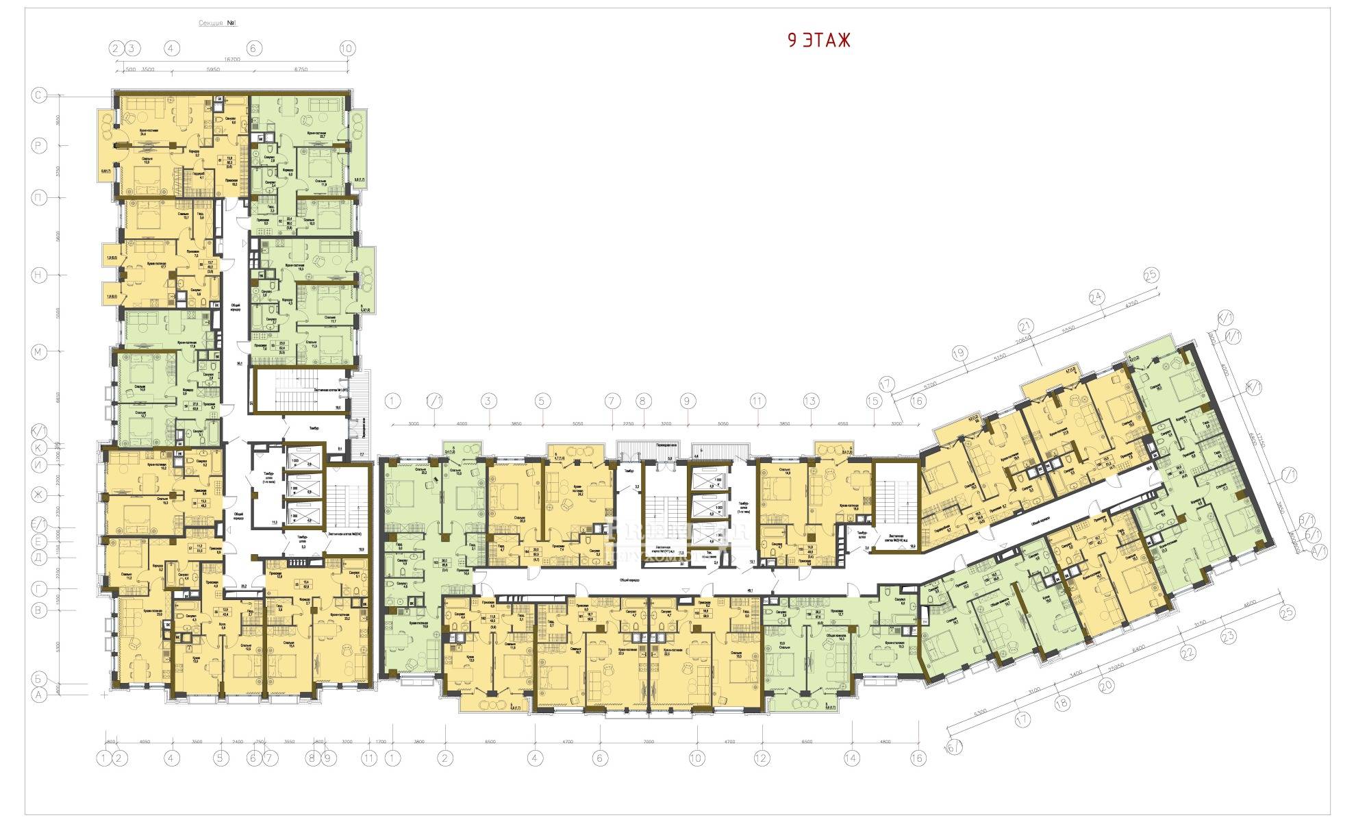
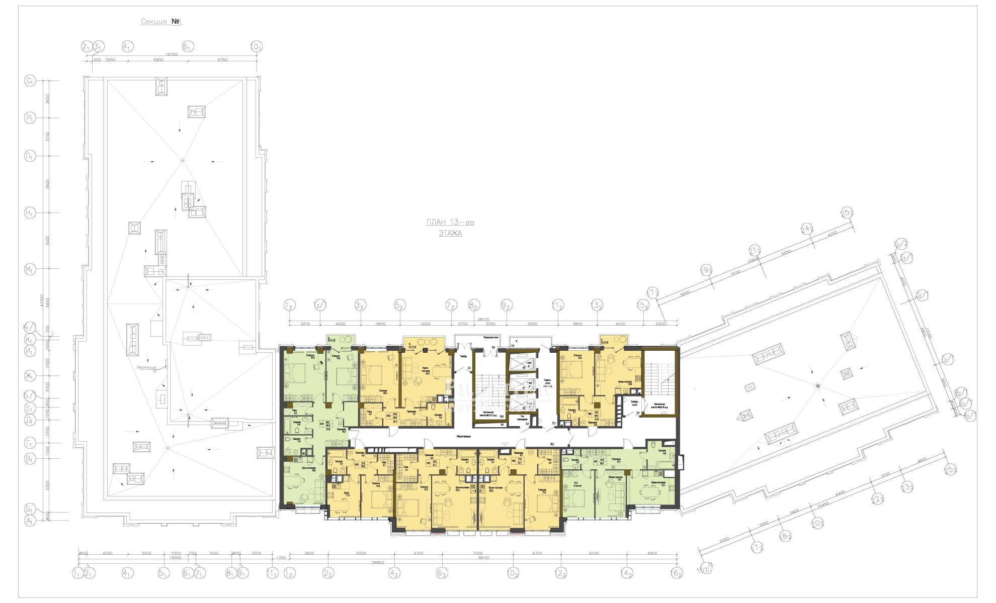
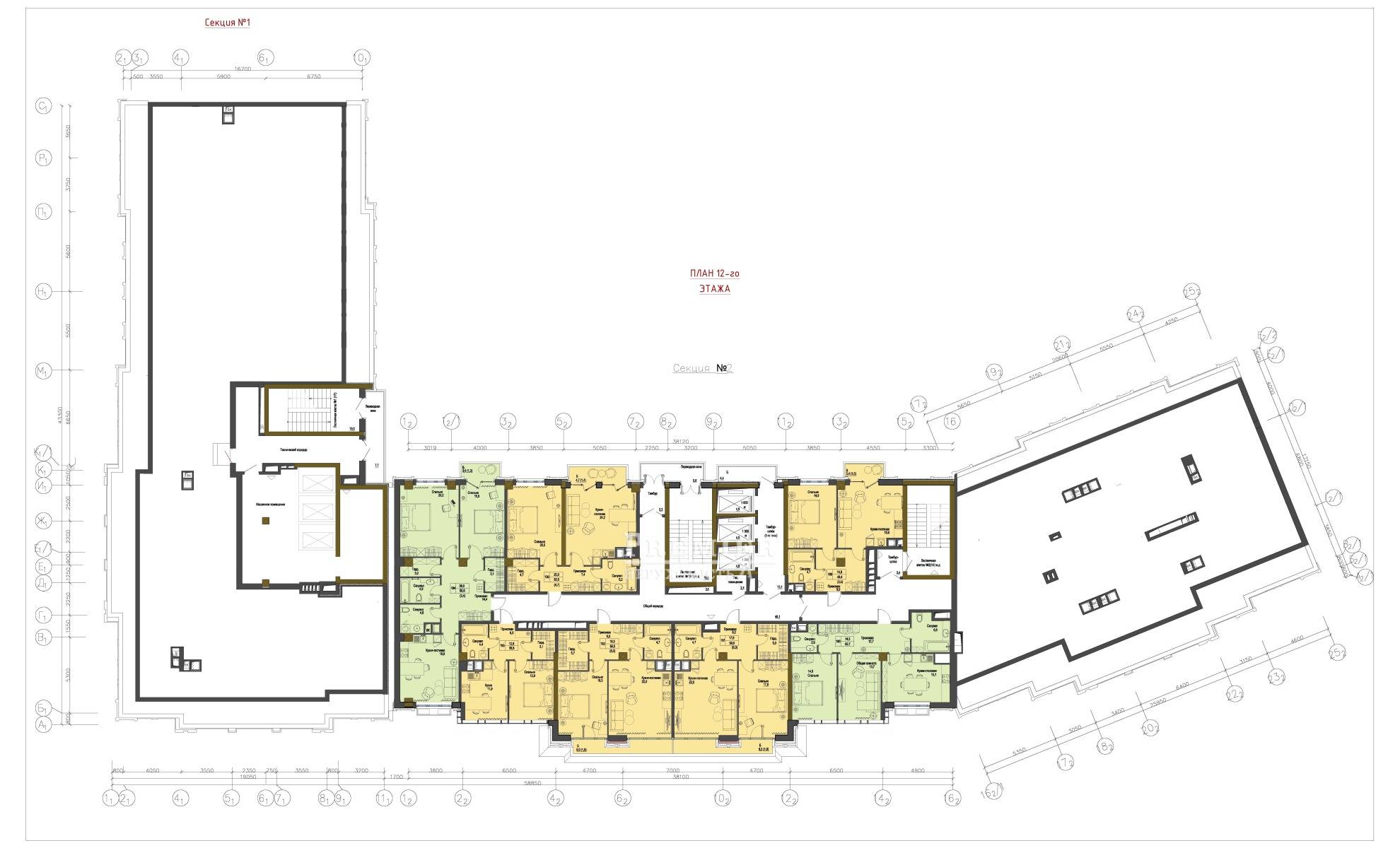
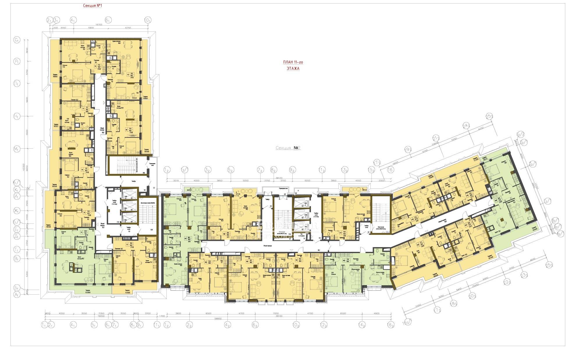
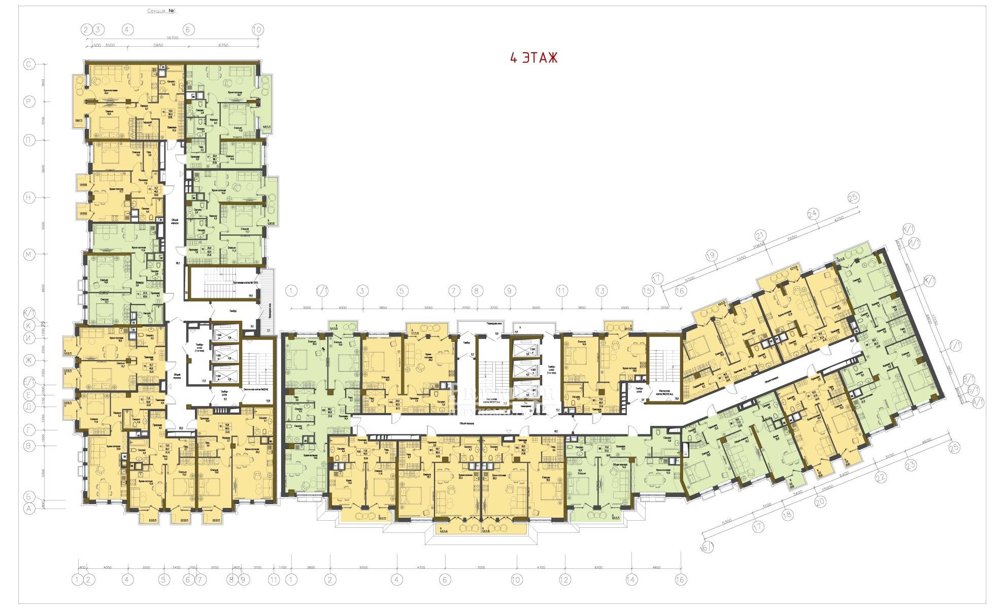
Новий житловий комплекс складається з 2 секцій і 10-15 поверхів. Монолітно-каркасна конструкція базується на пальовій фундаменті. Стіни виконуються з газобетону і утеплюються мінеральною кам'яною ватою. Облицювання фасаду здійснюється за рахунок плитки з стеклофібробетона і покриття спеціальними атмосферостійкими фарбами. У комплексі облаштовуємо швидкісні безшумні ліфти - пасажирський і вантажний. Для власників автомобілів передбачений місткий підземний однорівневий паркінг.

Квартири в комплексі відрізняються вільним плануванням, раціональної площею і численними зручностями. Висота стель становить 3 метри. Система опалення представлена дахової газової котельні та опалювальними приладами з терморегулирующим обладнанням в кожній квартирі. Зберегти тепло дозволять металопластикові вікна - 5-камерний профіль з двокамерним енергозберігаючим склопакетом. На вході в кожну квартиру монтуються броньовані металеві двері.

Прибудинкова територія упорядковується. Проектом передбачена висадка зелених насадження, створення квіткових клумб, виділення зон для відпочинку та барбекю, обладнання дитячого та спортивного майданчика, а також облаштовуються алеї для піших прогулянок. Вся територія знаходиться під цілодобовою охороною і відеоспостереженням, а в комплексі діє сучасна протипожежна система.

 

Закінчення будівництва: 1,2 - 3  секції - 4 квартал 2022г.

Кількість кімнат
Площа
Цена за м2
Однокомнатные квартиры
от 40 м²
1600 $
Двухкомнатные квартиры
от 63 м²
1600 $
Трехкомнатные квартиры
от 85 м²
1600 $
Офисные помещения
от 50 м²
2000 $
от 69 152
ГРН. / кв.м
USD
UAH
Компанія Прем'єр є офіційним партнером будівельної компанії. Об'єкти продаються без будь-якої комісії.
Контакти менеджерів з продажу
Артура Савельева ул (Черняховского). 11
ул. Преображенская, 49/51
Задати питання
Призначити огляд
Подивитись на карті
Додаткові послуги