Продается Дом дача, Солнечная ул., Фонтанка
Одесская обл. / Фонтанка / ул. Солнечная
ID 176762
Комнат
5
Общая
280 м2
Жилая
180 м2
Этажность
2
Участок
6.6 соток
Вода
Водопровод
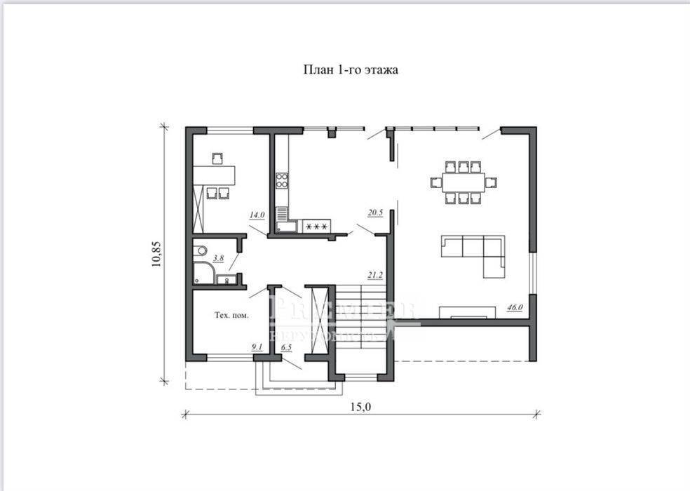
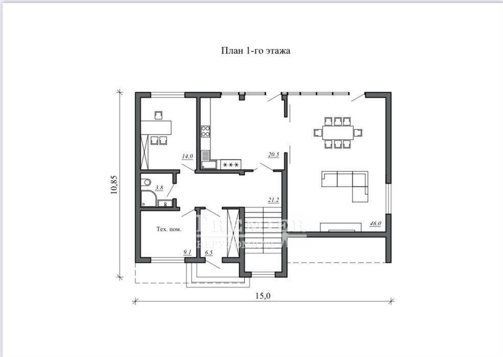
Продам новый дом в закрытом элитном комплексе на берегу моря! Дом площадью 280 кв м , 2 этажа, расположен на участке правильной формы. На 1 этаже расположена просторная кухня , столовая с выходом во двор, тех, помещение, комната и санузел. На 2 этаже - гостевая спальня, спальня с выходом на террасу и мастер-спальня, просторный санузел. Панорамное остекление. На территории посёлка свои пляжи, лес, обзорные площадки, спортивные площадки, яхт клуб. Высокий уровень безопасности.
450 000 USD
400 000 USD 527 771 EUR
341 057 EUR 18 877 500 UAH
16 780 000 UAH Филиалул. Преображенская, 49/51
Ответственный специалист
высшей категории Светлана Риво
высшей категории Светлана Риво
Показать
Дополнительные услуги
Похожие объекты
Дом дача
Одесcк. обл./Одесский район/Молодёжное/Набережная ул.
Цена320 000 USD
Общая268 м2
Цена320 000 USD
268 м2
Дом дача
Одесcк. обл./Одесский район/Лиманка (Мизикевича)/Согласия ул.
Цена250 000 USD
Общая500 м2
Участок10соток
Цена250 000 USD
10 соток
Дом дача
Одесcк. обл./Одесский район/Лиманка (Мизикевича)/
Цена240 000 USD
Общая300 м2
Цена240 000 USD
300 м2
Дом дача
Одесcк. обл./Одесский район/Крыжановка/Центральная ул.
Цена410 000 USD
Общая385 м2
Участок6.7соток
Цена410 000 USD
6.7 соток