Продається Будинок дача, Сонячна вул., Фонтанка
Одеська обл. / Фонтанка / ул. Сонячна в
ID 176762
Кімнат
5
Загальна
280 м2
Житлова
180 м2
Поверховість
2
Ділянка
6.6 соток
Вода
Водопровод
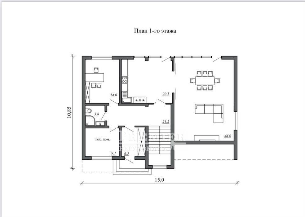
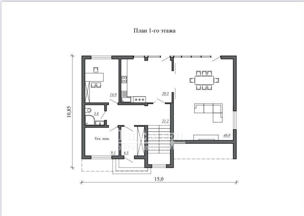
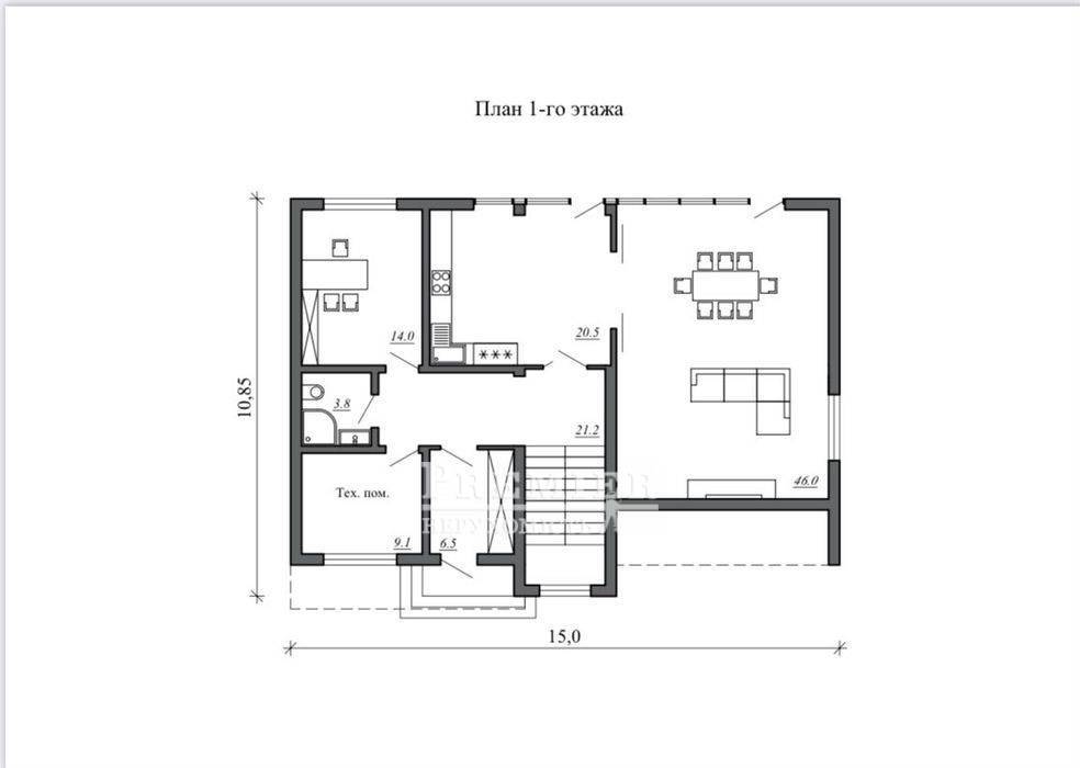
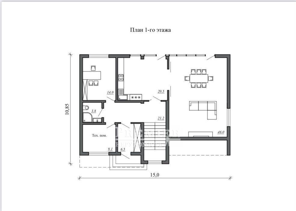
Продам новий будинок у закритому елітному комплексі на березі моря! Будинок площею 280 кв м, 2 поверхи, розташований на ділянці правильної форми. На 1 поверсі розташована простора кухня, їдальня з виходом у двір, тих, приміщення, кімната та санвузол. На 2 поверсі - гостьова спальня, спальня з виходом на терасу та майстер-спальня, просторий санвузол. Панорамне скління. На території селища свої пляжі, ліс, оглядові майданчики, спортивні майданчики, яхт-клуб. Високий рівень безпеки.
450 000 USD
400 000 USD 529 795 EUR
339 754 EUR 18 652 500 UAH
16 580 000 UAH Філіявул. Преображенська, 49/51
Відповідальний спеціаліст
вищої категорії Світлана Ріво
вищої категорії Світлана Ріво
Показати
Додаткові послуги
Схожі об`єкти
Будинок дача
Одеська. обл./Одескій район/Молодіжне/Набережна вул.
Цена320 000 USD
Общая268 м2
Цена320 000 USD
268 м2
Будинок дача
Одеська. обл./Одескій район/Царське село-2/Згоди вул.
Цена250 000 USD
Общая500 м2
Участок10соток
Цена250 000 USD
10 соток
Будинок дача
Одеська. обл./Одескій район/Крижанівка/Центральна вул.
Цена410 000 USD
Общая385 м2
Участок6.7соток
Цена410 000 USD
6.7 соток
Будинок дача
Одеська. обл./Одескій район/Крижанівка/Гонтаренко вул.
Цена219 000 USD
Общая360 м2
Цена219 000 USD
360 м2