Продается Дом дача, Восточная ул., Фонтанка
Одесская обл. / Фонтанка / ул. Восточная
ID 213081
Комнат
6
Общая
280 м2
Этажность
2
Участок
9.6 соток
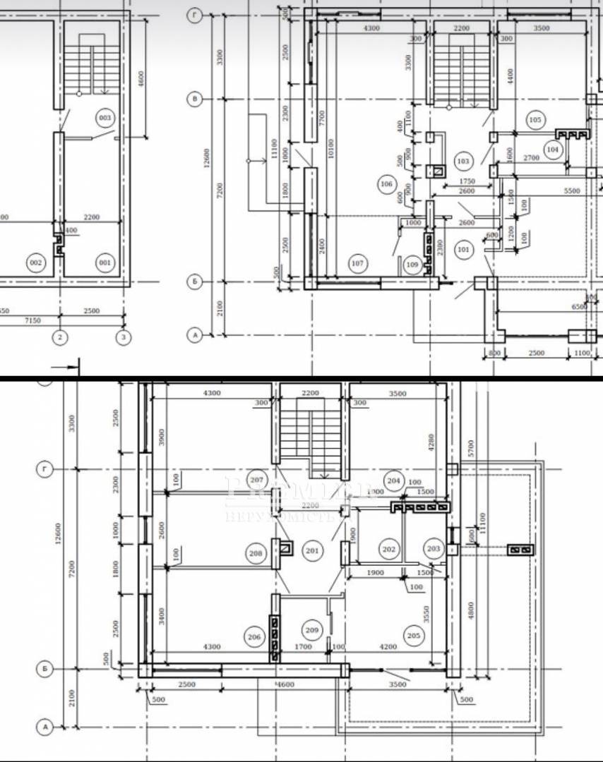
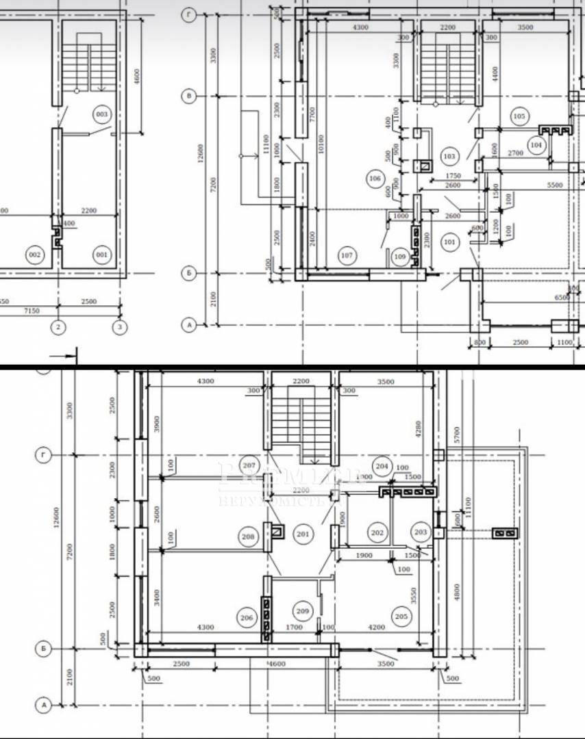
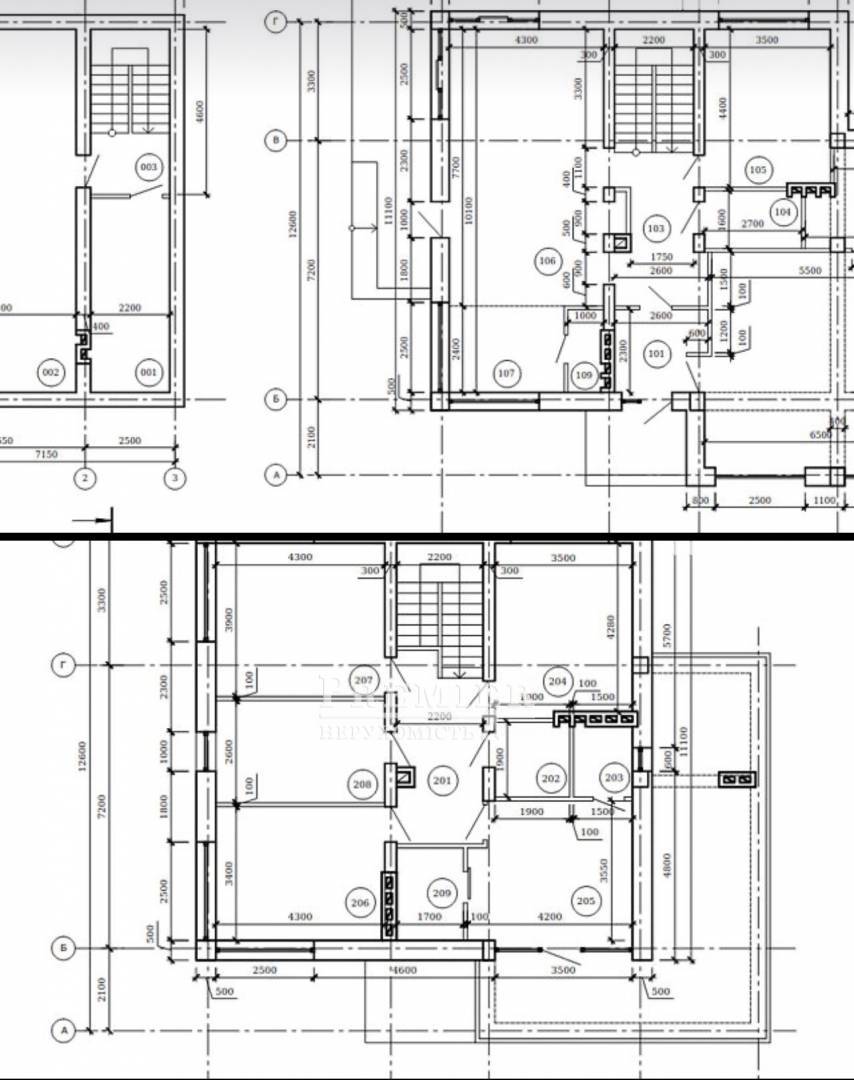
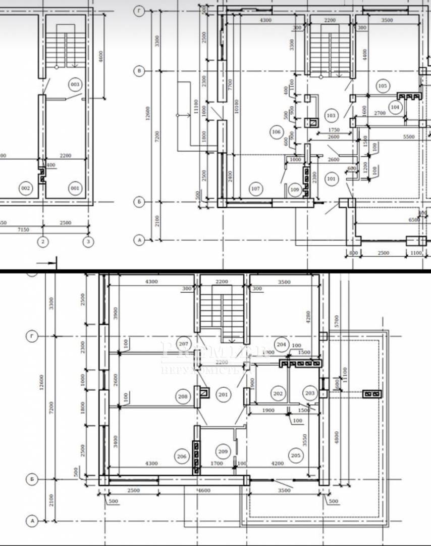
Предлагается к продаже дом с качественным капитальным строительством.
Подвал: 2 помещения, общая площадь 60 кв.м. Первый этаж: коридор, гостиная с подготовкой под камин, спальня, санузел, котельная, гараж на 2 машины. Второй этаж: 3 спальни мастер-спальня с выходом на террасу и отдельным санузлом, кабинет, общий санузел. Чердак: 3 помещения. Фундамент: комбинированная ленточная плита с армопоясом, колонны и сейсмопояс. Стены: 50 см - газобетон Aeroc D-400 с бетонными колоннами внутри. Перекрытия и лестницы монолитные.
Крыша: утеплитель 200 мм (Технониколь Роклайт), супердиффузионная мембрана, черепица Borha (Испания).
Окна-двери: Kommerling 76 (6 камер, остекление 68 м2).
Водная дверь: теплый алюминий с терморазрывом.
Гаражные ворота: Alutech, ширина 5 м, промышленный привод.
Коммуникации и подготовка: вода и электричество заведены (22 кВт счетчик под зеленый тариф), выполнено штробление под электричество, проложены трассы для отопления до 2-го этажа (Wavin Ekoplastik), пподготовленные каналы под камин и твердотопливный котел (Versia Lux), вентиляция выведена на крышу и из подвала, канализация септик. Подробности по телефону.
Подвал: 2 помещения, общая площадь 60 кв.м. Первый этаж: коридор, гостиная с подготовкой под камин, спальня, санузел, котельная, гараж на 2 машины. Второй этаж: 3 спальни мастер-спальня с выходом на террасу и отдельным санузлом, кабинет, общий санузел. Чердак: 3 помещения. Фундамент: комбинированная ленточная плита с армопоясом, колонны и сейсмопояс. Стены: 50 см - газобетон Aeroc D-400 с бетонными колоннами внутри. Перекрытия и лестницы монолитные.
Крыша: утеплитель 200 мм (Технониколь Роклайт), супердиффузионная мембрана, черепица Borha (Испания).
Окна-двери: Kommerling 76 (6 камер, остекление 68 м2).
Водная дверь: теплый алюминий с терморазрывом.
Гаражные ворота: Alutech, ширина 5 м, промышленный привод.
Коммуникации и подготовка: вода и электричество заведены (22 кВт счетчик под зеленый тариф), выполнено штробление под электричество, проложены трассы для отопления до 2-го этажа (Wavin Ekoplastik), пподготовленные каналы под камин и твердотопливный котел (Versia Lux), вентиляция выведена на крышу и из подвала, канализация септик. Подробности по телефону.
150 000 USD
128 345 EUR
6 667 500 UAH
Филиалул. Сахарова 24
Ответственный специалист
высшей категории Наталья Кухтинова
высшей категории Наталья Кухтинова
Показать
Дополнительные услуги
Похожие объекты
Дом дача
Одесcк. обл./Одесский район/Сычавка/Филатова ул.
Цена75 000 USD
Общая240 м2
Участок25соток
Цена75 000 USD
25 соток
Дом дача
Одесcк. обл./Одесский район/Фонтанка/Кошевого ул.
Цена200 000 USD
Общая180 м2
Участок12соток
Цена200 000 USD
12 соток
Дом дача
Одесcк. обл./Одесский район/Молодёжное/4 линия (3 Массив)
Цена75 000 USD
Общая103.15 м2
Участок8.2соток
Цена75 000 USD
8.2 соток
Дом дача
Одесcк. обл./Одесский район/Доброслав (Коминтерновское)/Первомайская
Цена120 000 USD
Общая58 м2
Участок8.5соток
Цена120 000 USD
8.5 соток