Продається Будинок дача, Східна вул., Фонтанка
Одеська обл. / Фонтанка / ул. Східна в
ID 213081
Кімнат
6
Загальна
280 м2
Поверховість
2
Ділянка
9.6 соток
Пропонується до продажу будинок з якісним капітальним будівництвом.
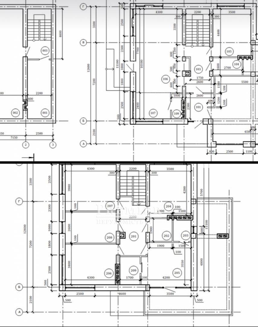
Підвал: 2 приміщення, загальна площа 60 кв. Перший поверх: коридор, вітальня з підготовкою під камін, спальня, санвузол, котельня, гараж на 2 машини. Другий поверх: 3 спальні майстер-спальня з виходом на терасу та окремим санвузлом, кабінет, загальний санвузол. Горище: 3 приміщення. Фундамент: комбінована стрічкова плита з армопоясом, колони та сейсмопояс. Стіни: 50 см – газобетон Aeroc D-400 з бетонними колонами всередині. Перекриття та сходи монолітні.
Дах: утеплювач 200 мм (Техноніколь Роклайт), супердифузійна мембрана, черепиця Borha (Іспанія).
Вікна-двері: Kommerling 76 (6 камер, засклення 68 м2).
Водні двері: теплий алюміній з терморозривом.
Гаражна брама: Alutech, ширина 5 м, промисловий привід.
Комунікації та підготовка: вода та електрика заведені (22 кВт лічильник під зелений тариф), виконано штроблення під електрику, прокладено траси для опалення до 2-го поверху (Wavin Ekoplastik), підготовлені канали під камін та твердопаливний котел (Versia Lux), вентиляція. Подробиці по телефону
Підвал: 2 приміщення, загальна площа 60 кв. Перший поверх: коридор, вітальня з підготовкою під камін, спальня, санвузол, котельня, гараж на 2 машини. Другий поверх: 3 спальні майстер-спальня з виходом на терасу та окремим санвузлом, кабінет, загальний санвузол. Горище: 3 приміщення. Фундамент: комбінована стрічкова плита з армопоясом, колони та сейсмопояс. Стіни: 50 см – газобетон Aeroc D-400 з бетонними колонами всередині. Перекриття та сходи монолітні.
Дах: утеплювач 200 мм (Техноніколь Роклайт), супердифузійна мембрана, черепиця Borha (Іспанія).
Вікна-двері: Kommerling 76 (6 камер, засклення 68 м2).
Водні двері: теплий алюміній з терморозривом.
Гаражна брама: Alutech, ширина 5 м, промисловий привід.
Комунікації та підготовка: вода та електрика заведені (22 кВт лічильник під зелений тариф), виконано штроблення під електрику, прокладено траси для опалення до 2-го поверху (Wavin Ekoplastik), підготовлені канали під камін та твердопаливний котел (Versia Lux), вентиляція. Подробиці по телефону
150 000 USD
128 345 EUR
6 667 500 UAH
Філіявул. Сахарова 24
Відповідальний спеціаліст
вищої категорії Наталія Кухтінова
вищої категорії Наталія Кухтінова
Показати
Додаткові послуги
Схожі об`єкти
Будинок дача
Одеська. обл./Одескій район/Сичавка/Філатова вул.
Цена75 000 USD
Общая240 м2
Участок25соток
Цена75 000 USD
25 соток
Будинок дача
Одеська. обл./Одескій район/Фонтанка/Кошового вул.
Цена200 000 USD
Общая180 м2
Участок12соток
Цена200 000 USD
12 соток
Будинок дача
Одеська. обл./Одескій район/Молодіжне/4 лінія (3 Масив)
Цена75 000 USD
Общая103.15 м2
Участок8.2соток
Цена75 000 USD
8.2 соток
Будинок дача
Одеська. обл./Одескій район/Доброслав (Комінтернівське)/Першотравнева
Цена120 000 USD
Общая58 м2
Участок8.5соток
Цена120 000 USD
8.5 соток