Продається 3-комн. квартира в новобудові, Бочарова Генерала вул., м.Одеса
Одеса, Пересипськом, ул. Бочарова Генерала в
ID 164252
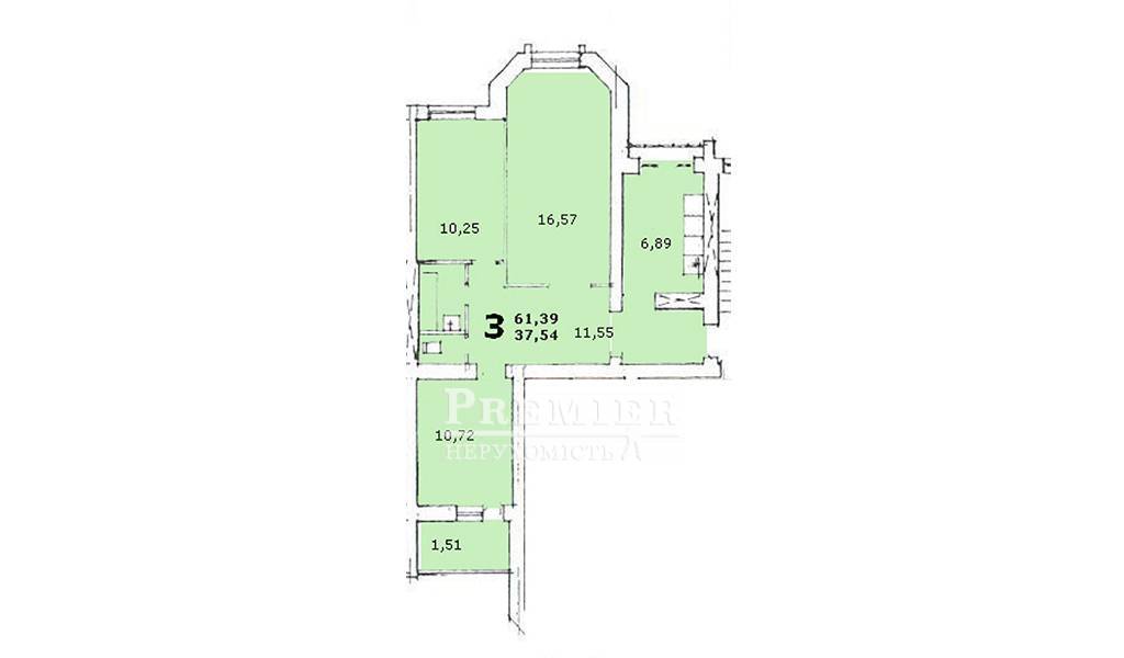
Кімнат
3
Загальна
61.39 м2
Житлова
37.54 м2
Кухня
6.89 м2
Поверх
1
Поверховість
10
У продажу 3-кімнатна квартира, розташована в новому, цегляному будинку. Квартира знаходиться на 1 поверсі з фасадним виходом на ул.Сахарова, навпаки Розетки, що прекрасно підійде під комерцію. Загальна площа квартири 61.39 метра, 3 роздільні кімнати 37.54 метрів, кухня 6.89 метрів. Зі спальні вихід на лоджію. Санвузол роздільний. У квартирі виконана стяжка, оштукатурені стіни, заведені комунікації. Будинок знаходиться у вдалому місці, поруч розташовані супермаркети, ринок Початок, зупинки маршруток.
75 000 USD
63 948 EUR
3 146 250 UAH
Філіяпросп. Князя Володимира Великого, 99
(Добровольського)
(Добровольського)
Відповідальний спеціаліст Ольга Колісниченко
Показати
Додаткові послуги
Прибутковість об'єкту від оренди*
від11250грн/місяць
*Середня ціна при здачі об'єкта в оренду в Пересипськом районі
Зміна цін на 3-комн. квартира в новобудові в Пересипськом районі
Схожі об`єкти
Трикімнатна квартира
м.Одеса/Пересипський/Заболотного Академіка вул.
Цена83 000 USD
Общая90 м2
Цена83 000 USD
90 м2
Трикімнатна квартира
м.Одеса/Пересипський/28 бригади вул. (Паустовського вул.)
Цена95 000 USD
Общая93 м2
Цена95 000 USD
93 м2
Трикімнатна квартира
м.Одеса/Пересипський/Ярослава Баїса вул. (Висоцького вул.)
Цена55 000 USD
Общая92 м2
Цена55 000 USD
92 м2
Трикімнатна квартира
м.Одеса/Пересипський/Ярослава Баїса вул. (Висоцького вул.)
Цена97 000 USD
Общая96 м2
Цена97 000 USD
96 м2