Продається 1кімнатна квартира, Хантадзе пров., Чорноморськ
Одеська обл. / Чорноморськ / Хантадзе пров.
ID 164839
Кімнат
1
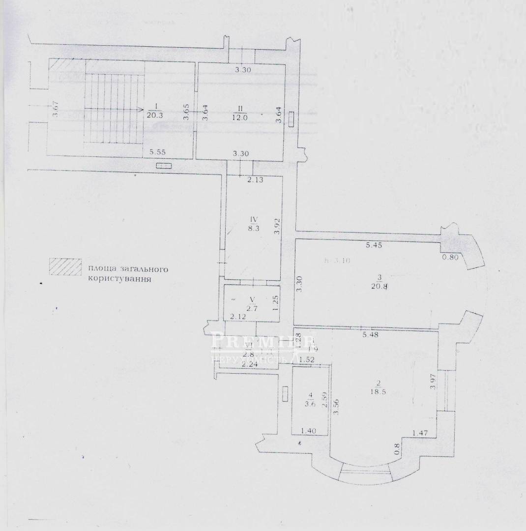
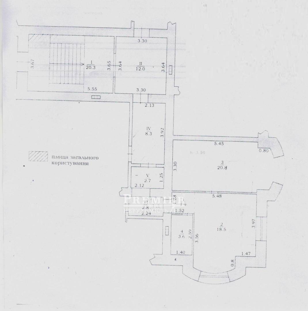
Загальна
57 м2
Житлова
21 м2
Кухня
18.5 м2
Поверх
1
Поверховість
8
У продажу однокімнатна квартира в новому, цегляному будинку. Загальна площа 57 кв.м, простора, світла кухня 18.5 кв.м, високі стелі. Зроблений свіжий ремонт в теплих тонах, встановлена кухня, вбудовані шафи, облицьований санвузол. Хороші броньовані двері. Розлучена пожежна сигналізація. У квартиру заведені світло, вода. Окремий вхід на 5 квартир. Можна придбати все 5, під миниотель. Море, кафе, парк, супермаркети в крокової доступності. Телефонуйте.
48 000 USD
41 229 EUR
2 133 600 UAH
Філіям. Чорноморськ вул. Данченка, 8
Відповідальний спеціаліст Маріана Мардірос
Показати
Додаткові послуги
Схожі об`єкти
Однокімнатна квартира
Одеська. обл./Одескій район/Іллічівка/Таврійська вул.
Цена36 300 USD
Общая32 м2
Цена36 300 USD
32 м2
Однокімнатна квартира
Одеська. обл./Одескій район/Лиманка (Мизикевича)/Будівельна вул.
Цена48 000 USD
Общая47 м2
Цена48 000 USD
47 м2
1-кімн. квартира в новобудові
Одеська. обл./Одескій район/м.Одеса/Спрейса вул.
Цена36 000 USD
Общая35.26 м2
Цена36 000 USD
35.26 м2