Продається Будинок дача, без вулиці, Затока, Коммунстрой СТ
Одеська обл. / Затока / без вулиці
ID 167019
Кімнат
7
Загальна
217.7 м2
Житлова
92 м2
Кухня
11.1 м2
Поверховість
2
Ділянка
3.39 сотки
Вода
холодная
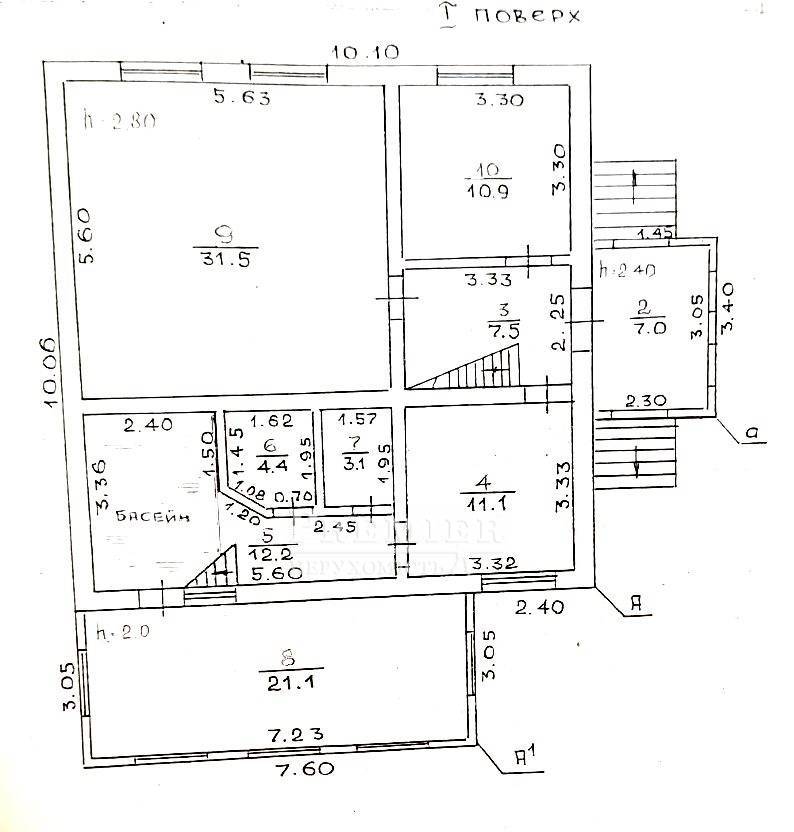
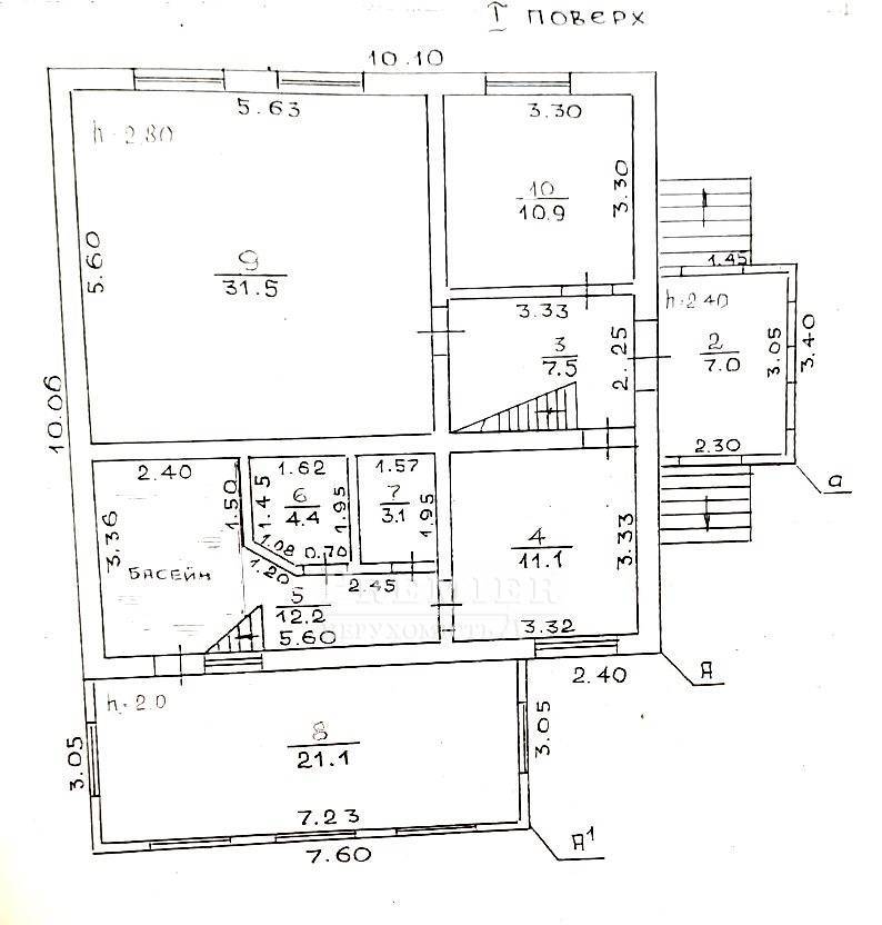
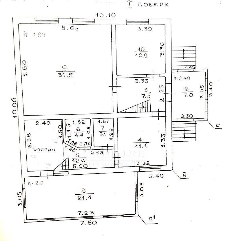
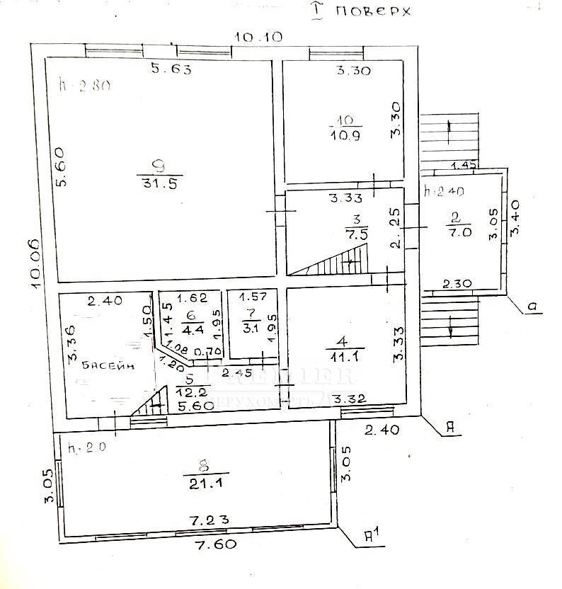
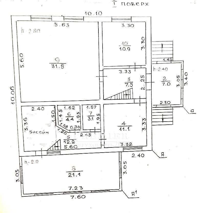
Вашій увазі пропонуємо будинок в Затоці особливої споруди (на воді). Глибина в озері прямо з прибудованого пірсу 3.5 метра. Менше 200 метрів до морського пляжу. Цілісний фундамент. Будинок піднятий на півтора метра від землі, що гарантує його НЕ затопляемость при негативних погодних умовах. Усередині будинок оброблений вірменської штукатуркою, яка в сукупності зі стінами з товстого ракушняка, гарантує вам тепло і комфорт навіть в найлютіші морози. Електрика і сантехніка повністю розведені по будинку. Так-же встановлений бак для води місткістю до 3-х тонн, який в разі форс-мажорних ситуаціях забезпечить Вас питною водою в на досить тривалий термін! На першому поверсі розташований великий зал, кухня, передбанник, сауна, басейн і санвузол. На другому - три кімнати, великий зал з двох кімнат і вихід на балкон. До будинку прибудований гараж, а над ним розташовується ще одна кімната. До будинку підключена електромережу на 380v. Всі комунікації підведені до ділянки.
100 000 USD
85 827 EUR
4 360 000 UAH
Філіям. Чорноморськ вул. Данченка, 8
Відповідальний спеціаліст
вищої категорії Тетяна Герастовська
вищої категорії Тетяна Герастовська
Показати
Додаткові послуги
Схожі об`єкти
Будинок дача
Одеська. обл./Білгород-Дністровський/Затока/Сонячна вул.
Цена120 000 USD
Общая150 м2
Участок3.5сотки
Цена120 000 USD
3.5 сотки
Будинок дача
Одеська. обл./Білгород-Дністровський/Затока/без вулиці
Цена93 000 USD
Общая101 м2
Участок6соток
Цена93 000 USD
6 соток
Будинок дача
Одеська. обл./Білгород-Дністровський/Затока/без вулиці
Цена125 000 USD
Общая106 м2
Участок6.8соток
Цена125 000 USD
6.8 соток
Будинок дача
Одеська. обл./Білгород-Дністровський/Шабо/Молодіжна вул.
Цена65 000 USD
Общая180 м2
Участок8соток
Цена65 000 USD
8 соток