Продається Будинок дача, Соборна вул., Фонтанка
Одеська обл. / Фонтанка / ул. Соборна в
ID 169414
Кімнат
2
Загальна
94 м2
Житлова
29 м2
Кухня
29 м2
Поверховість
2
Ділянка
2 сотки
Вода
Водопровод
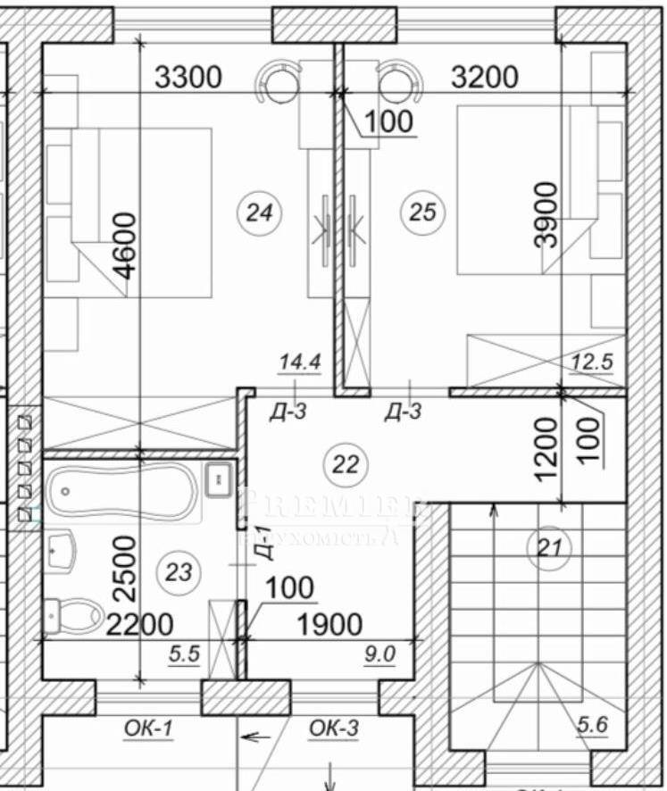
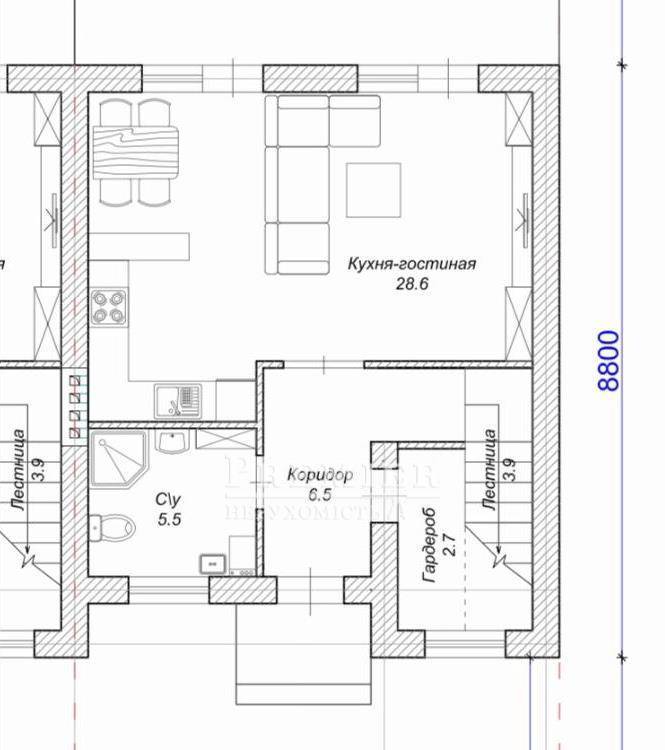
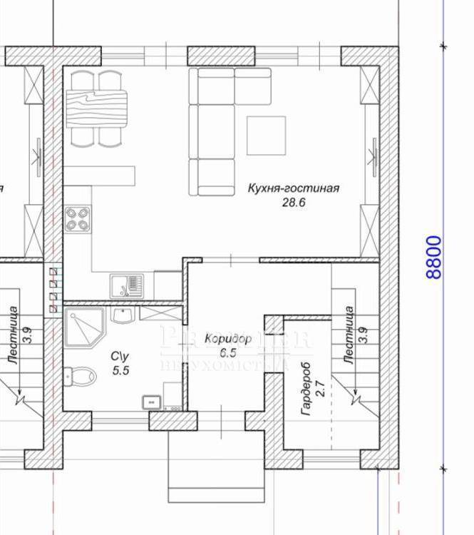
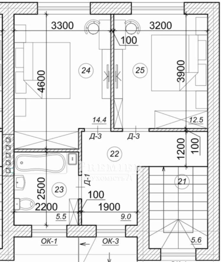
Продається Будинок в Фонтанці-2. Площа ділянки 2 сотки. На задньому дворі площа 45 м2. Загальна площа таунхауса - 94 м2. На першому поверсі санвузол - 6 м2, кухня-вітальня - 29 м2, вбиральня - 3 м2. На другому поверсі дві кімнати (15 м2 і 13 м2), санвузол - 6 м2. Всередині стан під чистову обробку. Але за бажанням покупців можна виконати внутрішні роботи (відповідно за іншу ціну). Фасадні роботи виконані всі.
63 500 USD
54 465 EUR
2 679 700 UAH
Філіявул. Космонавтів, 32
Відповідальний спеціаліст
вищої категорії Сюзанна Шуміна
вищої категорії Сюзанна Шуміна
Показати
Додаткові послуги
Схожі об`єкти
Будинок дача
Одеська. обл./Одескій район/Бурлача Балка/Центральна вул.
Цена59 900 USD
Общая70 м2
Участок10соток
Цена59 900 USD
10 соток
Будинок дача
Одеська. обл./Одескій район/Овідіополь/Карла Маркса вул.
Цена75 000 USD
Общая202 м2
Участок10соток
Цена75 000 USD
10 соток
Будинок дача
Одеська. обл./Одескій район/Красносілка/Перемоги вул.
Цена65 000 USD
Общая180 м2
Участок5соток
Цена65 000 USD
5 соток
Будинок дача
Одеська. обл./Одескій район/Сухий Лиман/Вишневий сад вул.
Цена78 000 USD
Общая180 м2
Участок18соток
Цена78 000 USD
18 соток