Продається Студія, Хантадзе пров., Чорноморськ
Одеська обл. / Чорноморськ / Хантадзе пров.
ID 172953
Загальна
33.8 м2
Поверх
6
Поверховість
8
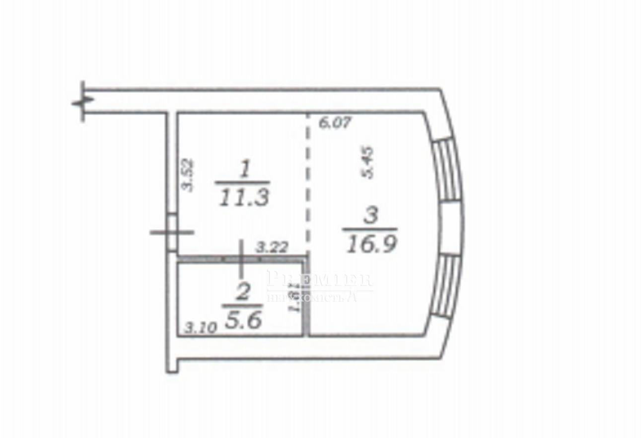
Продається студія загальна площа 33,8 м. кв. Вільне планування, санвузол суміжний 5,6 м. кв. Кімната 16,9 м. кв., кухня 11,3 м. кв. Стан від будівельників. Вже проведено електрику. Опалення центральне. Електроплити. Висота стелі 3 м. Чистий під'їзд, ліфт. Будинок зданий. У дворі зроблено паркування. Поруч море. Студія придатна як для життя цілий рік і як чудова комерційна пропозиція під оренду! Можливе розстрочення.
33 800 USD
29 134 EUR
1 424 670 UAH
Філіям. Чорноморськ вул. Данченка, 8
Відповідальний спеціаліст
вищої категорії Надія Дударова
вищої категорії Надія Дударова
Показати
Додаткові послуги