Продається Под любой вид деятельности, Липи Івана і Юрія вул. (Гайдара), м.Одеса
Одеса, Хаджибейськом, ул. Липи Івана і Юрія в (Гайдара)
ID 174454
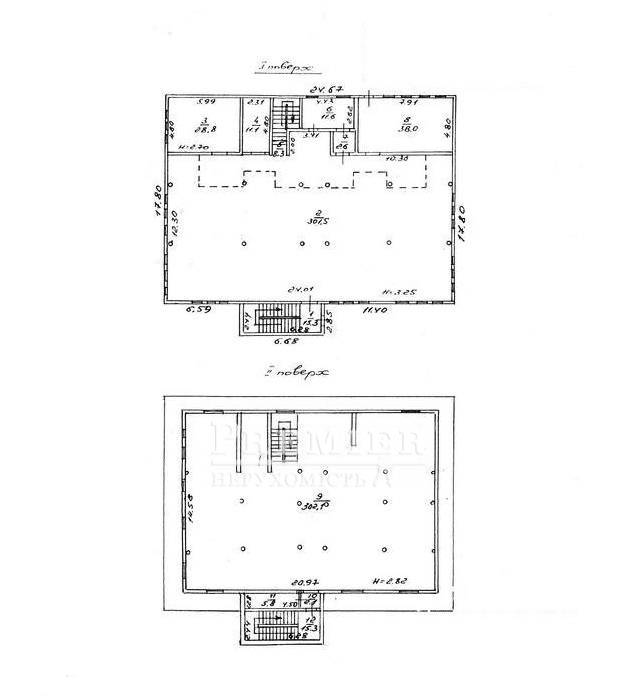
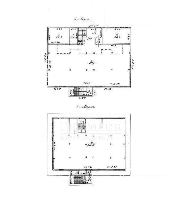
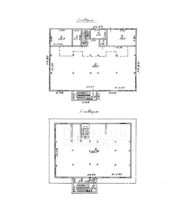
Загальна
750 м2
Поверх
2
Поверховість
2
У продажу дерев'яна, двоповерхова будівля на Івана та Юрія Липи (Гайдара). Загальна площа – 750 кв.м. Зроблено гарний, якісний ремонт. Заведені усі комунікації: газ, світло, вода, каналізація. Ідеально підійде для ресторану, магазину. Добра локація, прохідне місце.
490 000 USD
421 944 EUR
20 506 500 UAH
Філіявул. Преображенська, 49/51
Відповідальний спеціаліст
вищої категорії Оксана Курганська
вищої категорії Оксана Курганська
Показати
Додаткові послуги
Схожі об`єкти
Бар, кафе, ресторан
м.Одеса/Хаджибейський/Олексія Вадатурського вул. (Малиновського Маршала вул.)
Цена400 000 USD
Общая407 м2
Цена400 000 USD
407 м2
Складские помещения
м.Одеса/Хаджибейський/Аеропортовська вул.
Цена400 000 USD
Общая3076 м2
Цена400 000 USD
3076 м2
Под любой вид деятельности
м.Одеса/Хаджибейський/Липи Івана і Юрія вул. (Гайдара)
Цена490 000 USD
Общая750 м2
Цена490 000 USD
750 м2
Гостиница, кемпинг
м.Одеса/Хаджибейський/Столбова вул.
Цена500 000 USD
Общая1600 м2
Цена500 000 USD
1600 м2