Продається Бар, кафе, ресторан, Дюківська вул., м.Одеса
Одеса, , ул. Дюківська в
ID 175240
Загальна
128 м2
Поверх
1
Поверховість
16
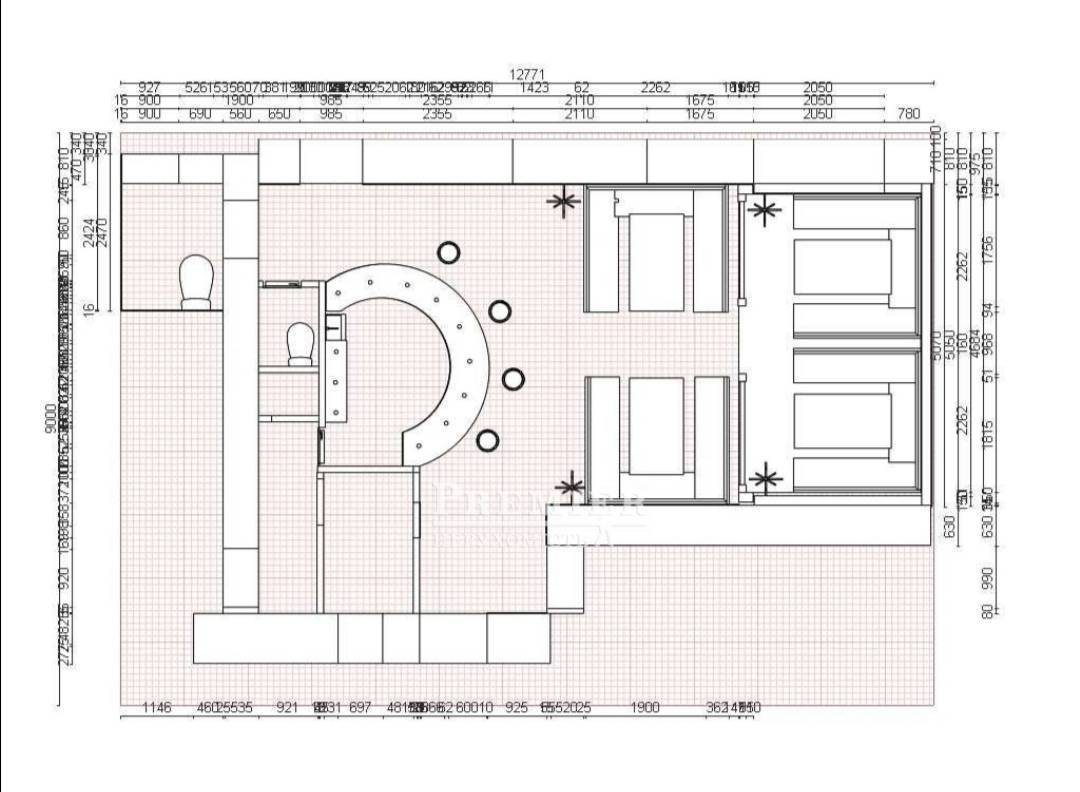
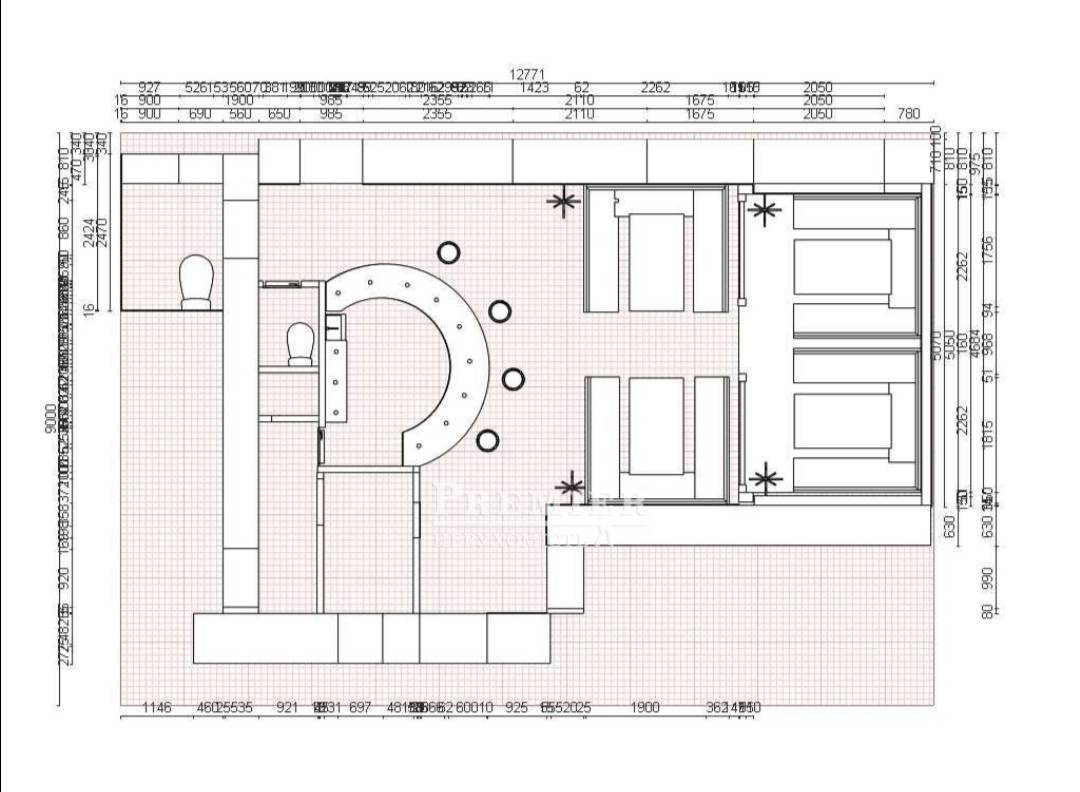
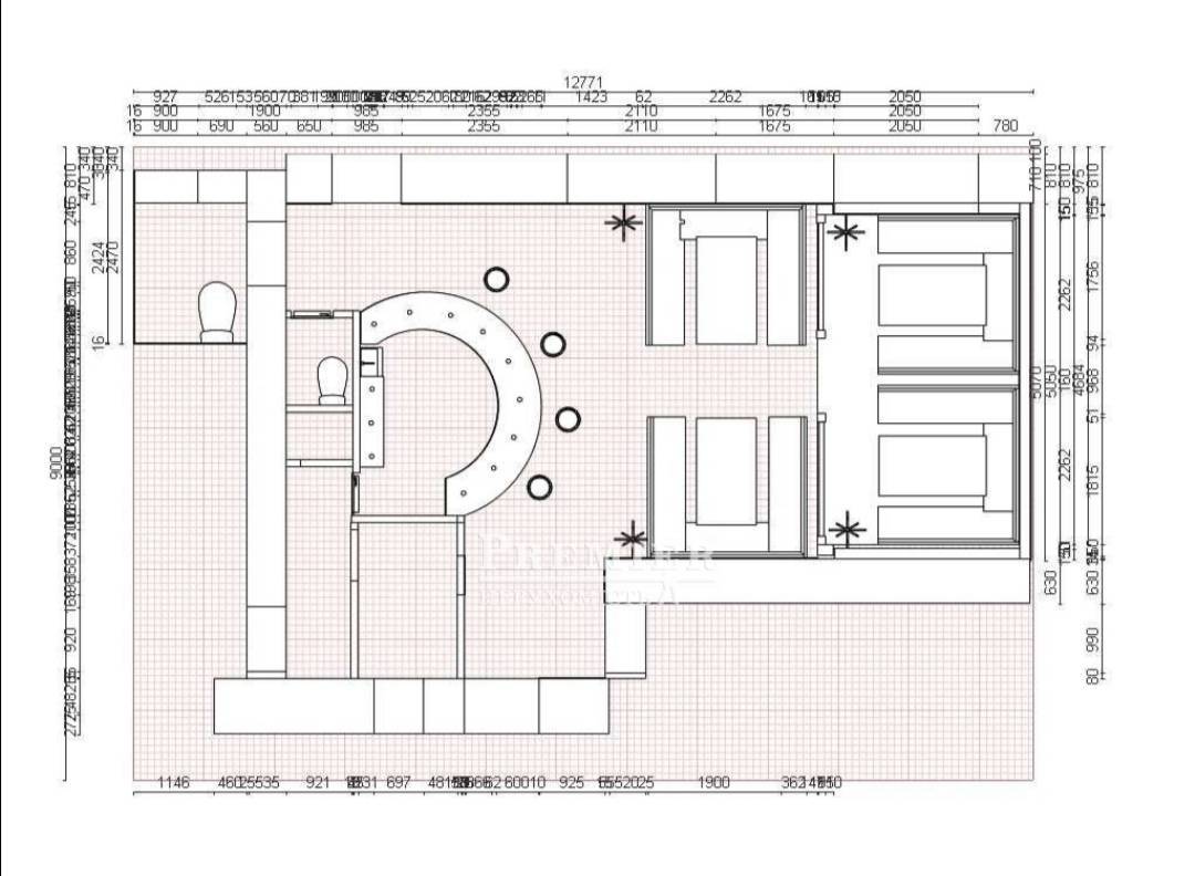
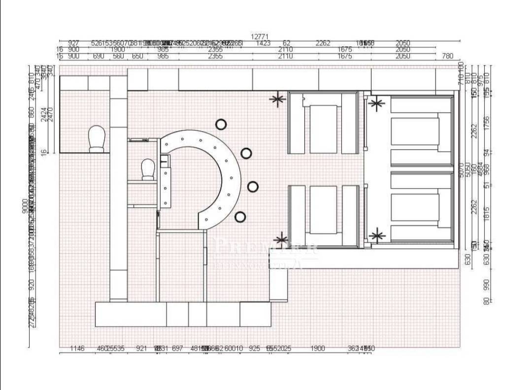
Пропонується на продаж кафе в історичному центрі Одеси. Дюковська (з боку Дідріхсона). Загальна площа 128 м2. Продається з меблями, технікою та обладнанням. Інтер'єр оздоблений червоним деревом та твердими породами дерева. Кафе має усю дозвільну документацію. Окреме введення електрики та каналізації з жировловлювачем, потужна вентиляція. Є літній майданчик із можливістю встановлення банкетного залу 90 м2.
255 000 USD
150 000 USD 298 269 EUR
128 240 EUR 11 271 000 UAH
6 630 000 UAH Філія:вул. Преображенська, 49/51
Показати
Додаткові послуги
Схожі об`єкти
Спортивно-оздоровительное
м.Одеса/центральний/Лідерсівський бульв.
Цена185 000 USD
Общая148.5 м2
Цена185 000 USD
148.5 м2
Под любой вид деятельности
м.Одеса/центральний/Театральний пров. (Чайковського пров.)
Цена160 000 USD
Общая355 м2
Цена160 000 USD
355 м2