Продається 1-комн. квартира в новобудові, Вантажний пров., м.Одеса
Одеса, Молдаванка, Вантажний пров.
ID 174479
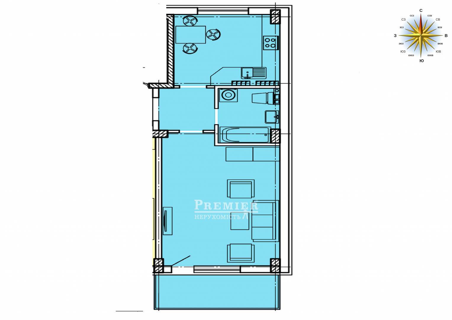
Кімнат
1
Загальна
41.5 м2
Житлова
47.5 м2
Кухня
10.3 м2
Поверх
9
Поверховість
10
Продається 1-кімнатна квартира в новому ЖК «Олексіївський». Комплекс обладнаний автономною окремо розташованою газовою котельнею та резервами запасу води.
Територія комплексу має сучасне озеленення з ландшафтним дизайном, дитячі та розвиваючі майданчики для дітей і підлітків. Забезпечено систему охорони та контроль доступу тільки для мешканців.
Будинок з покращеними плануваннями, що дозволяють максимально ефективно використовувати площу. Передбачене утеплення фасаду мінеральною ватою товщиною 10 см, а також міжквартирна шумоізоляція з повітряною прошарком.
ЖК розташований в історичному центрі міста, поруч із площею Олексіївська. Зручна транспортна розв’язка, закрита та охоронювана територія, підземний паркінг на 80 машин. Є можливість перепланування квартири.
Територія комплексу має сучасне озеленення з ландшафтним дизайном, дитячі та розвиваючі майданчики для дітей і підлітків. Забезпечено систему охорони та контроль доступу тільки для мешканців.
Будинок з покращеними плануваннями, що дозволяють максимально ефективно використовувати площу. Передбачене утеплення фасаду мінеральною ватою товщиною 10 см, а також міжквартирна шумоізоляція з повітряною прошарком.
ЖК розташований в історичному центрі міста, поруч із площею Олексіївська. Зручна транспортна розв’язка, закрита та охоронювана територія, підземний паркінг на 80 машин. Є можливість перепланування квартири.
35 000 USD
29 959 EUR
1 482 950 UAH
Філія:вул. Преображенська, 49/51
Показати
Додаткові послуги
Схожі об`єкти
Однокімнатна квартира
м.Одеса/Молдаванка/Грушевського Михайла вул.
Цена36 000 USD
Общая47 м2
Цена36 000 USD
47 м2
Однокімнатна квартира
м.Одеса/Молдаванка/Головковская вул.
Цена35 000 USD
Общая35 м2
Цена35 000 USD
35 м2
Однокімнатна квартира
м.Одеса/Молдаванка/Лазарева Адмірала вул. (Лазарева вул.)
Цена35 000 USD
Общая54 м2
Цена35 000 USD
54 м2
Однокімнатна квартира
м.Одеса/Молдаванка/Михайлівська вул.
Цена43 000 USD
Общая40 м2
Цена43 000 USD
40 м2