Продається Студія, Успенська вул., м.Одеса
Одеса, Центральном, ул. Успенська в
ID 178441
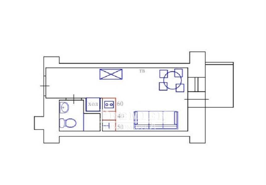
Загальна
20 м2
Поверх
3
Поверховість
3
У продажу студія з ремонтом у районі парку Шевченка. Квартира повністю готова до заселення: виконаний сучасний ремонт з якісних матеріалів, встановлена сантехніка та меблі, є кондиціонер. Санвузол фанерований, встановлений бойлер. Квартира дуже світла з балконом на фасад. Гарний будинок, під'їзд з мармуровими сходами. Найвдаліше розташування: парк Шевченка, море, центр міста – все у кроковій доступності. Відмінний варіант для молоді чи рентабельного орендного бізнесу.
36 000 USD
34 000 USD 42 456 EUR
28 830 EUR 1 585 800 UAH
1 497 700 UAH Філіявул. Преображенська, 49/51
Відповідальний спеціаліст
вищої категорії Людмила Шевченко
вищої категорії Людмила Шевченко
Показати
Додаткові послуги