Продається 2кімнатна квартира, Ванний пров., м.Одеса
Одеса, Приморський, Ванний пров.
ID 182723
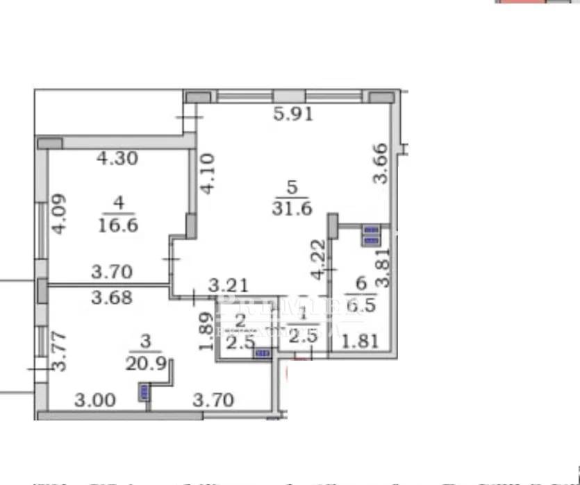
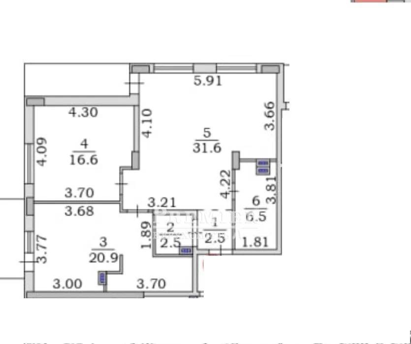
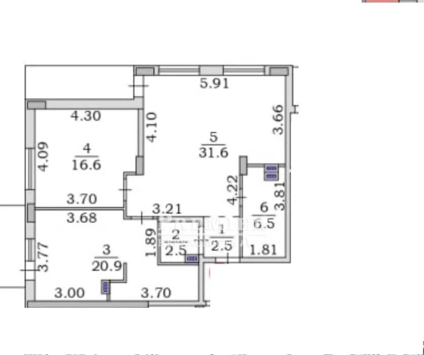
Кімнат
2
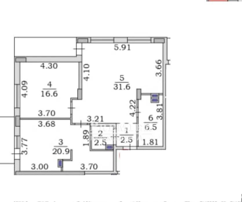
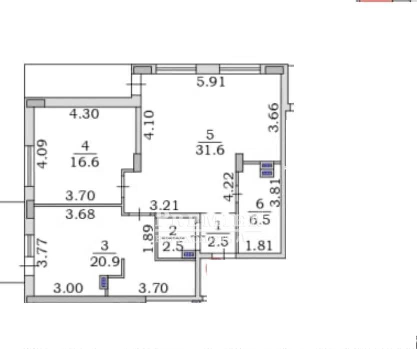
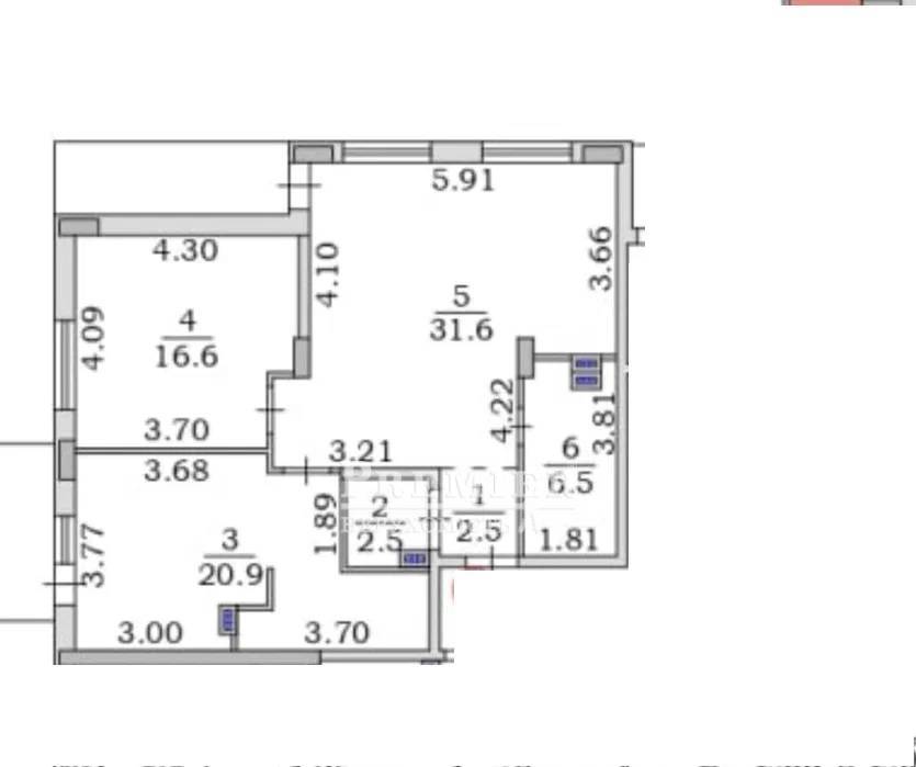
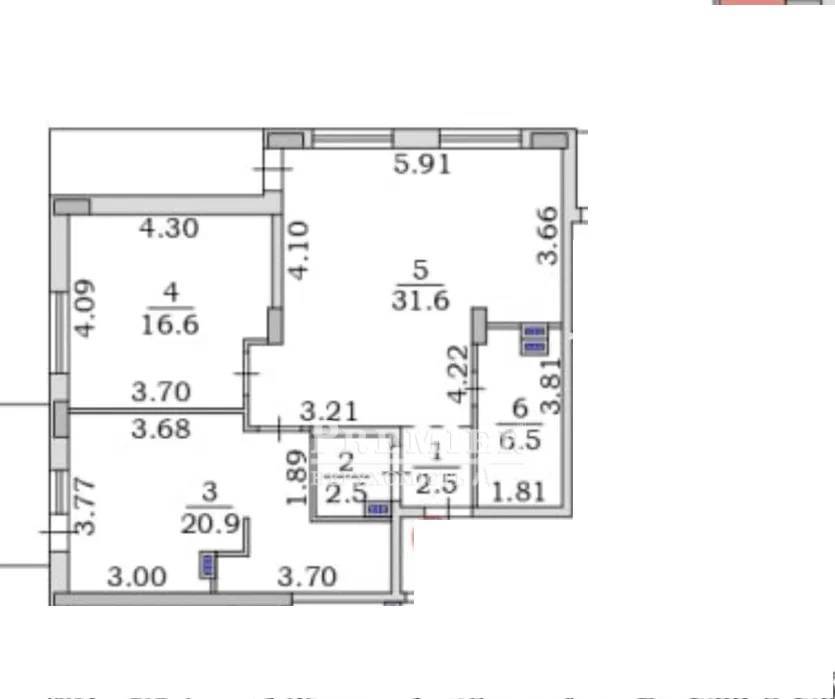
Загальна
84 м2
Житлова
40 м2
Кухня
21 м2
Поверх
4
Поверховість
12
У продажу двокімнатна квартира на 10 станції Великого Фонтану. Ергономічне планування гарантує комфортне життя. Дві окремі спальні та дуже простора кухня студія. Є балкон. Новий зданий будинок. Є підземний паркінг. У десяти хвилинах ходьби: два парки, п'ять продуктових магазинів, пляжі дві автобусні зупинки та дві зупинки трамваю. За кілька хвилин можна доїхати до шкіл, дитячих садків, медичних центрів, банків та іншої інфраструктури, необхідної для комфортного життя та відпочинку. Телефонуйте, зустрінемося на показі.
120 000 USD
101 946 EUR
5 082 000 UAH
ФіліяАртура Савельєва вул.
(Черняховского) 11
(Черняховского) 11
Відповідальний спеціаліст Анна Локшина
Показати
Додаткові послуги
Прибутковість об'єкту від оренди*
від22948грн/місяць
*Середня ціна при здачі об'єкта в оренду в Приморський районі
Зміна цін на двокімнатні квартири в Приморський районі
Схожі об`єкти
Двокімнатна квартира
м.Одеса/Приморський/Гагарінське плато
Цена144 500 USD
Общая95 м2
Цена144 500 USD
95 м2
Двокімнатна квартира
м.Одеса/Приморський/Балтиморська (Посмітного) вул.
Цена100 000 USD
Общая73 м2
Цена100 000 USD
73 м2
Двокімнатна квартира
м.Одеса/Приморський/Гагарінське плато
Цена150 000 USD
Общая118 м2
Цена150 000 USD
118 м2
2-комн. квартира в новобудові
м.Одеса/Приморський/Гагарінське плато
Цена85 000 USD
Общая86 м2
Цена85 000 USD
86 м2