Продається Будинок дача, Овідіопольська вул., Молодіжне
Одеська обл. / Молодіжне / ул. Овідіопольська в
ID 185685
Кімнат
4
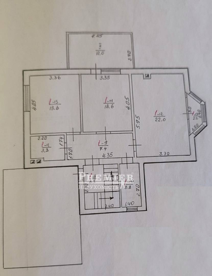
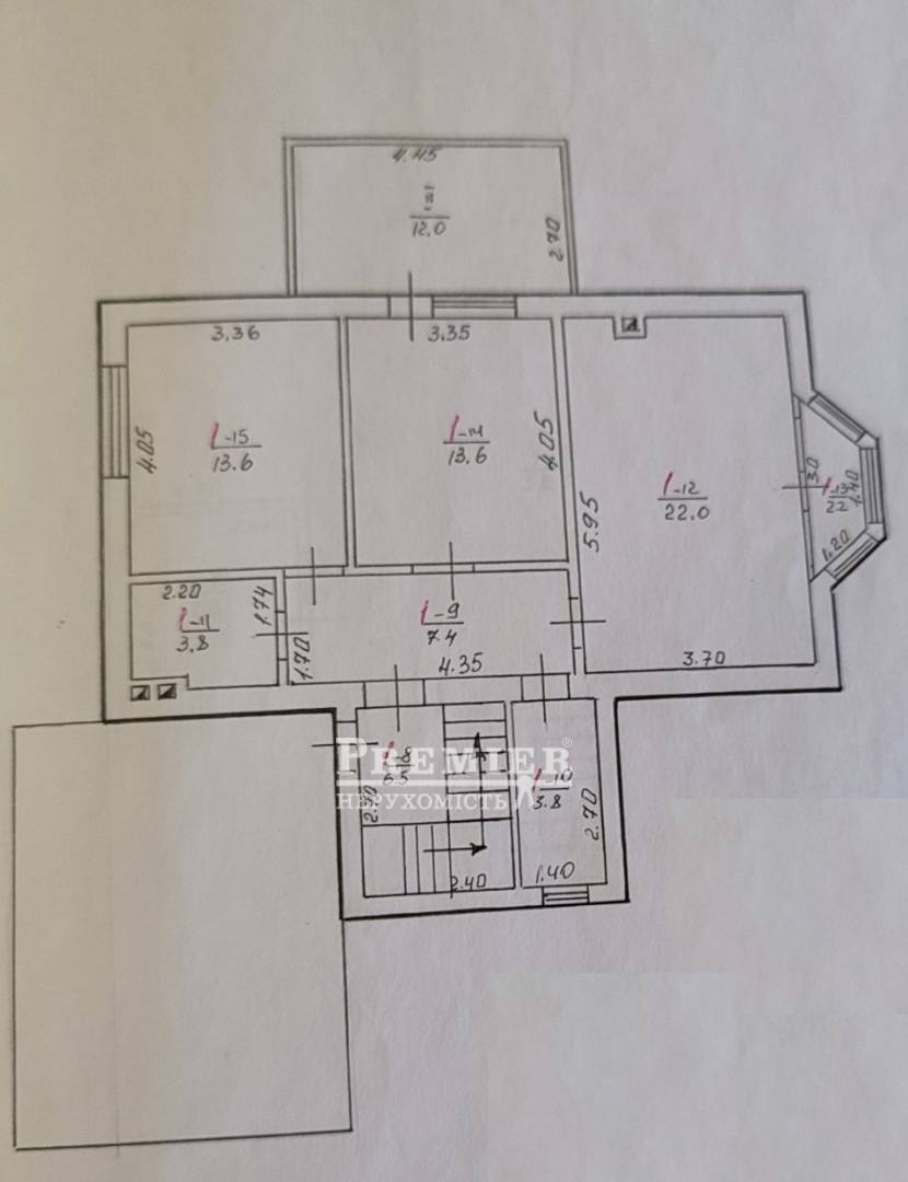
Загальна
220 м2
Житлова
80 м2
Кухня
16 м2
Поверховість
2
Ділянка
2.5 сотки
Газ
Природный
Вода
Водопровод
У продажу двоповерховий будинок у м. Чорноморськ, район Нове Бугове. Загальна площа будинку 220 м. кв. У будинку 3 спальних кімнати та зал з каміном, два санвузли на першому та другому поверсі, два балкони. Простора кухня. Також є веранда та підсобні приміщення, великий підвал, котельня. Будинок розташований на ділянці 2,5 сотки. На ділянці також є гараж. Хороший варіант. Телефонуйте.
120 000 USD
80 000 USD 142 212 EUR
67 505 EUR 5 316 000 UAH
3 544 000 UAH Філіям. Чорноморськ вул. Данченка, 8
Відповідальний спеціаліст
вищої категорії Надія Дударова
вищої категорії Надія Дударова
Показати
Додаткові послуги
Схожі об`єкти
Будинок дача
Одеська. обл./Одескій район/Бурлача Балка/Центральна вул.
Цена59 900 USD
Общая70 м2
Участок10соток
Цена59 900 USD
10 соток
Будинок дача
Одеська. обл./Одескій район/Красносілка/Перемоги вул.
Цена65 000 USD
Общая180 м2
Участок5соток
Цена65 000 USD
5 соток
Будинок дача
Одеська. обл./Одескій район/Сухий Лиман/Вишневий сад вул.
Цена78 000 USD
Общая180 м2
Участок18соток
Цена78 000 USD
18 соток
Будинок дача
Одеська. обл./Одескій район/червоний Розселенець/Чкалова вул.
Цена48 000 USD
Общая130 м2
Участок24сотки
Цена48 000 USD
24 сотки