Продається 1кімнатна квартира, Набережна вул., Чорноморськ
Одеська обл. / Чорноморськ / ул. Набережна в
ID 187966
Кімнат
1
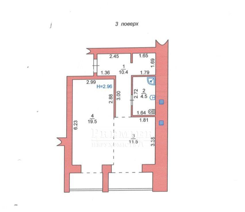
Загальна
52.1 м2
Житлова
20 м2
Кухня
12 м2
Поверх
3
Поверховість
3
У продажу однокімнатна квартира загальною площею 52,1 м. кв. в елітному клубному будинку з видом на море. До моря три хвилини ходьби. Простора, світла, повністю укомплектована меблями та технікою. Виконано якісний ремонт, що не потребує додаткових вкладень. Хороша пропозиція як для життя, так і для бізнесу. Телефонуйте
68 000 USD
60 000 USD 79 168 EUR
51 536 EUR 3 022 600 UAH
2 667 000 UAH Філіям. Чорноморськ вул. Данченка, 8
Відповідальний спеціаліст Маріана Мардірос
Показати
Додаткові послуги
Схожі об`єкти
Однокімнатна квартира
Одеська. обл./Одескій район/Лиманка (Мизикевича)/Будівельна вул.
Цена48 000 USD
Общая47 м2
Цена48 000 USD
47 м2
Однокімнатна квартира
Чорноморськ/Парусна (Героїв Сталінграда) вул.
Цена48 000 USD
Общая54 м2
Цена48 000 USD
54 м2
Цена42 000 USD
Общая36.1 м2
Цена42 000 USD
36.1 м2