Продається 1-комн. квартира в новобудові, Вільямса Ак. (ЖК Акварель) вул., м.Одеса
ID 189678
Кімнат
1
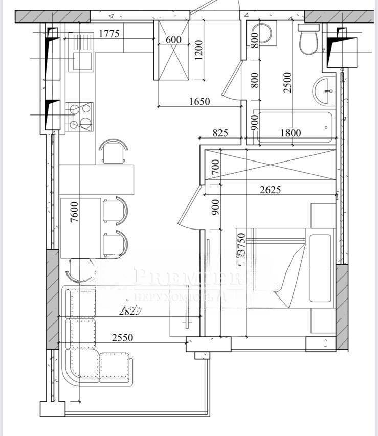
Загальна
38 м2
Житлова
15 м2
Кухня
12 м2
Поверх
15
Поверховість
17
Пропонується до продажу 1-кімнатна квартира в новому будинку на Таїрова. Квартира дивиться на Ільфа Петрова у бік моря (східна сторона). У квартирі є панорамні вікна. Гарний будинок із закритою територією, дитячі майданчики та зонами відпочинку. Дуже вигідний варіант у новому будинку. Телефонуйте, купіть за вигідною ціною!
30 000 USD
25 784 EUR
1 275 000 UAH
ФіліяЄвгена Чикаленка, 58а
(Академіка Вільямса)
(Академіка Вільямса)
Відповідальний спеціаліст Галина Терзієва
Показати
Додаткові послуги
Прибутковість об'єкту від оренди*
від7915грн/місяць
*Середня ціна при здачі об'єкта в оренду в Київськом районі
Зміна цін на 1-комн. квартира в новобудові в Київськом районі
Схожі об`єкти
Однокімнатна квартира
м.Одеса/Київський/Євгена Чикаленка (Вільямса Академіка) вул.
Цена23 000 USD
Общая25 м2
Цена23 000 USD
25 м2
1-комн. квартира в новобудові
г.Одесса/Киевский/Архитекторская ул. (ЖК 15 Жемчужина)
Цена33 600 USD
Общая42 м2
Цена33 600 USD
42 м2
Однокімнатна квартира
м.Одеса/Київський/Дача Ковалевського вул.
Цена27 000 USD
Общая31 м2
Цена27 000 USD
31 м2