Продається 3-комн. квартира в новобудові, Вільямса Ак. (ЖК Таїровське Сади) вул., м.Одеса
ID 189676
Кімнат
3
Загальна
107 м2
Житлова
69 м2
Кухня
18 м2
Поверх
21
Поверховість
25
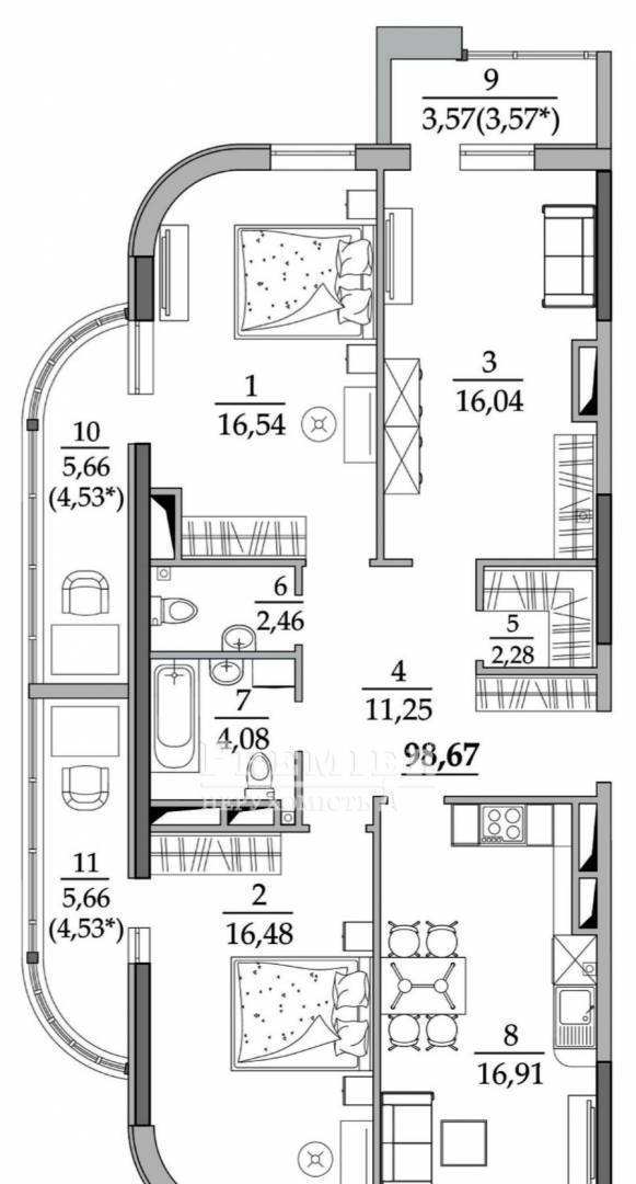
У продажу 3-кімнатна квартира в новому зданому будинку на Таїрова. Розташована на видовому поверсі з видом на море. Квартира простора, світла, 3-х стороння Загальна площа 107 кв. Квартира зручного планування з трьома балконами, гардеробною та двома санвузлами. Окремі кімнати, велика кухня. Є можливість переробити планування під свій проект. Перспективний район. Море в пішій доступності
89 999 USD
85 000 USD 105 553 EUR
72 475 EUR 3 775 458 UAH
3 565 750 UAH Філіявул. Космонавтів, 32
Відповідальний спеціаліст
вищої категорії Ольга Свєркунова
вищої категорії Ольга Свєркунова
Показати
Додаткові послуги
Прибутковість об'єкту від оренди*
від12000грн/місяць
*Середня ціна при здачі об'єкта в оренду в Київськом районі
Зміна цін на 3-комн. квартира в новобудові в Київськом районі
Схожі об`єкти
Трикімнатна квартира
м.Одеса/Київський/Архітекторська вул.
Цена67 000 USD
Общая70 м2
Цена67 000 USD
70 м2
Цена80 000 USD
Общая127 м2
Цена80 000 USD
127 м2
3-комн. квартира в новобудові
м.Одеса/Київський/Жукова М. просп. (ЖК Веселковий)
Цена69 500 USD
Общая83 м2
Цена69 500 USD
83 м2