Продається 1кімнатна квартира, Прохоровская вул., м.Одеса
Одеса, Молдаванка, ул. Прохоровская в
ID 191434
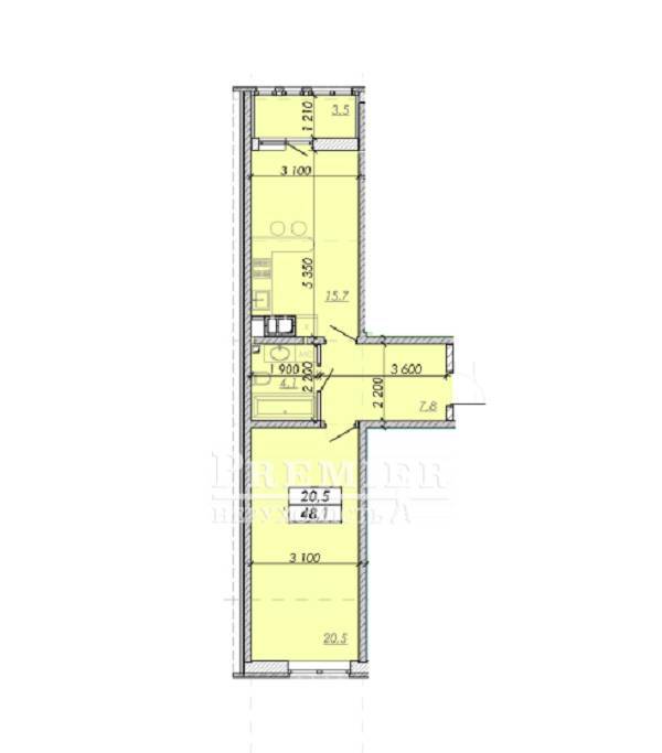
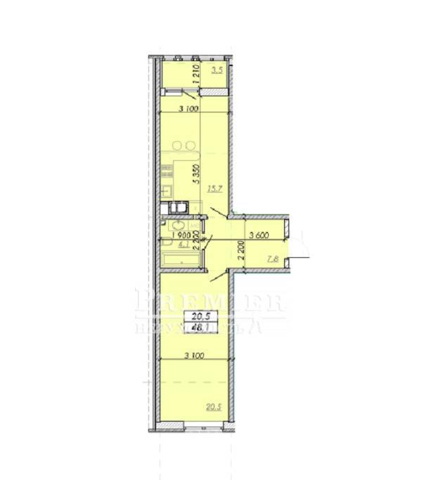
Кімнат
1
Загальна
53 м2
Житлова
27 м2
Кухня
16 м2
Поверх
12
Поверховість
17
У продажу простора двостороння квартира у новому зданому житловому комплексі у центральній частині Одеси. Кухня 16м із виходом на засклену лоджію. Гарний вид на місто. Окрема спальня 20м. Встановлено швидкісні ліфти. Цілодобова охорона. Новий житловий комплекс із закритою територією та паркінгом. Будинок зданий і активно заселяється. Вдале розташування: поряд центр міста, транспортна розв'язка у будь-який район, супермаркети. Телефонуйте – чудовий варіант для комфортного життя в Одесі.
53 000 USD
51 000 USD 61 919 EUR
43 654 EUR 2 245 610 UAH
2 160 870 UAH Філія:вул. Преображенська, 49/51
Показати
Додаткові послуги
Схожі об`єкти
Однокімнатна квартира
м.Одеса/Молдаванка/Грушевського Михайла вул.
Цена36 000 USD
Общая47 м2
Цена36 000 USD
47 м2
Однокімнатна квартира
м.Одеса/Молдаванка/Михайлівська вул.
Цена43 000 USD
Общая40 м2
Цена43 000 USD
40 м2
Однокімнатна квартира
м.Одеса/Молдаванка/Вороного Миколи вул.
Цена37 000 USD
Общая41 м2
Цена37 000 USD
41 м2
1-комн. квартира в новобудові
м.Одеса/Молдаванка/Балківська вул.
Цена42 000 USD
Общая32 м2
Цена42 000 USD
32 м2