Продається 2кімнатна квартира, Елисаветинская (Щепкіна) вул., м.Одеса
Одеса, Центральном, ул. Елисаветинская (Щепкіна) в
ID 191187
Кімнат
2
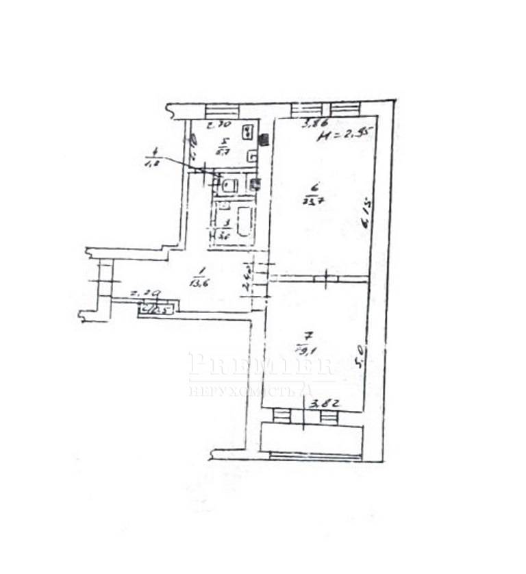
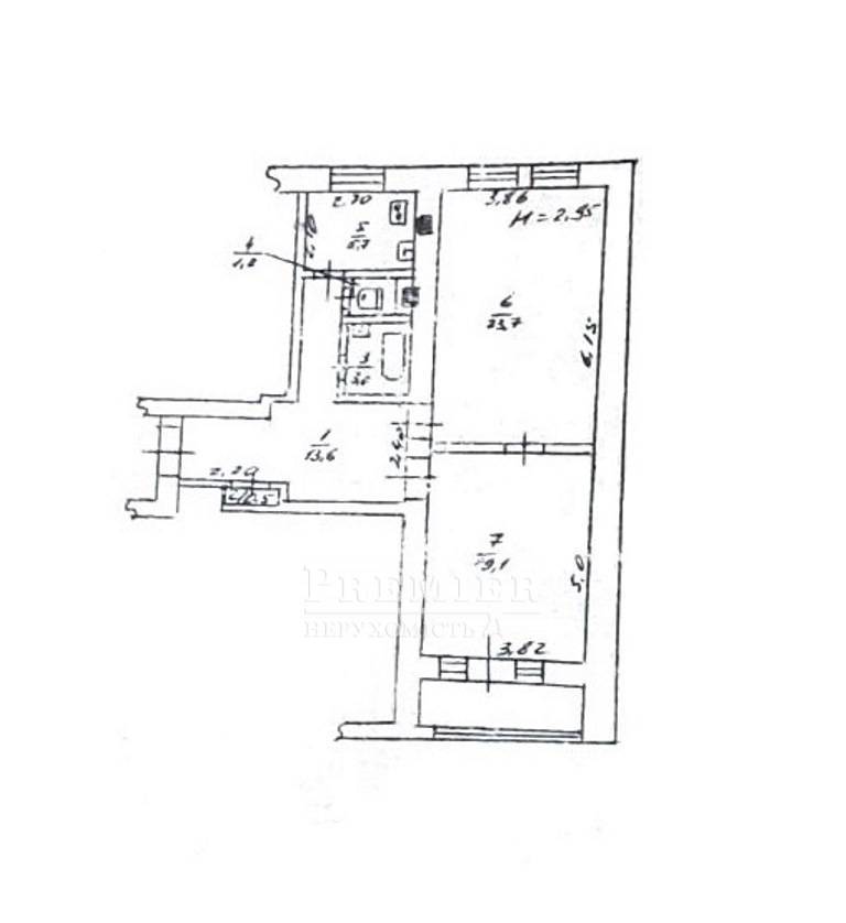
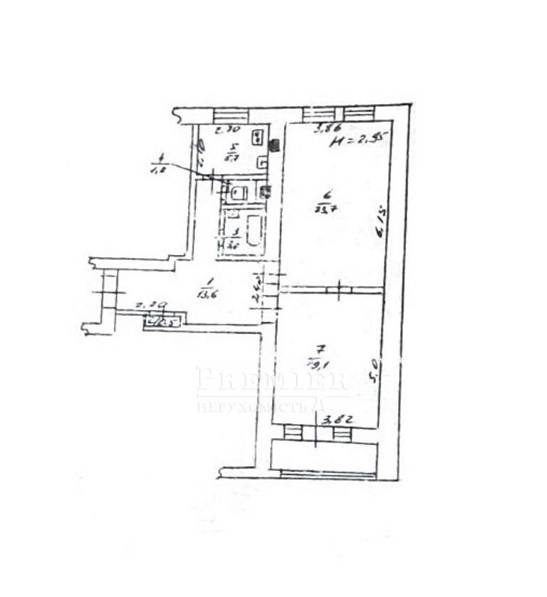
Загальна
69 м2
Житлова
44 м2
Кухня
9 м2
Поверх
4
Поверховість
5
У продажу чудова 2-кімнатна квартира площею 69 м. кв. у самому серці Одеси на вул. Єлисаветинській. Дві великі окремі кімнати, 24 кв. м. та 19 м. кв., просторий коридор 14 м. кв. з двома вбудованими коморами. Квартира двостороння, вікна виходять у двір, здалеку видно край моря і вул. Єлисаветинську. Великий засклений балкон. Сталінський проєкт, закритий двір, чиста та доглянута парадна.
85 000 USD
73 772 EUR
3 769 750 UAH
ФіліяАртура Савельєва вул.
(Черняховского) 11
(Черняховского) 11
Відповідальний спеціаліст Тетяна Тищенко
Показати
Додаткові послуги
Схожі об`єкти
Двокімнатна квартира
м.Одеса/Центр/Дерибасівська вул.
Цена100 000 USD
Общая56 м2
Цена100 000 USD
56 м2
Двокімнатна квартира
м.Одеса/Центр/Дерибасівська вул.
Цена100 000 USD
Общая50 м2
Цена100 000 USD
50 м2