Продається Будинок дача, Демченко Марії вул., м.Одеса
Одеса, , ул. Демченко Марії в
ID 193802
Кімнат
3
Загальна
130 м2
Житлова
45 м2
Кухня
40 м2
Поверховість
2
Ділянка
3 сотки
Вода
Водопровод
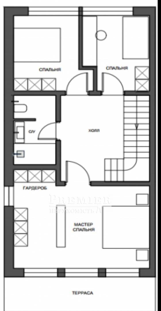
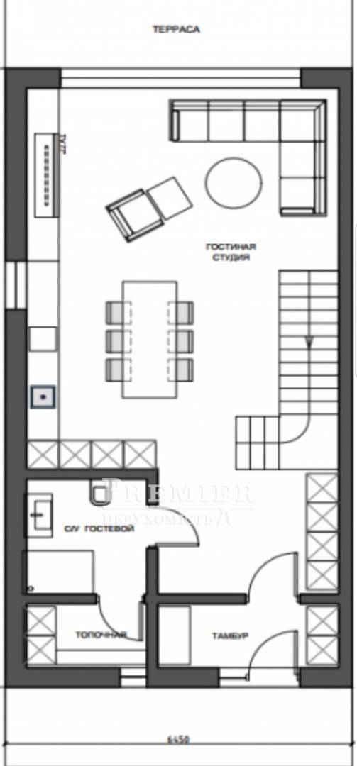
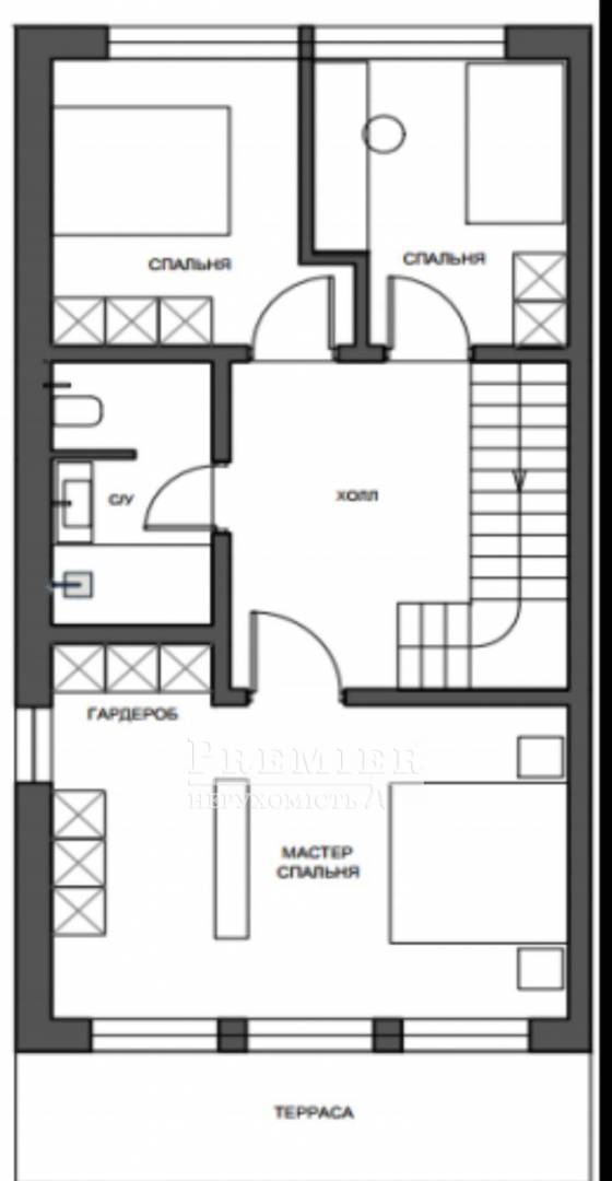
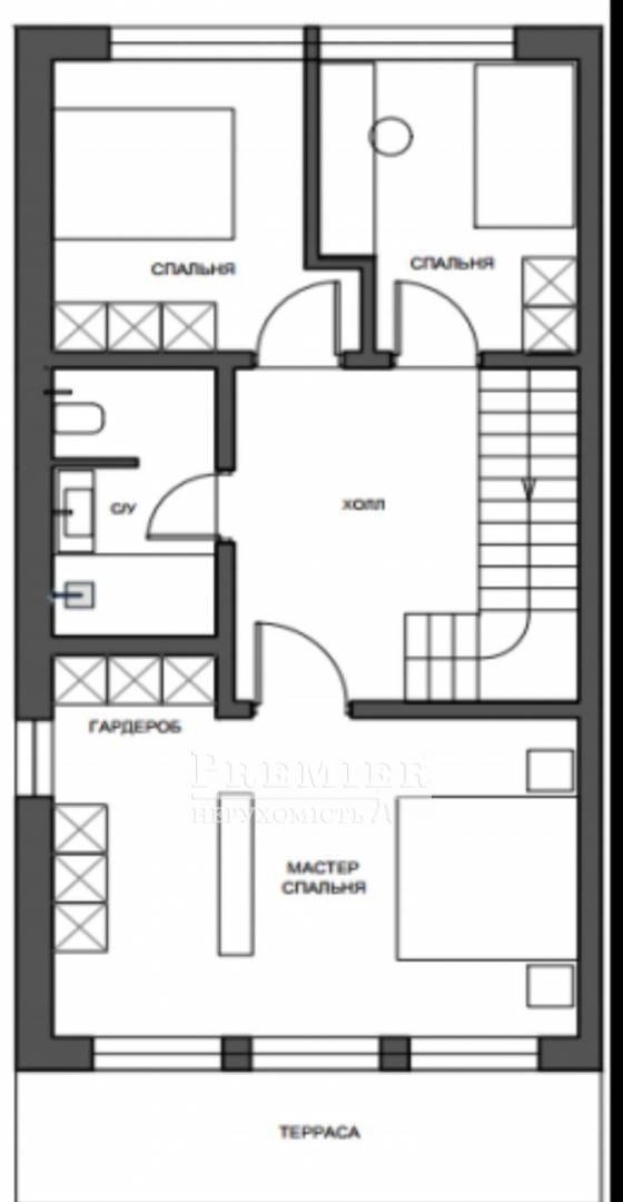
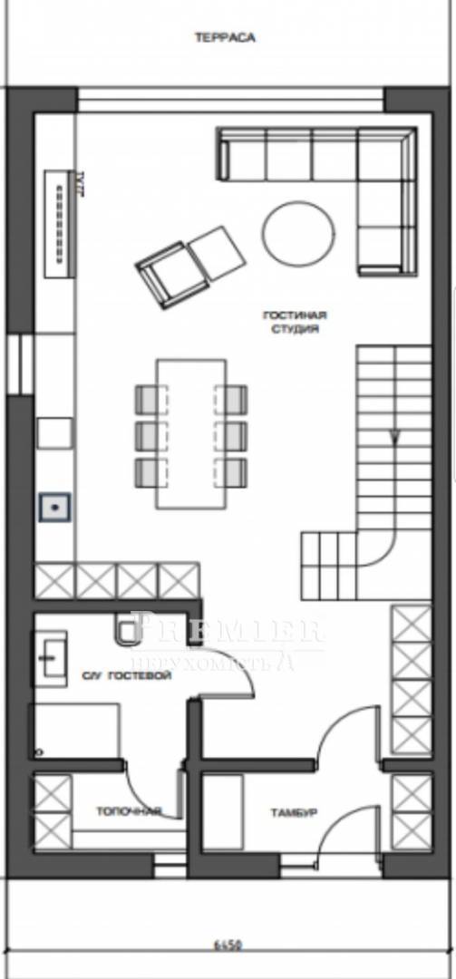
Продам в Одесі будинок (дуплекс), район Дачі Ковалевського. 2х поверховий, цегла/мінвата/фасад травентин термодерево. Перекриття 1го /2го та плаского даху монолінта плита, потужний фундамент з гідроізоляцією та утеплений. Загальна площа 130 м2, житлова 45 м2, кухня-студія 40 м2 з виходом на терасу і зону барбекю. Три санвузла, гардеробна, топочна. Дві спальні і третя мастер спальня з терасою. Вікна енергозберігаючі з мультифункціональним склопакетом.Висота стелі першого поверху 3.20 м, а другого 3 м. Індивідуальне газове опалення, електролічильник, лічильник водопостачання, міська каналізація. Ділянка 3 сотки з ГосАктом. Крита парковка на 2 авто.
170 000 USD
146 019 EUR
7 556 500 UAH
Філіявул. Ак. Корольова, 33
Відповідальний спеціаліст
вищої категорії Володимир Нечипоренко
вищої категорії Володимир Нечипоренко
Показати
Додаткові послуги
Схожі об`єкти
Будинок дача
м.Одеса/Київський/Фонтанська дорога вул.
Цена200 000 USD
Общая280 м2
Участок1сотка
Цена200 000 USD
1 сотка
Будинок дача
м.Одеса/Київський/Федорова Художника вул.
Цена150 000 USD
Общая75 м2
Участок10соток
Цена150 000 USD
10 соток
Будинок дача
м.Одеса/Київський/Тульська (Дерибасівка) вул.
Цена187 000 USD
Общая186 м2
Участок5.23соток
Цена187 000 USD
5.23 соток
Будинок дача
м.Одеса/Київський/Саксаганського вул.
Цена150 000 USD
Общая68 м2
Участок10соток
Цена150 000 USD
10 соток