Продається Будинок дача, Набережна вул., Калинівка, Дорожник садовий масив
Одеська обл. / Калинівка / ул. Набережна в
ID 194024
Кімнат
4
Загальна
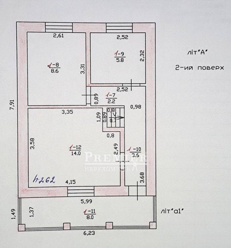
127 м2
Поверховість
2
Ділянка
6 соток
Вода
Скважина
Продаж будинку на Тилігульському лимані. На ділянці 6 соток знаходиться 2 поверховий кам'яний будинок площею 129 кв.м, стеля/підлога – залізобетонні плити перекриття, підвал, гараж, огорожа, плодовий сад, водопровід, світло, колодязь, великі ємності під воду. 10 хвилин до лиману. Розташований на території садівничого кооперативу Дорожник, Калинівської сільської ради, Лиманського (Одеського) району. Сам масив знаходиться біля Тилигульського лиману на піднесеному плато (60м. над рівнем моря), оточений лісопосадкою, сосновим бором та лиманом.
16 000 USD
13 732 EUR
697 600 UAH
Філіявул. Сахарова 24
Відповідальний спеціаліст
вищої категорії Наталія Кухтінова
вищої категорії Наталія Кухтінова
Показати
Додаткові послуги
Схожі об`єкти
Будинок дача
Одеська. обл./Одескій район/Яськи/Космонавтів вул.
Цена14 000 USD
Участок21сотка
Цена14 000 USD
21 сотка
Будинок дача
Одеська. обл./Одескій район/Березань/Степова вул.
Цена12 000 USD
Общая120 м2
Участок25соток
Цена12 000 USD
25 соток
Будинок дача
Одеська. обл./Одескій район/Березань/Виноградна вул.
Цена12 000 USD
Общая120 м2
Участок25соток
Цена12 000 USD
25 соток