Продається 3-комн. квартира в новобудові, Спрейса вул., Авангард
Одеська обл. / Авангард / ул. Спрейса в
ID 194083
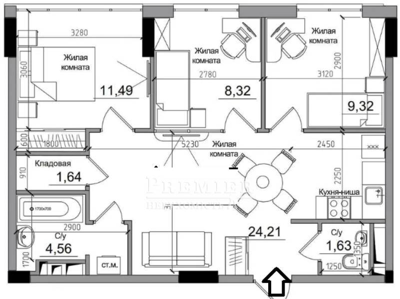
Кімнат
3
Загальна
61.17 м2
Житлова
29.13 м2
Кухня
24.21 м2
Поверх
9
Поверховість
12
Продається 3-кімнатна квартира в ARTVILLE, навпроти 7 км. Будинок зданий в 2023 році. Квартира з ремонтом, 9 поверх. Всі вікна квартири виходять на східну сторону - на місто. У кожній кімнаті встановлені кондиціонери (усього три), два санвузла, кухонний гарнітур з електричною варильною панеллю. Броньовані вхідні двері, натяжні стелі, ламінат і плитка, сантехніка у ванній, радіатори і бойлер, розетки, вимикачі, світильники, пожежна сигналізація. Закрита територія, будинок під охороною, відеоспостереження. Для прогулянок, занять спортом - сучасний капсульній парк. Тут вже є дитячий майданчик, вуличні тренажери, безкоштовна зона барбекю, майданчик для вигулу домашніх тварин. На території паркувальні місця та стоянка для автомобілів. Поруч у пішій доступності, ринок 7км, Епіцентр, Таврія, Аквапарк. До центру Одеси 10 хвилин на машині, 20 хвилин на маршрутці.
65 000 USD
56 278 EUR
2 864 550 UAH
Філіявул. Ак. Корольова, 65
Відповідальний спеціаліст
вищої категорії Олександр Пальчик
вищої категорії Олександр Пальчик
Показати
Додаткові послуги
Схожі об`єкти
Трикімнатна квартира
Одеська. обл./Одескій район/пгт. Таїрове/40-рччя Перемоги вул.
Цена55 000 USD
Общая130.2 м2
Цена55 000 USD
130.2 м2
Трикімнатна квартира
Одеська. обл./Одескій район/Червоний Хутір, с. Ліманка (Ильичевск)/
Цена68 000 USD
Общая85 м2
Цена68 000 USD
85 м2
Трикімнатна квартира
Чорноморськ/Парусна (Героїв Сталінграда) вул.
Цена50 000 USD
Общая96.7 м2
Цена50 000 USD
96.7 м2