Продається 1-комн. квартира в новобудові, Радісна вул., м.Одеса
Одеса, Хаджибейськом, ул. Радісна в
ID 198017
Кімнат
1
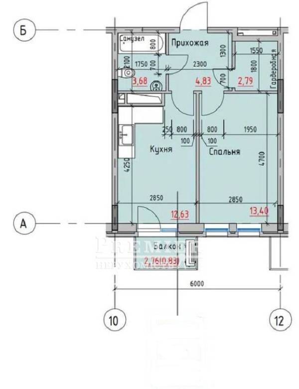
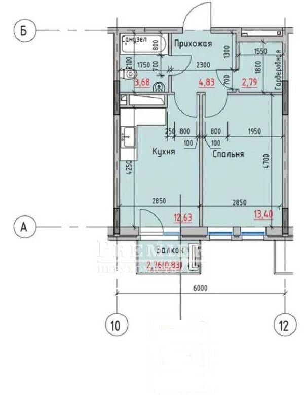
Загальна
38 м2
Житлова
13.5 м2
Кухня
12.6 м2
Поверх
4
Поверховість
12
Продам 1-кімнатну квартиру в новому будинку Малиновського району. Загальна площа квартири 38,2 кв.м., кімната 13.5 кв.м., кухня 12,6 кв.м. Із кухні вихід на балкон 2,8 кв.м. Санвузол поєднаний. Є вбиральня. Висота стелі 2,85 м. У будинку покрівельна котельня, підземний паркінг, консьєрж. У дворі дитячий та спортивний майданчики.
33 000 USD
28 137 EUR
1 384 350 UAH
Філіявул. Ак. Корольова, 33
Відповідальний спеціаліст Ірина Семенда
Показати
Додаткові послуги
Прибутковість об'єкту від оренди*
від7569грн/місяць
*Середня ціна при здачі об'єкта в оренду в Хаджибейськом районі
Зміна цін на 1-комн. квартира в новобудові в Хаджибейськом районі
Схожі об`єкти
Однокімнатна квартира
м.Одеса/Хаджибейський/Кропивницького вул.
Цена36 000 USD
Общая40 м2
Цена36 000 USD
40 м2
1-комн. квартира в новобудові
м.Одеса/Хаджибейський/Олексія Вадатурського вул. (Малиновського Маршала вул.)
Цена35 000 USD
Общая45 м2
Цена35 000 USD
45 м2
Однокімнатна квартира
м.Одеса/Хаджибейський/Кордонная вул.
Цена28 000 USD
Общая36 м2
Цена28 000 USD
36 м2
Однокімнатна квартира
м.Одеса/Хаджибейський/Олексія Вадатурського вул. (Малиновського Маршала вул.)
Цена39 000 USD
Общая51 м2
Цена39 000 USD
51 м2