Продається Под любой вид деятельности, Князя Володимира Великого просп. (Добровольського), м.Одеса
Одеса, Пересипськом, просп. Князя Володимира Великого (Добровольського)
ID 199487
Загальна
1548.6 м2
Поверх
1
Поверховість
2
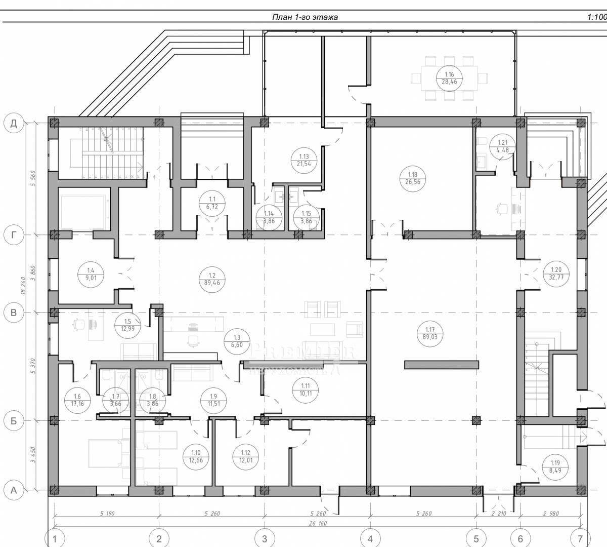
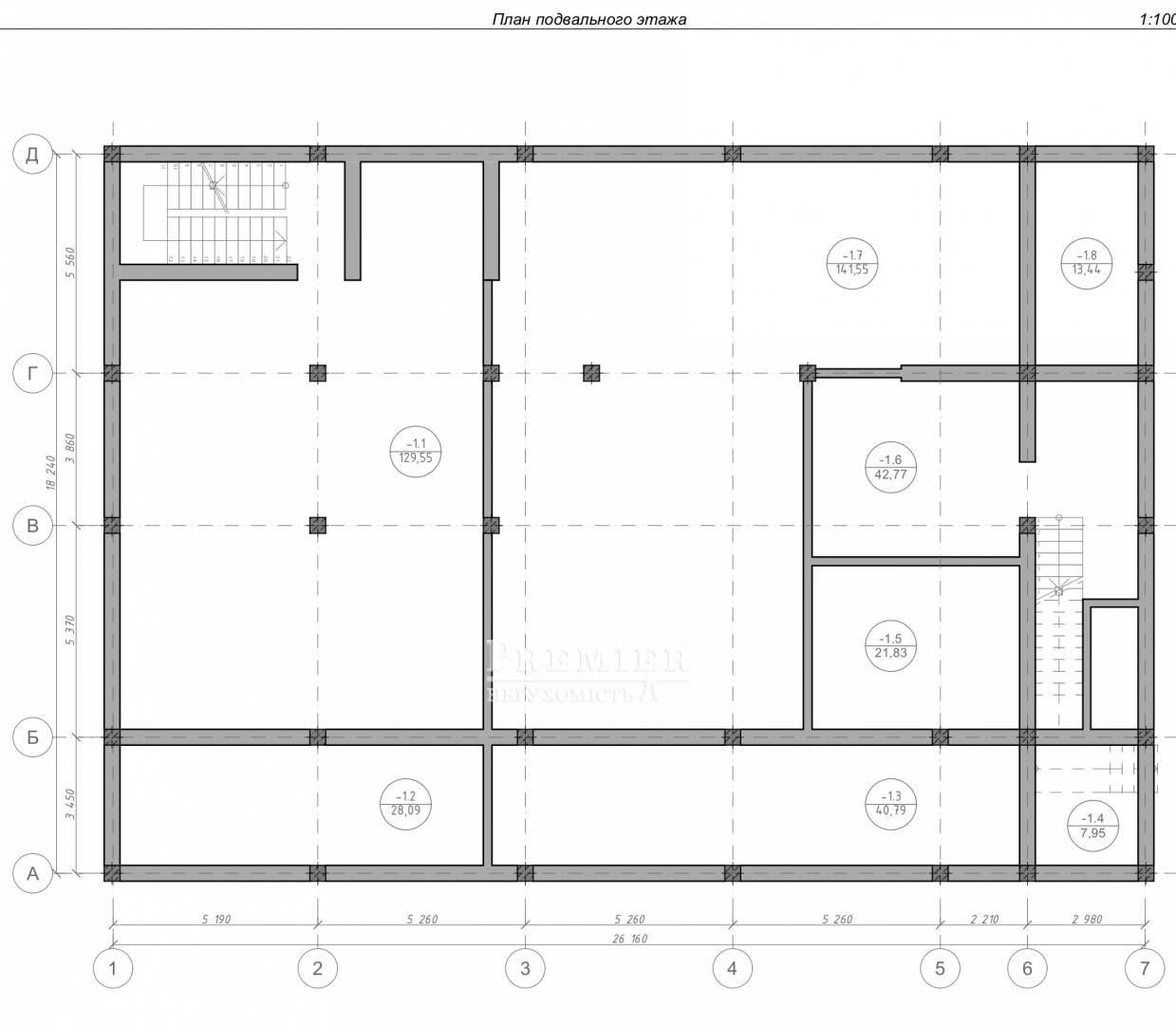
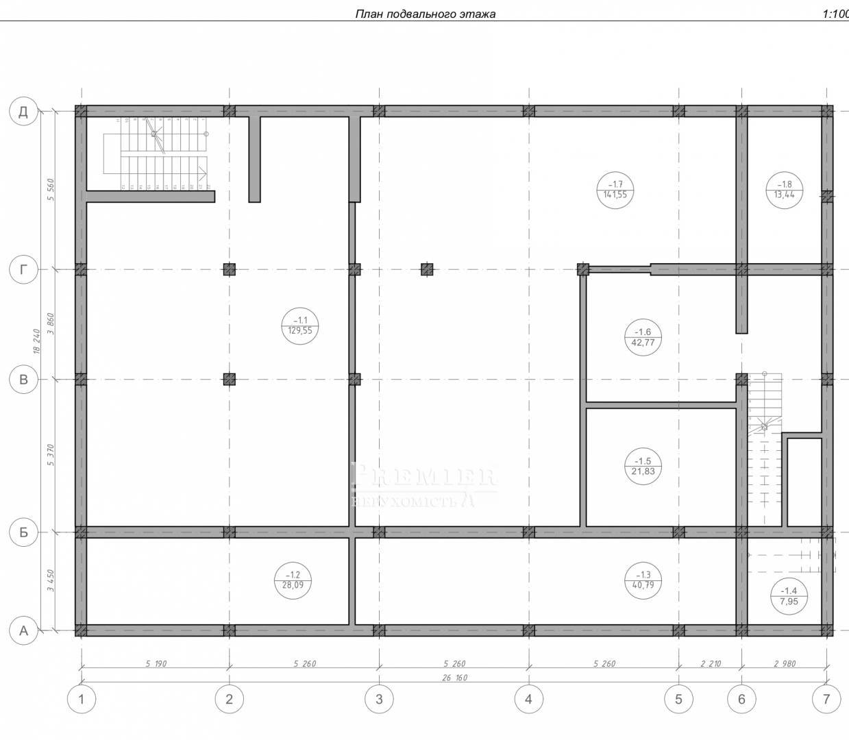
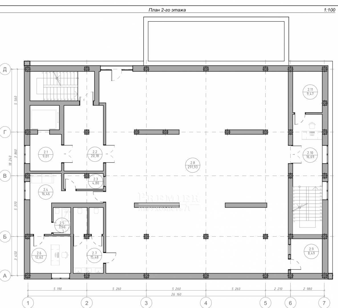
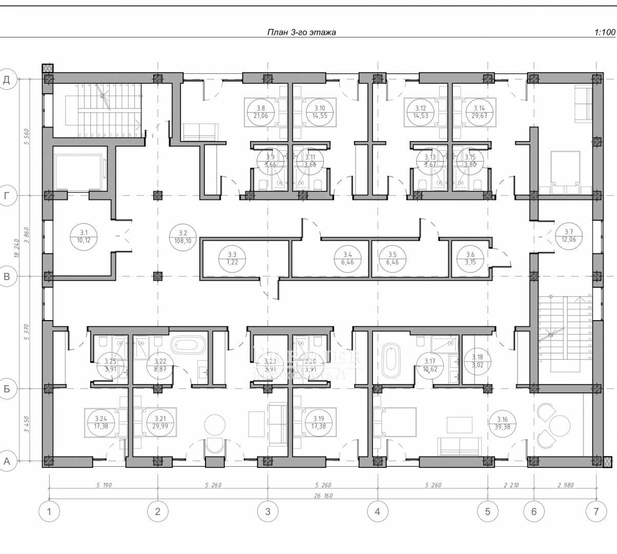
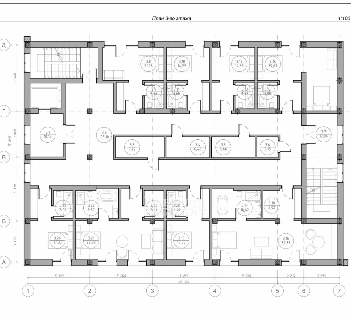
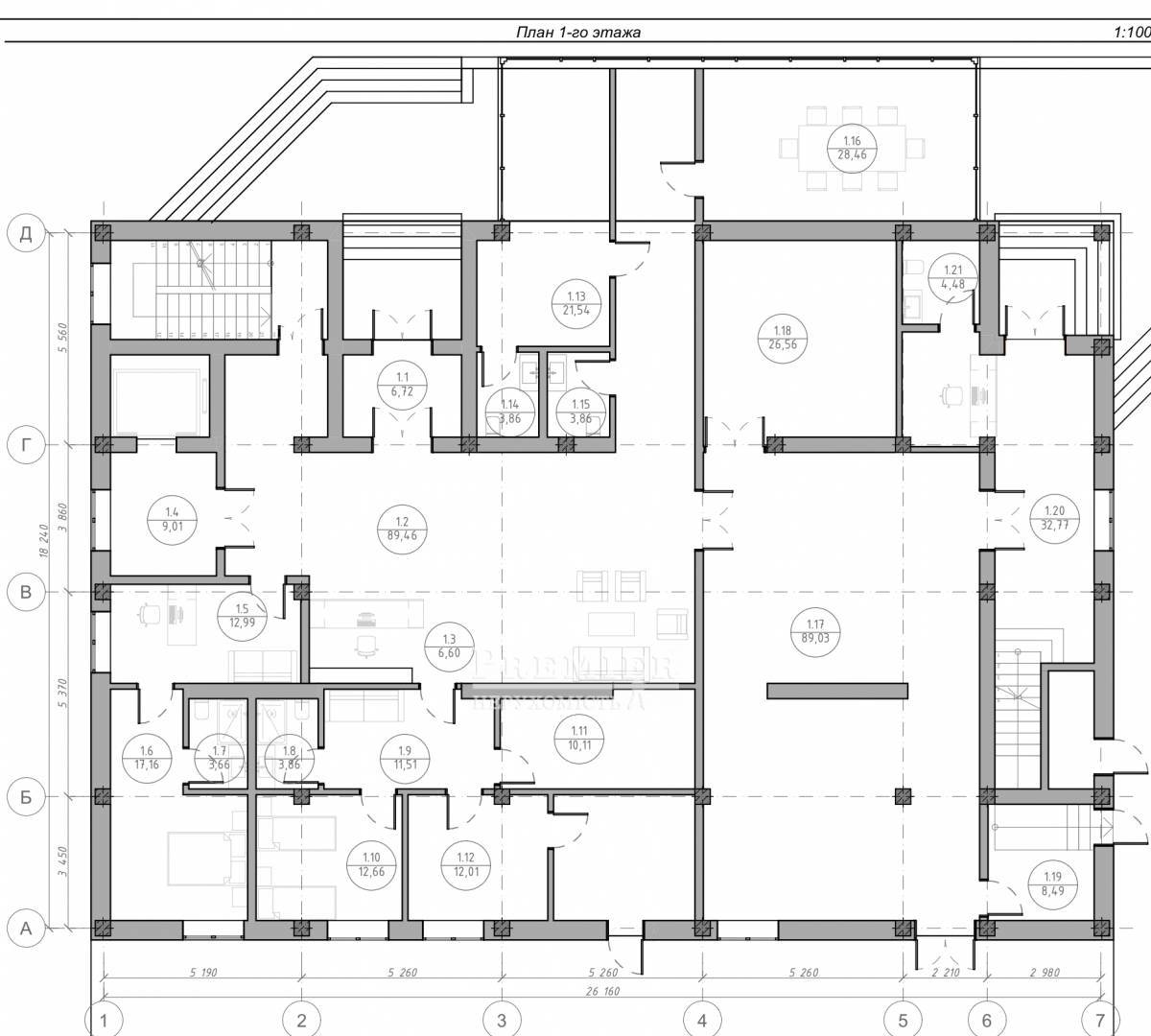
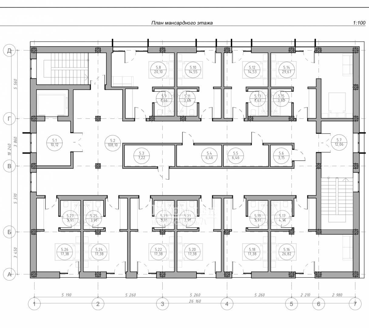
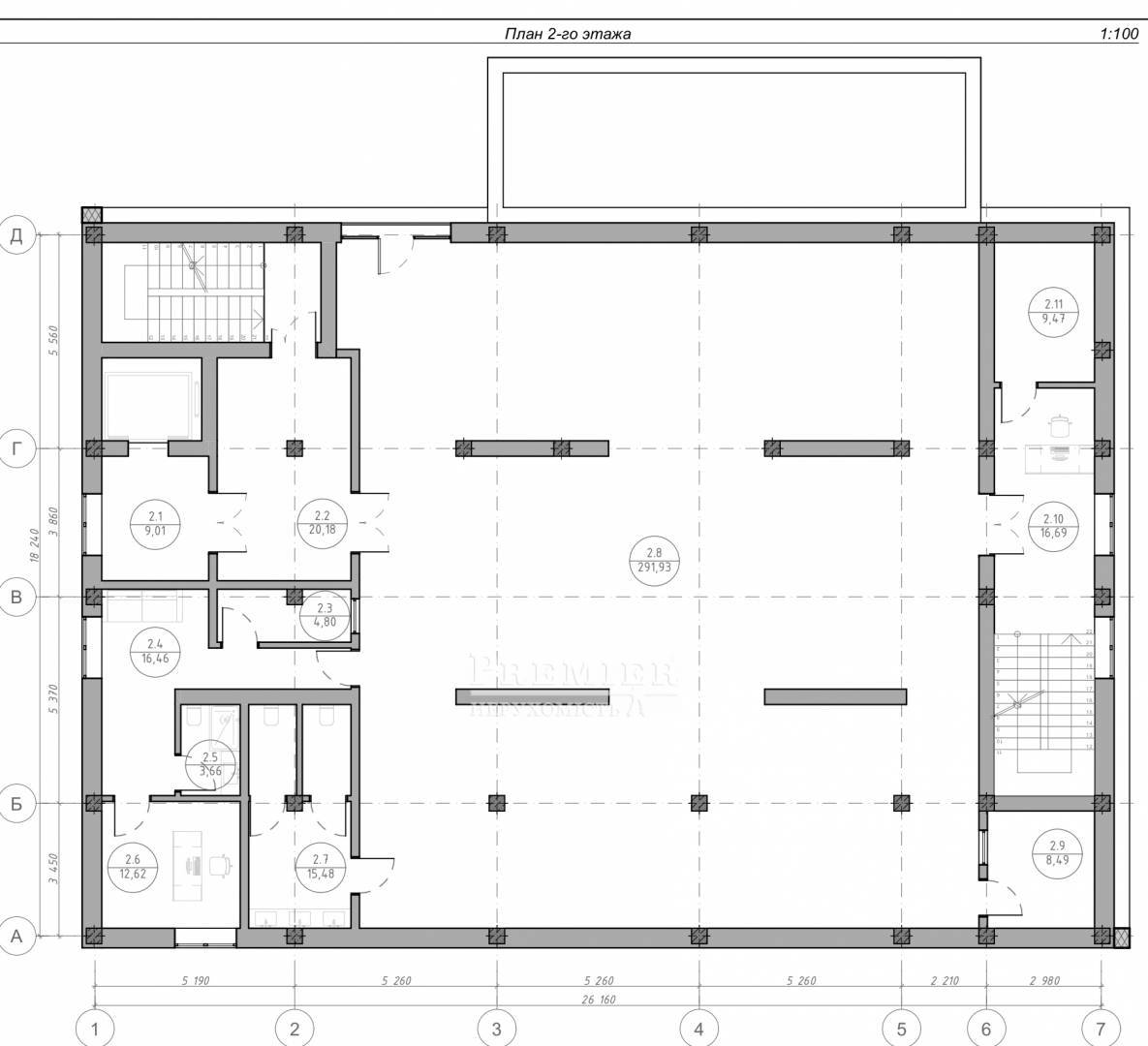
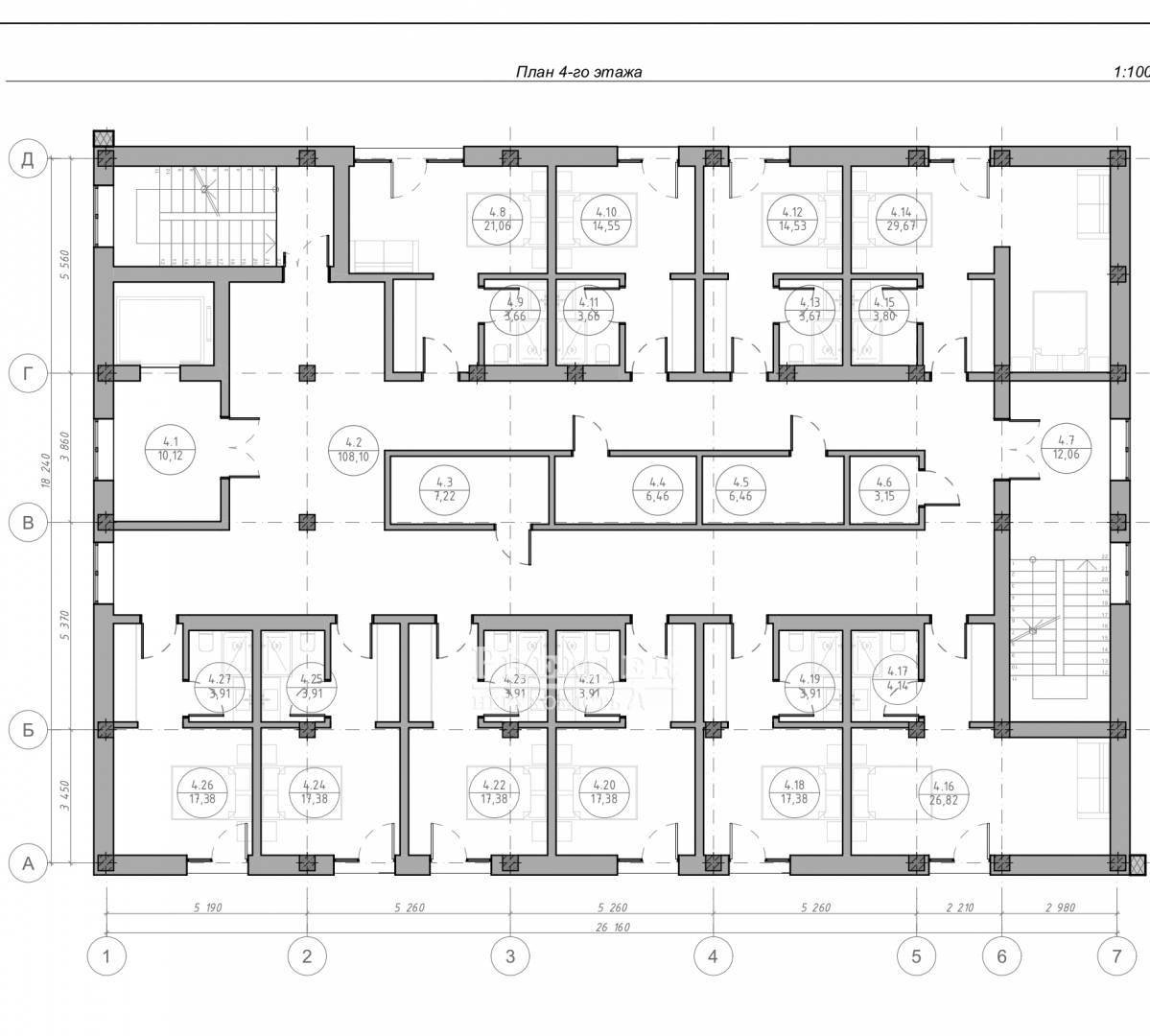
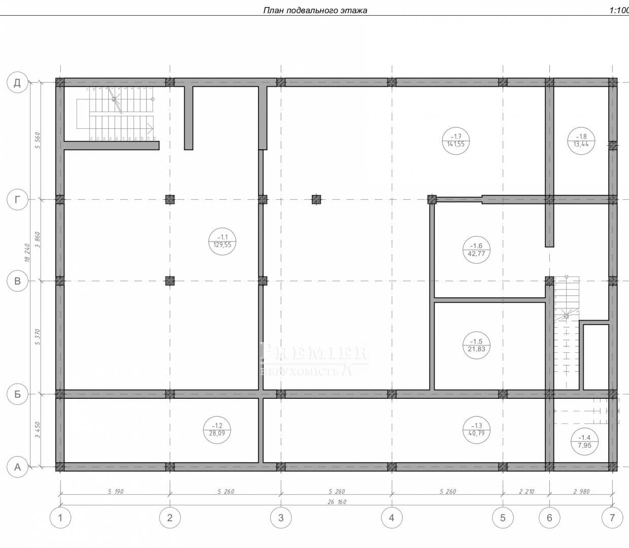
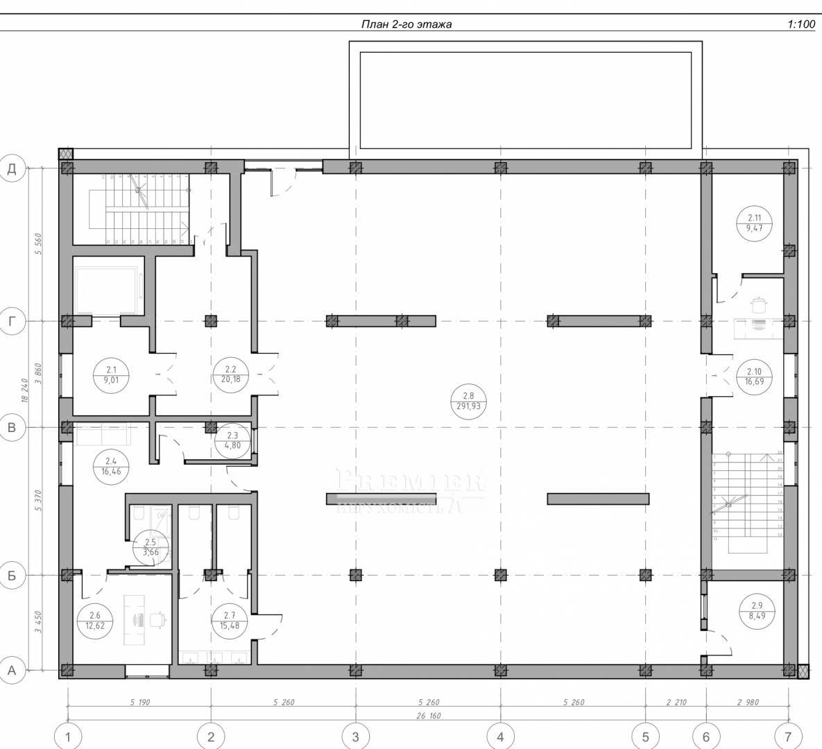
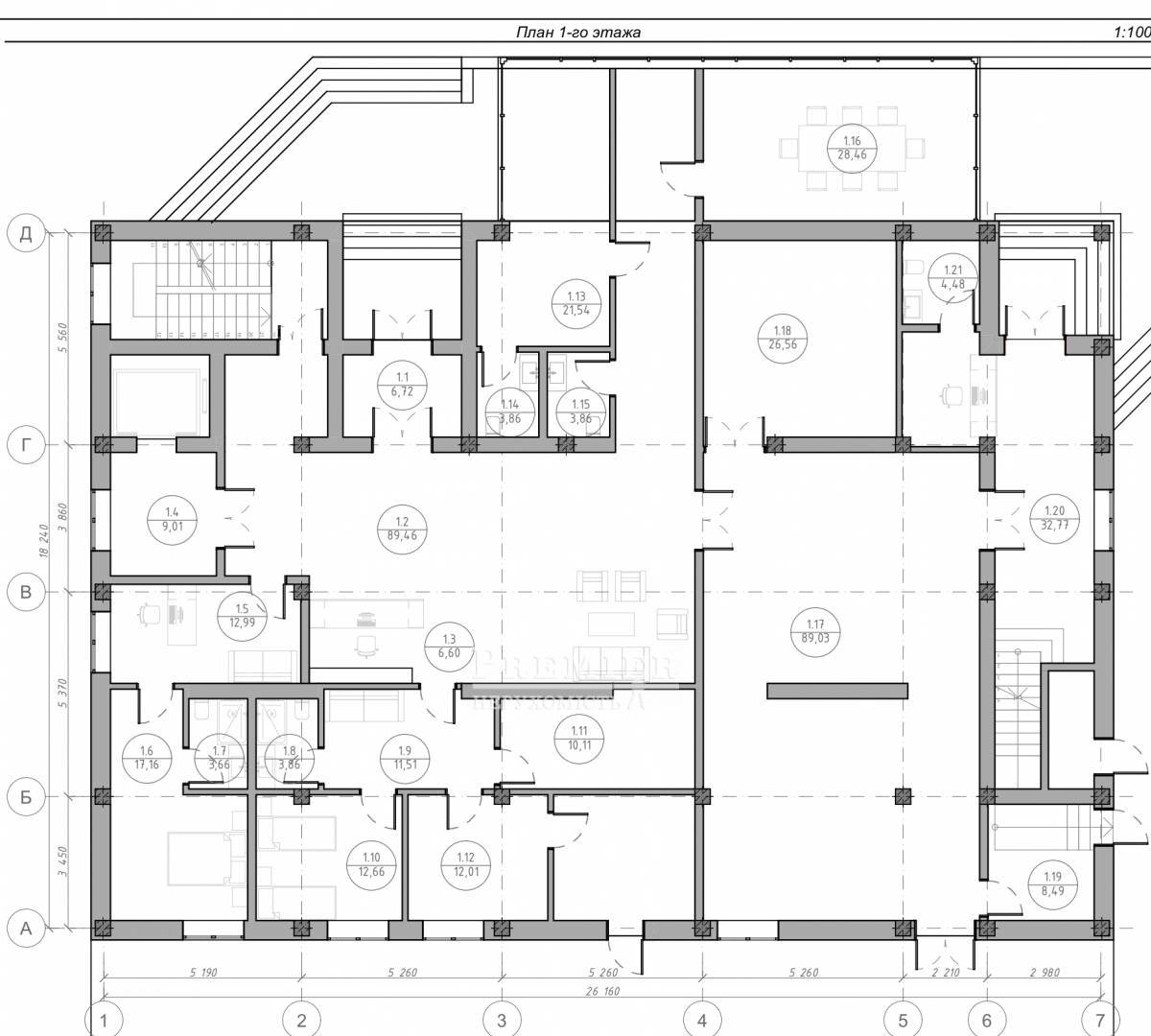
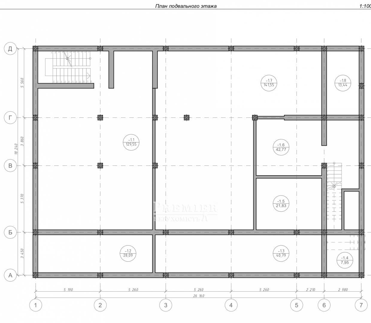
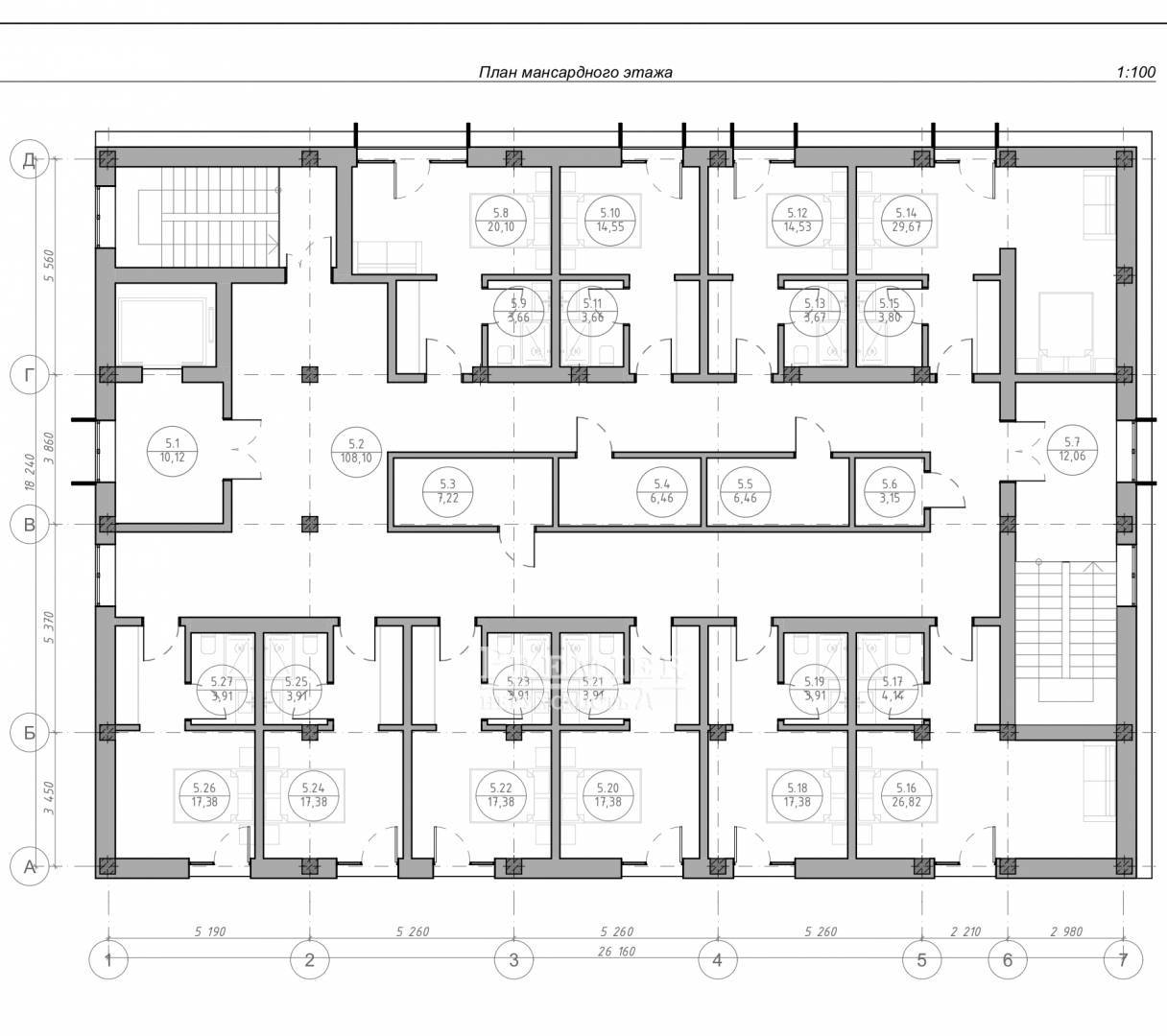
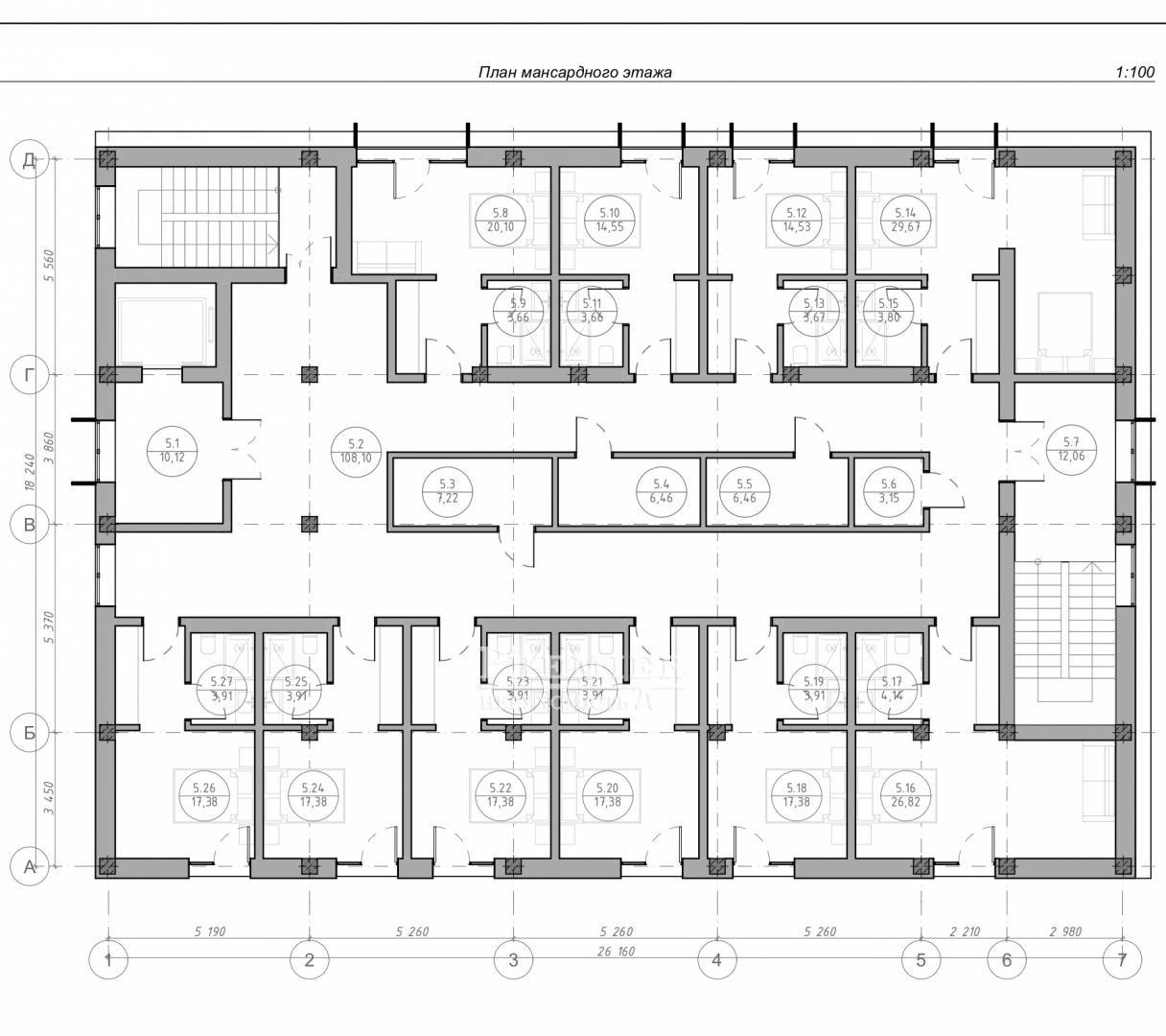
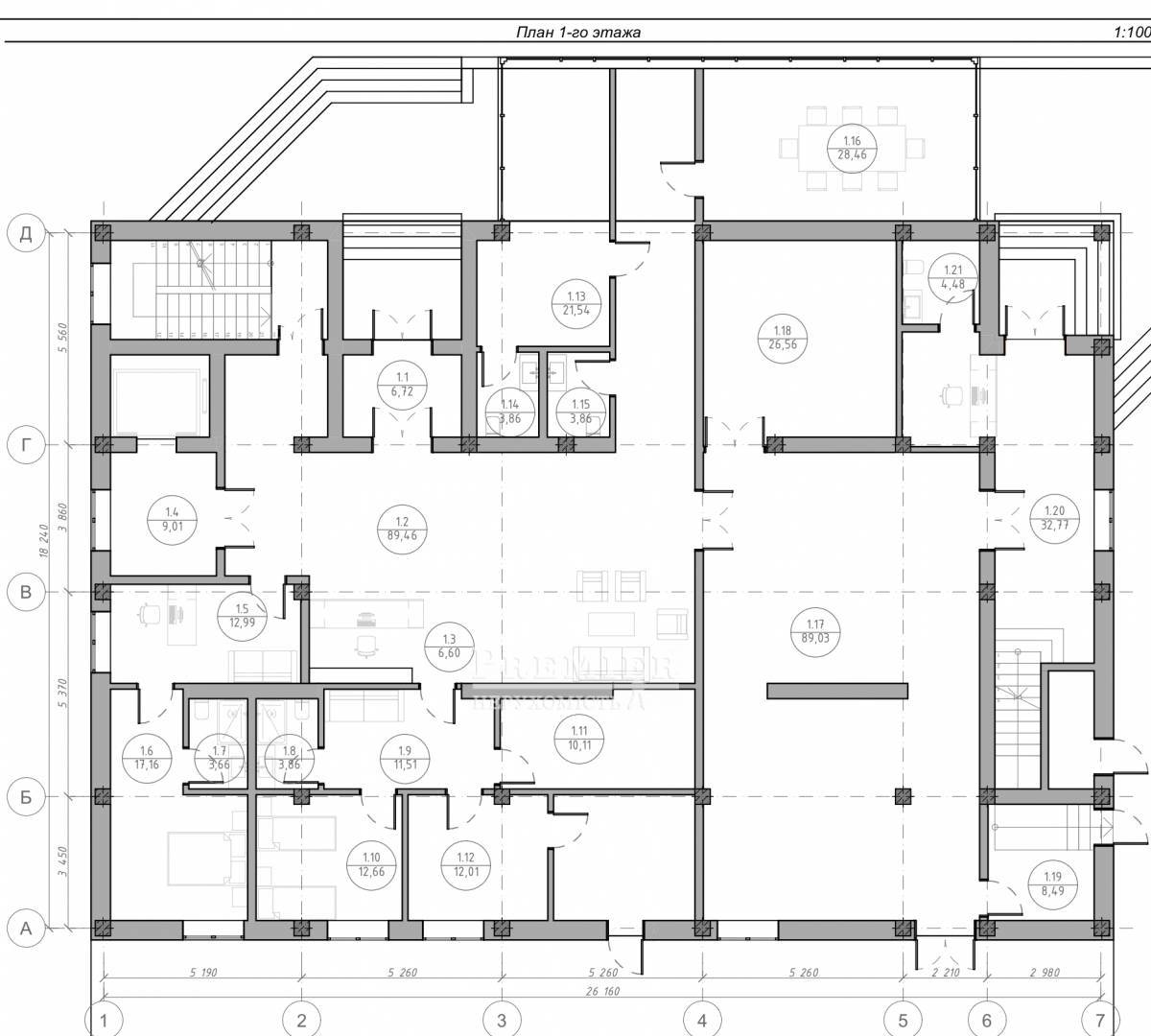
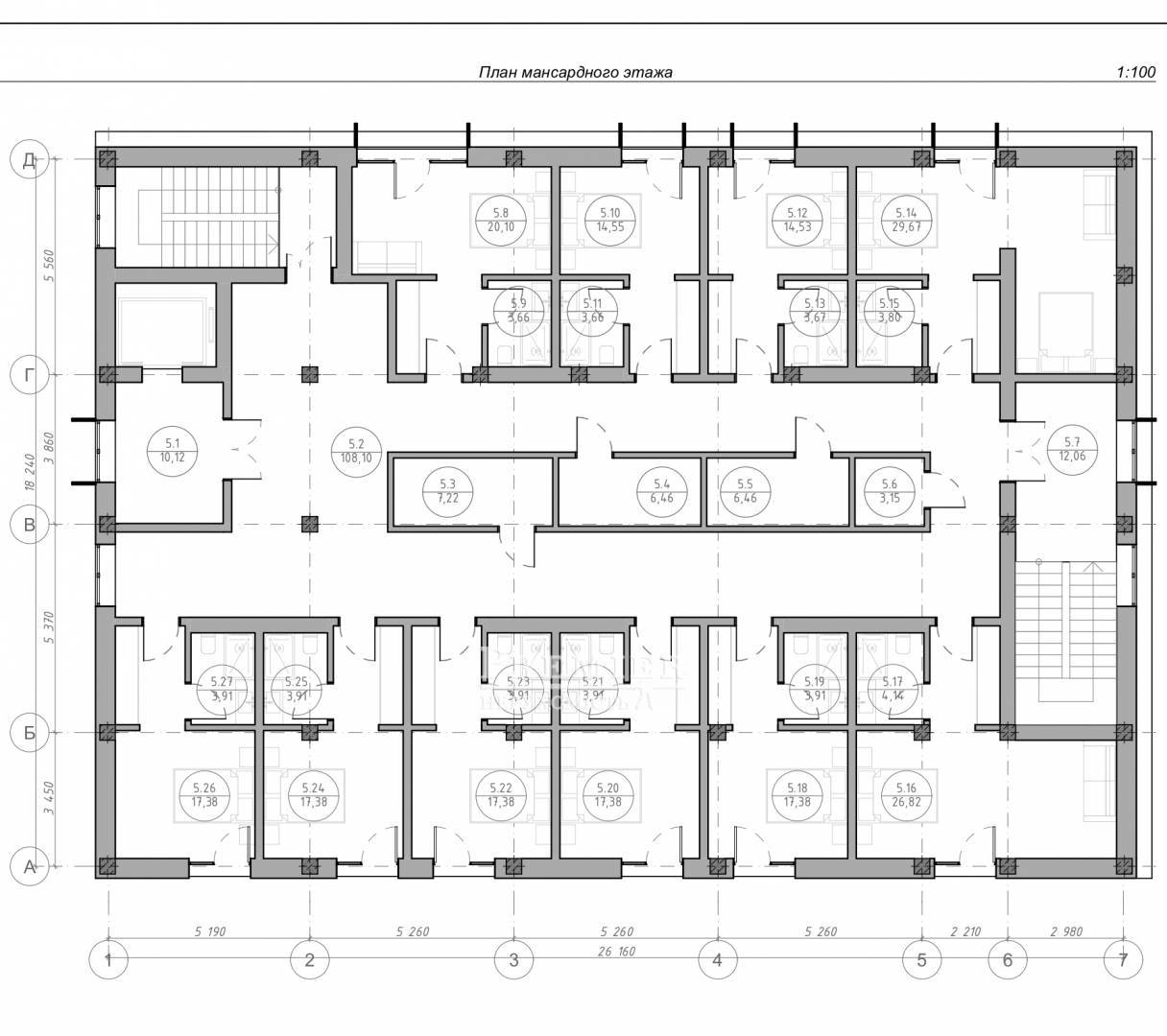
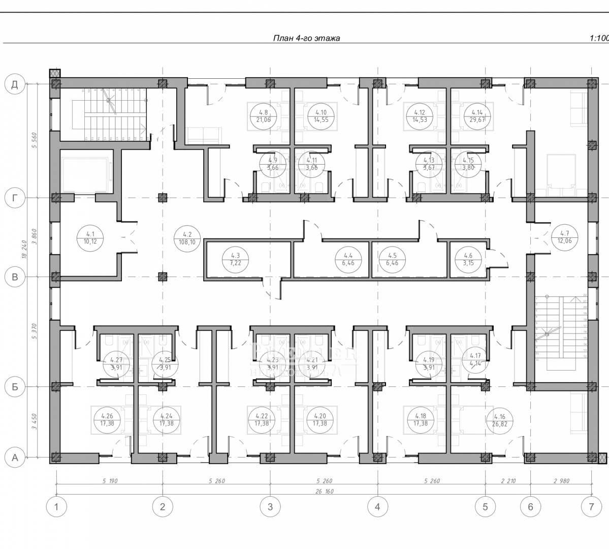
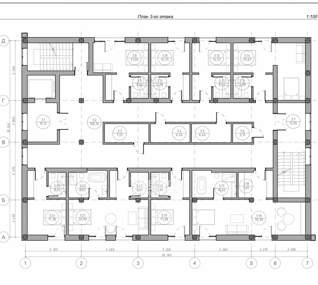
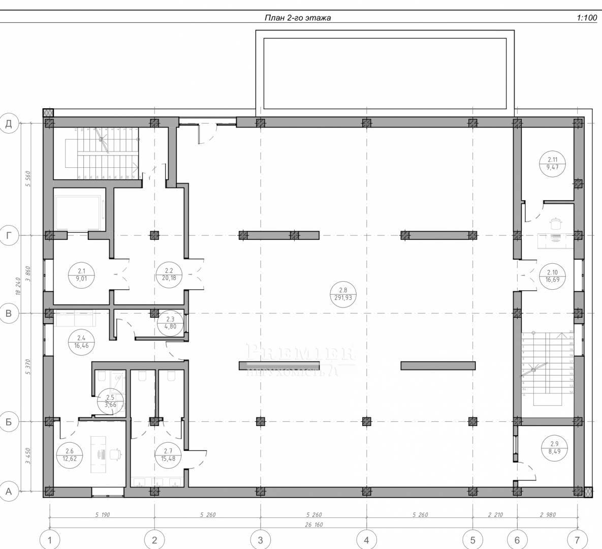
Пропонується до продажу фасадне комерційне приміщення у місці з жвавим пішохідним та автомобільним трафіком. Дане приміщення підійде під провадження будь-якого виду діяльності: ресторанний/готельний бізнес, супермаркет, клініка, казино. Цокольний поверх – 410 метрів, 1-й поверх – 340 метрів, 2-й поверх – 350 метрів, мансардний поверх – 452 метри. Проведено чернові ремонтні роботи. Є можливість збільшення площі до 2000 кв. Будова розташована на земельній ділянці 8 соток.
1 100 000 USD
944 094 EUR
47 960 000 UAH
Філіявул. Преображенська, 49/51
Відповідальний спеціаліст
вищої категорії Оксана Курганська
вищої категорії Оксана Курганська
Показати
Додаткові послуги
Схожі об`єкти
Под любой вид деятельности
м.Одеса/Пересипський/Сахарова Академіка вул.
Цена1 156 000 USD
Общая1778 м2
Цена1 156 000 USD
1778 м2
Завод, фабрика, производство
м.Одеса/Пересипський/10-я Пересипська
Цена1 100 000 USD
Общая2760 м2
Цена1 100 000 USD
2760 м2
Под любой вид деятельности
м.Одеса/Пересипський/Сахарова Академіка вул.
Цена800 000 USD
Общая1418 м2
Цена800 000 USD
1418 м2
Под любой вид деятельности
м.Одеса/Пересипський/Марсельська вул.
Цена1 100 000 USD
Общая1500 м2
Цена1 100 000 USD
1500 м2