Продається 1-комн. квартира в новобудові, Сахарова Академіка вул., м.Одеса
Одеса, Пересипськом, ул. Сахарова Академіка в
ID 199856
Кімнат
1
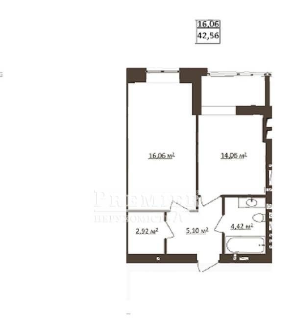
Загальна
42.56 м2
Житлова
16 м2
Кухня
14 м2
Поверх
7
Поверховість
9
Продам однокімнатну квартиру в новому цегляному будинку на Сахарова. Загальна площа квартири – 40 метрів. Квартира затишна, з 14-ти метрової кухні є вихід на лоджію. Зроблено штукатурку цегляних стін за винятком робочої стінки в кухні та внутрішніх стін санвузла. Опалення в комплексі індивідуальне. У квартирі встановлено двоконтурний котел. Панорамне скління. Сучасні безшумні ліфти. Комплекс, вдало розташований в молодому районі, що розвивається, де вже добре організована транспортна розв'язка з безліччю маршрутів, що з'єднують спальний район з будь-яким місцем в місті. У кроковій доступності все необхідне для комфортного життя: ТРЦ «Рів'єра», ТРЦ «Сіті Центр», супермаркети, ринки, кінотеатри, дитячі садки, аптеки, поліклініка, школи, та найголовніше – море та лиман за 10 хвилин їзди. Двори впорядковані за новими стандартами з урахуванням побажань мешканців. Купуючи квартиру Ви робите крок уперед до нових можливостей та перспектив.
36 000 USD
30 815 EUR
1 525 320 UAH
ФіліяСемена Палія 108
(Днепропетровска дор,)
(Днепропетровска дор,)
Відповідальний спеціаліст Світлана Гончар
Показати
Додаткові послуги
Прибутковість об'єкту від оренди*
від7540грн/місяць
*Середня ціна при здачі об'єкта в оренду в Пересипськом районі
Зміна цін на 1-комн. квартира в новобудові в Пересипськом районі
Схожі об`єкти
Однокімнатна квартира
м.Одеса/Пересипський/Бочарова Генерала вул.
Цена38 000 USD
Общая41 м2
Цена38 000 USD
41 м2
Однокімнатна квартира
м.Одеса/Пересипський/Князя Володимира Великого просп. (Добровольського)
Цена42 000 USD
Общая34 м2
Цена42 000 USD
34 м2
Однокімнатна квартира
м.Одеса/Пересипський/Марсельська вул.
Цена45 000 USD
Общая57 м2
Цена45 000 USD
57 м2
Однокімнатна квартира
м.Одеса/Пересипський/Ойстраха Давида (Затонського) вул.
Цена29 000 USD
Общая30 м2
Цена29 000 USD
30 м2